
”
VICON
7c
NOTES
INSTRUCTIONS FOR
I
I I I
INSTALLATION AND OPERATION
MODEL V8300H-S AND V8000H-S SUNSHIELDS FOR V8300HC AND
V8000HC
HOUSINGS
1. INTRODUCTION
The information in this manual covers the installation
and maintenance of the V8300H-S and V8000H-S Sun-
shields for the V8300HC and V8000HC Environmental
Housings, respectively.
The housings and sunshields are similar, except that the
V8000HC and
WOOOH-S
are larger than the V8300HC
and
V8300H-S.
Both sunshields are made of ribbed
aluminum in a heat-sink design to protect the housings
from direct solar radiant heat while permitting air-flow
over the housing exterior.
2. INSTALLATION
2.1 General
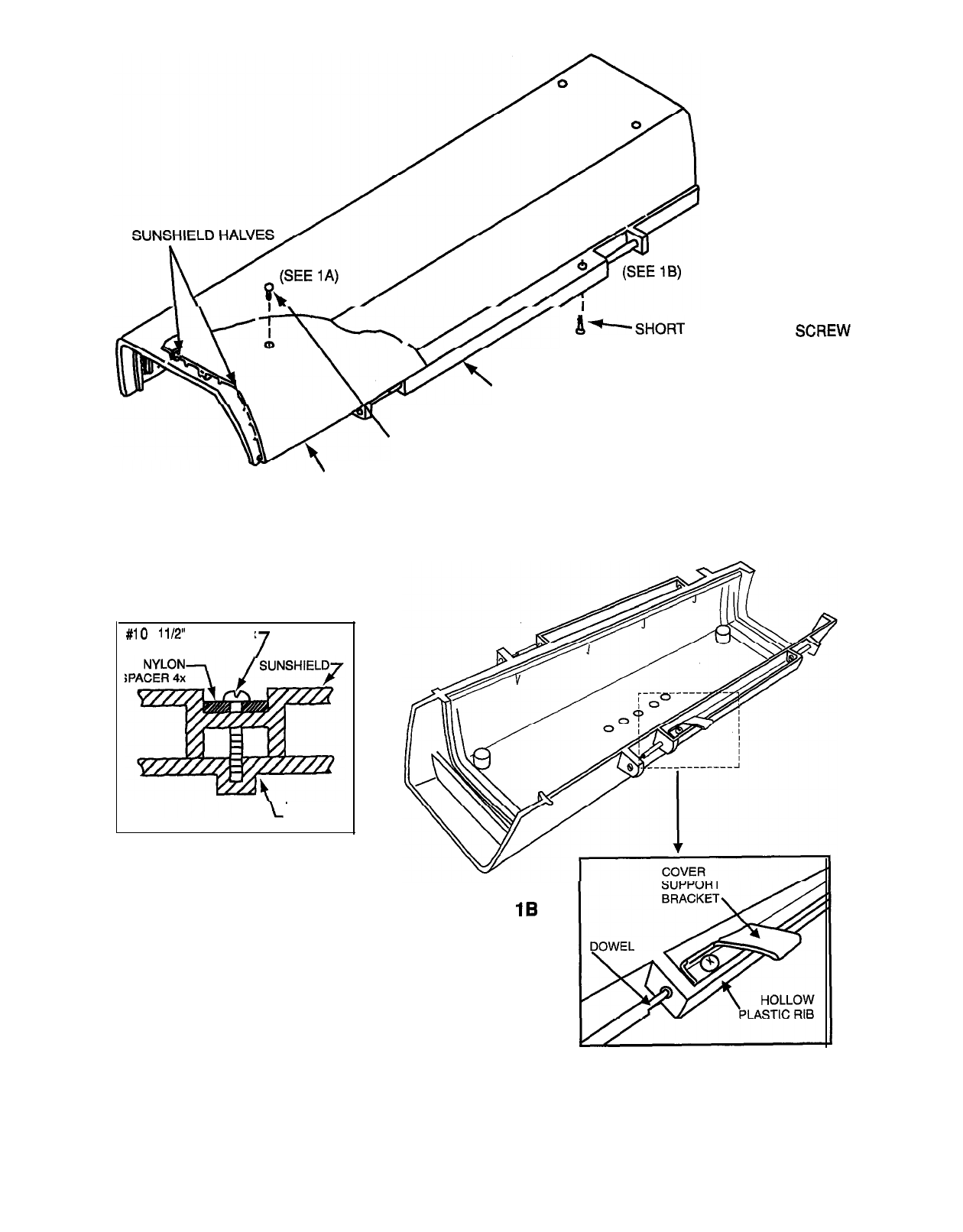
The sunshield kit contains left and right sunshield
V83OOH-S
uses No. 8 size hardware, while the
V8OOOH-S
halves, two (2) housing cover support brackets, four (4) uses No. 10 size hardware. The housing cover support
long sheet metal screws, four (4) short self-threading
brackets help support the housing cover when the sunshield
machine screws, and four (4) lockwashers. Additionally, is in place. Refer to Figure 1 when performing the
instal-
the V8000H-S kit includes four (4) nylon spacers. The lation procedure that follows.
2.2 Attaching the Sunshield
1. Remove the cover of the housing completely by
releasing all four (4) clamps and lifting the cover
off of the housing bottom.
2.
Note the four (4) blind (closed) holes molded into
the top surface of the housing cover. The four (4)
long sheet-metal screws pass down through the two
sunshield halves and thread into these holes.
3.
Place one sunshield half on the housing cover, ori-
enting it
correcetly
front-to-rear. One end of each
sunshield half is tapered to match the angle of the
front of the housing. Attach it to the cover with two
(2) of the long screws and lockwashers. When in-
stalling the
V8000H-S,
the nylon spacer supplied
Product specifications subject to change without notice.
Copyright
0
1998 Vicon Industries Inc. All rights reserved.
must be inserted under the screw head. See Figure
1A.
Repeat for the other sunshield half.
4.
Carefully turn the assembly over. A molded-in square
rib projects out from the lower edge of the cover on
each side. The ribs are hollow and there is a metal
dowel at each end. There are holes that pass through
the hollow ribs near the dowels. The self-threading
machine screws pass up through these holes into the
sunshield. The cover support brackets are positioned
in the underside of the rib. See Figure
1B.
Vicon part number 8006-8615-02-00
Vicon and its logo are registered trademarks of Vicon Industries Inc.
VICON INDUSTRIES INC. 89 ARKAY DRIVE, HAUPPAUGE, N.Y. 11788 l TEL:
516-952~CCTV
(2288) l FAX: 516-951
-CCTV
(2288)
TOLL FREE: l-800-645-91 16 l UK:
44/(O)
1489/566300
l INFOFAX: l-800-287-1 207 l WORLD WIDE WEB: www.vicon-cctv.com