
CONTROL CABINETS - TECHNICAL MANUAL EN-UK - V.1.3 - 14/07/16
9
DE
AUDIO & VIDEO CONTROL CABINETS
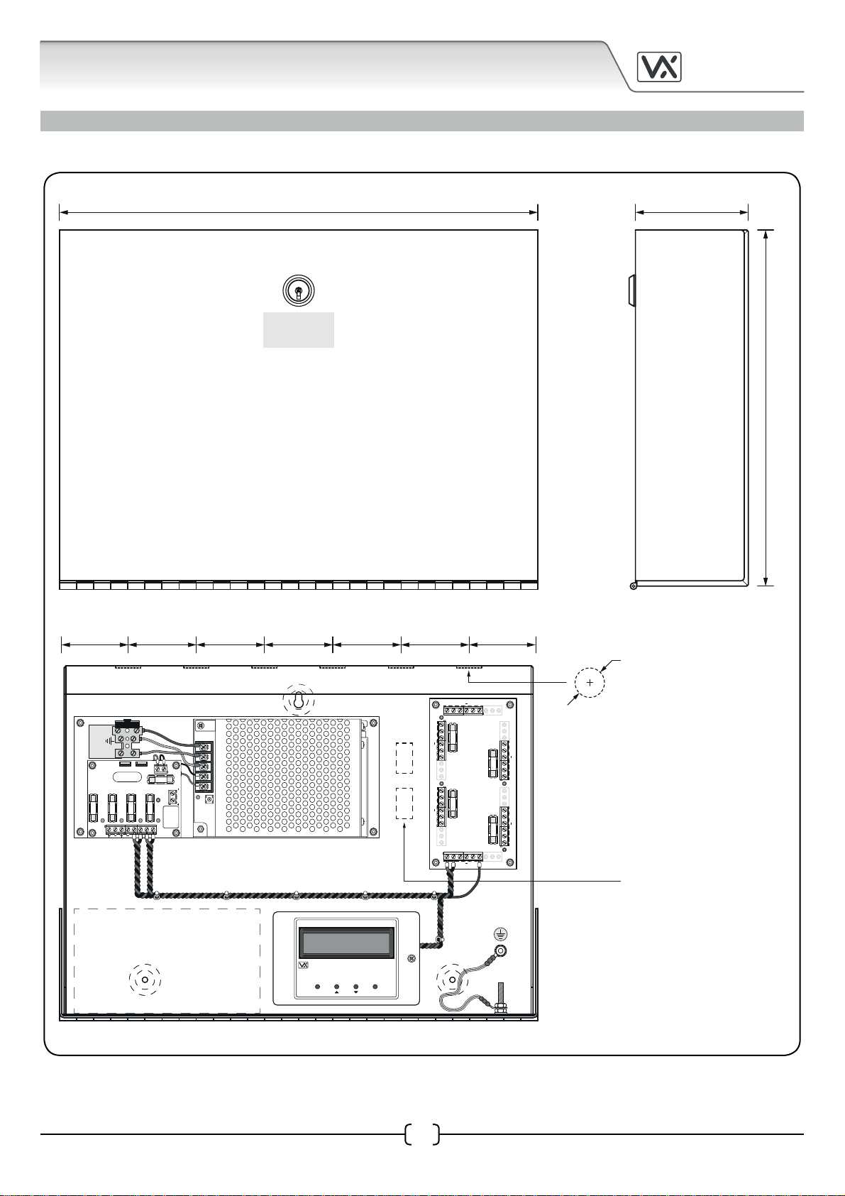
50mm
6x 20mm diameter knockouts for incoming and outgoing
cables located on the top and bottom side of the cabinet
52mm 52mm 52mm 52mm 52mm 50mm
CAB2 Knockouts
CAB1 & CAB2 TOP VIEW
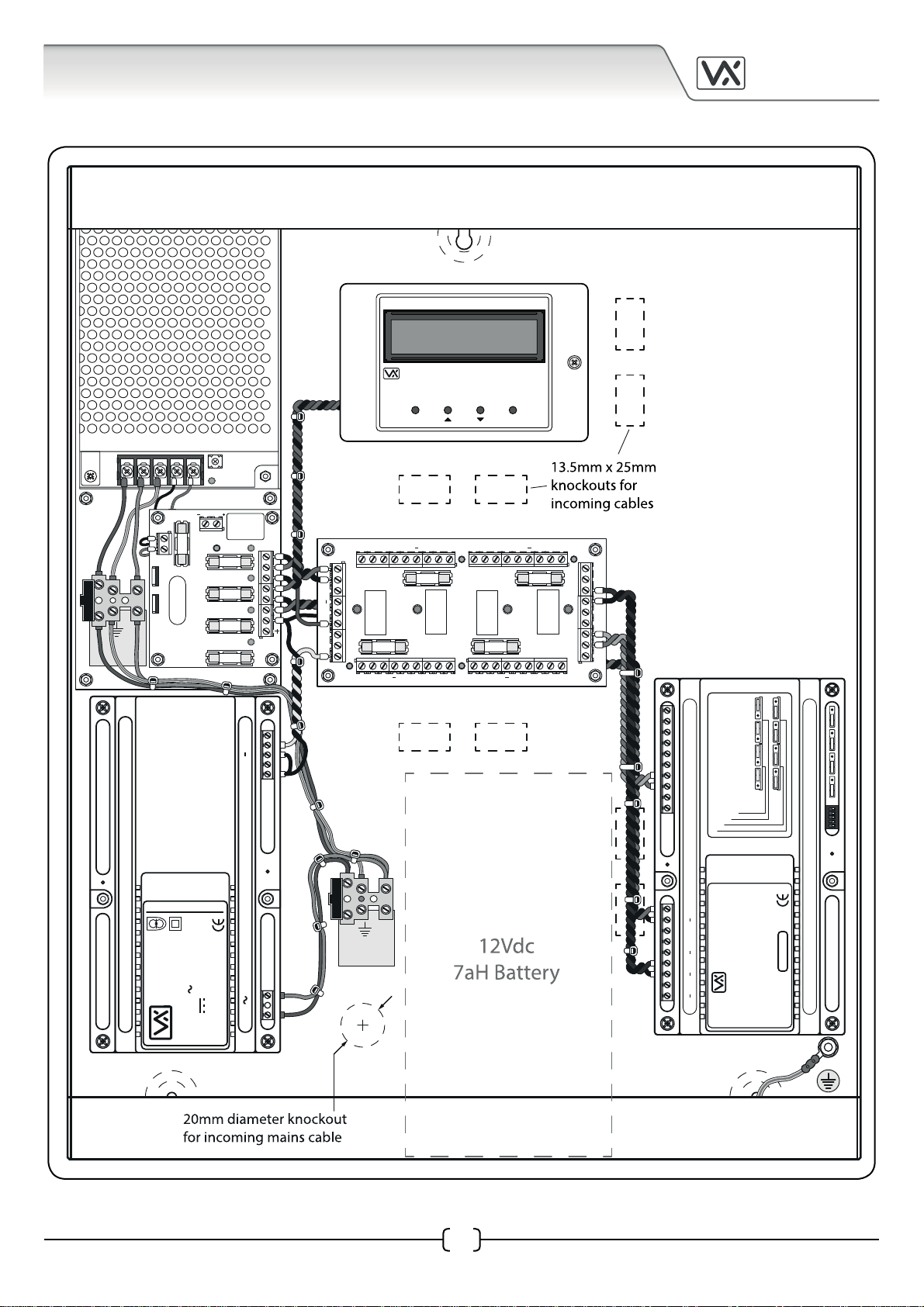
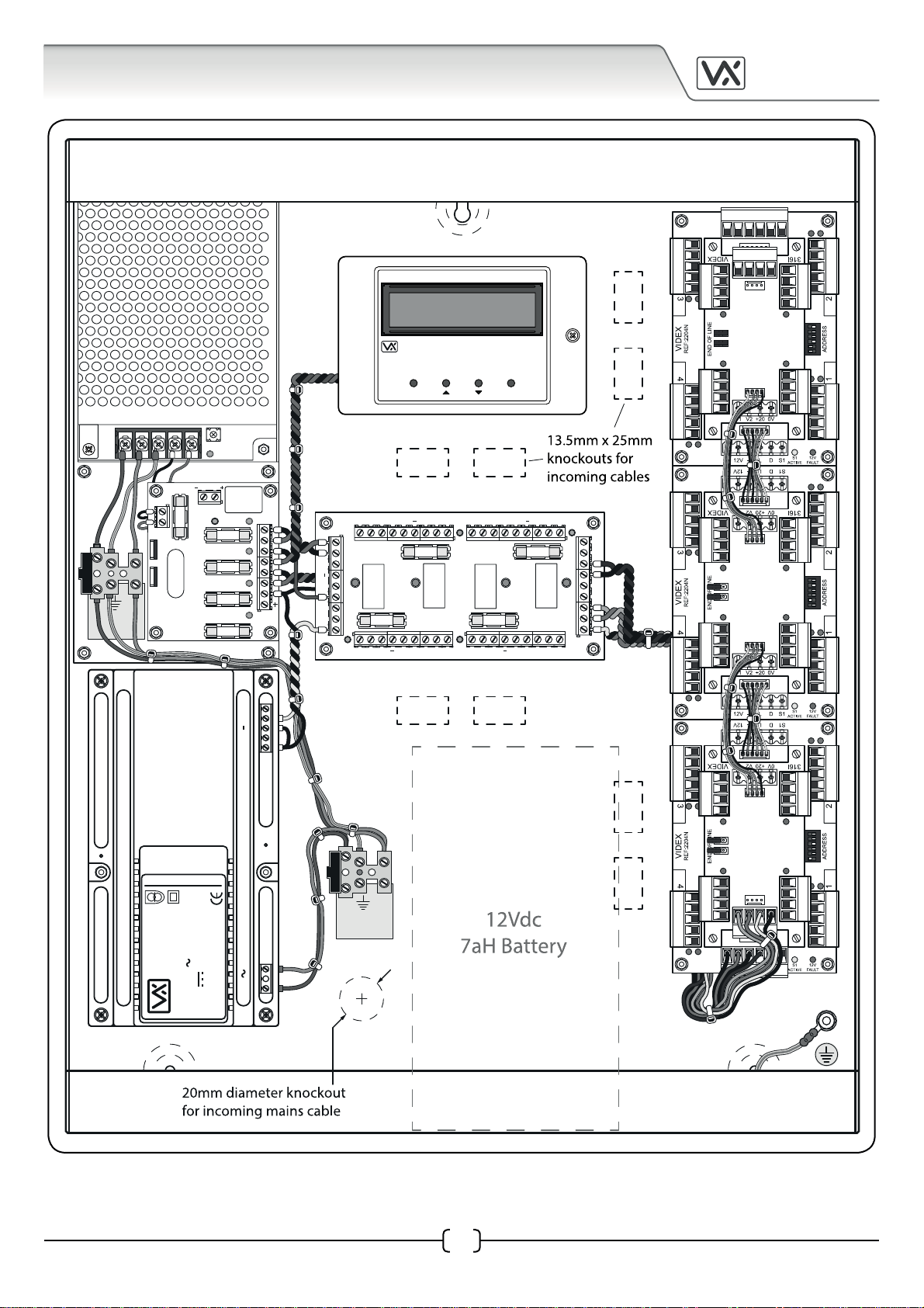
The 2291AB and 2291VB cabinets, shown on page 8, will have the same internal layout. The video cabinet
will also include the Art.893N psu. Cabinet components are listed below and will come pre-wired.
CABINET INTERNAL COMPONENTS
2291AB UBPSU5.0 psu, Art.701T time clock, VX123-A 4 door switching card and Art.2206N block controller.
2291VB UBPSU5.0 psu, Art.893N psu, Art.701T time clock, VX123-V 4 door switching card and Art.2206N block controller.
IMPORTANT NOTE: All cabinets described will come pre-wired internally, however it should be noted that
external cabling/wiring to and from the cabinets components will still need to be made. Please refer to the
technical wiring diagrams provided with the cabinet to make the necessary connections for the system
required. For the mains connection to the cabinets please refer to pages 30 & 31. Various knockouts on the
cabinets are provided to allow for the external cabling/wiring to be made to the internal components.
The CAB2 has knockouts provided for external cabling to enter the cabinet to allow connections to be made
to the internal components. There are twelve 20mm diameter knockouts provided, six along the top side
and six along the bottom side of the cabinet. On the main base plate of the cabinet two 13.5mm x 25mm
knockouts are provided, between the UBPSU5.0 psu and the VX123-A switching card, to allow for cabling to
come in through the rear side of the cabinet if required (refer to the internal cabinet layout on page 5). Below
shows the location of the 20mm diameter knockouts that run along the top and bottom side of the CAB2.
CAB1 Knockouts
The CAB1 has knockouts provided for external cabling to enter the cabinet to allow connections to be made
to the internal components. There are 12x20mm diameter knockouts provided, six along the top side and six
along the bottom side of the cabinet to allow cabling to come in from the top and bottom (refer to the CAB1
top/bottom side knockout location above).
On the main base plate of the cabinet eight 13.5mm x 25mm knockouts are provided to allow external
cabling to come in through the rear of the cabinet. These are located between the Art.701T time clock and
the top isolation card, between the bottom of the time clock and the top of the VX123-A/VX123-V switching
card, below the VX123-A/VX123-V switching card and to the left of the bottom isolation card. Also provided
is a single 20mm diameter knockout approximately 40mm below the mains inline fuseholder to allow for
the mains connections to be made from a switched fused spur (also refer to the internal CAB1 layouts on page
7 and 8).
CABINET KNOCKOUTS