Electrical & Gas Requirements
Electrical Requirements
There is no connection necessary beyon
plugging the unit into a polarize , groun e ,
120 volt, 60 Hz, 15 amp circuit. A minimum of
120 VAC is require for proper operation of gas
ignition systems. DO NOT use a GFI circuit.
This circuit, however, MUST be groun e an
properly polarize . The unit is equippe with
16-3 SPT2 power cor .
Note: If electrical power is ot supplied or is
i terrupted, the ope top bur ers will have to be
lit ma ually with a match.
Gas Connection
• Threa the appliances pressure regulator with
1/2” male en connection both supplie with
this appliance.
• Make the gas connection to the inlet of the
pressure regulator with 1/2” male pipe threa s.
• Join the pressure regulator to the entrance
threa s of the Gas Manifol with gasket
supplie with this appliance. The regulator is
marke with a irectional arrow in icating
correct irection of gas flow. Ensure the
appliance regulator is installe with the arrow
pointing towar the gas manifol entrance an
make sure the top of the regulator is facing
towar s the cabinet front, easily accessible
through the cabinet oors.
• Install a coupling between the regulator an
the shutoff valve to complete the connection.
• Assure all pipe joint connections are gas tight.
• Check alignment of valves after connecting the
cooktop to the gas supply to be sure the
manifol pipe has not been move . A
misalignment coul cause the valve knob stem
to rub on the control panel, resulting in a gas
leak at the valve.
If an oven is to be installe below this appliance,
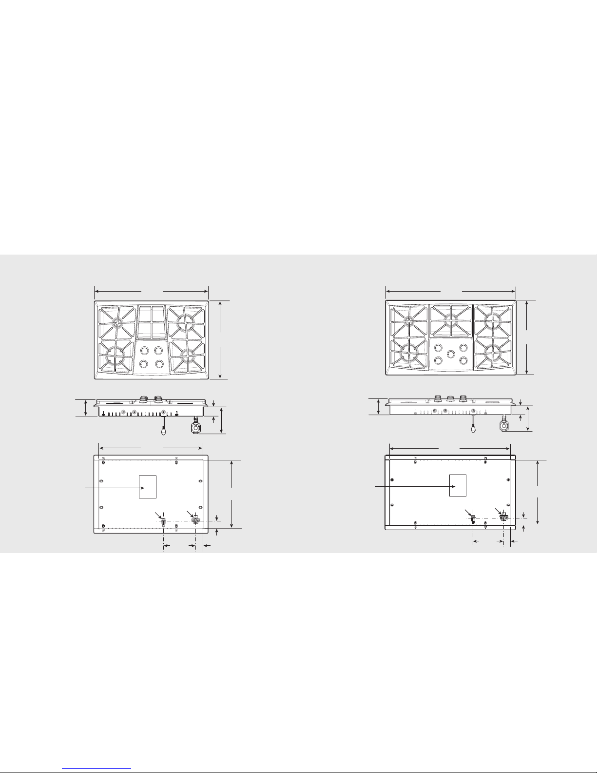
connect gas supply line as shown in Figure 1.
Consi er the below cabinet clearance.
Manual s ut-off valve:
• The supplie valve must be installe in the
gas service line ahea of the appliance an
regulator in the gas stream. It shoul be
positione where it can be reache quickly in
the event of an emergency.
In Massac usetts: A “T” han le type manual
gas valve must be installe in gas supply line to
the appliance.
Pressure regulator:
• The regulator supplie with the DGVU
cooktops must be installe before any gas
connections are ma e. It is pre-set for use with
natural gas. This must be converte to use with
LP/Propane gas.
• Manifol pressure shoul be checke with a
manometer. Natural gas requires 5.0” WCP
an LP/Propane requires 10.0” WCP. Incoming
line pressure upstream for the regulator must
be 1” WCP higher than the manifol pressure
in or er to check the regulator.
• The regulator use on this cooktop can
withstan a maximum input pressure of 1/2 PSI
(14.0” WCP). If the line pressure is in excess of
that amount, a step own regulator will be
require .
• The manual shut off valve an pressure
regulator on these cooktops must be
isconnecte from the gas supply piping
system uring any pressure testing of that
system at pressures in excess of 1/2 PSI
(3.45kPa.)
• The cooktop must be isolate from the gas
supply piping system by closing its in ivi ual
manual shut-off valve uring any pressure
testing of the gas supply piping system at test
pressures equal to or less than 1/2 PSI
(3.45kPa).
IMPORTANT: NEVER reuse old connectors
w en installing t is cooktop.
1312
Rigid Connections:
• Incoming gas is brought from an intake pipe at
the rear of the unit to the pressure regulator;
then to the manifol pipe for istribution. The
intake pipe an shut-off valve are not supplie .
The intake pipe an the shut-off valve shoul
be connecte to the regulator to complete the
connection.
In Massac usetts: This appliance must be
installe with a 36” (3-foot) long flexible gas
connector.
• Installer-supplie intake pipes shoul be
checke visually for any foreign matter before
installing in a service line.
Before placing the cooktop into operation,
always check for gas leaks with a soapy
water solution or other acceptable method.
DO NOT USE AN OPEN FLAME O
CHECK FOR LEAKS.