
10 Warner Electric • 800-825-9050 P-2106-WE • 819-0550
q14. Reconnect the sense magnet lead to term in al 4
of terminal strip TB1 and re-tighten the screw.
q15. Reapply power to the control system.
q16. Adjust the front panel tension adjust
potentiometer to the maximum output level
desired for the application. Adjustment between
maximum level and zero can now be made
through the remote tension adjust potentiometer.
Note: If start-up and adjustment procedures do not
provide the desired resuIts consuIt the troubleshooting
section of this manual.
q17. If remote mode switching is used, repeat steps
4 through 15 using the remote mode selector
switch.
q18. Attach cover using the two screws supplied with
the control.
Roll Follower Tension Adjust
q1. Apply power to the control system.
q2. Check that the green LED marked “power” is on.
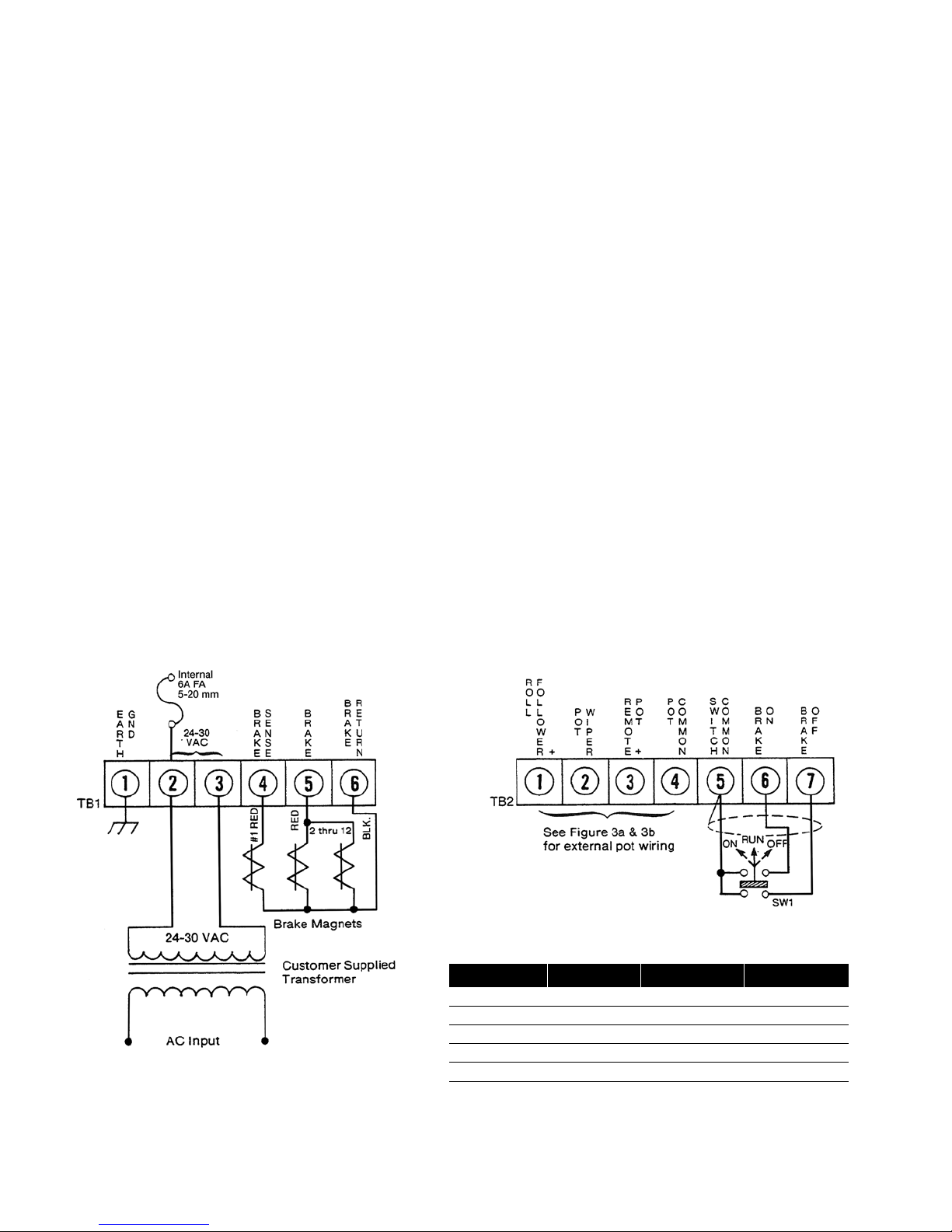
q3. Using an AC voltmeter, measure the AC voltage
at terminals 2 and 3 of terminal strip TB1. This
voltage should be between 24 and 28 VAC.
q4. Remove power from the control system and wait
approximately 30 seconds before proceeding to
the next step.
q5. Remove the sense magnet lead from terminal
4 of terminal strip TB1 and insert a DC current
meter in series with the lead of the sense magnet
and terminal 4 of terminal strip TB1.
Note: A DC current meter with the capability of reading
0to 500 milliamps should be used. Connect the positive
(+) to terminal 4 and the negative (-) to the sense magnet
wire.
q6. Reapply power to the control system.
q7. Place the mode selector switch in the brake off
position. Meter should read zero current and
brake should read zero current and brake should
be freewheeling.
q8. Place the mode selector switch in the brake “on”
or “stop” position. Meter should read 270 to 280
milliamps and the brake should be locked up
tight.
q9. Place the mode selector switch in the “run”
position. Set the front panel tension adjust
potentiometer to its maximum clockwise setting.
Note: Refer to Chart 1 for various inputs and outputs
when using the roll follower system.
q10. Place a second DC voltmeter between terminals
2 and 4 of terminal strip TB2.
Note: A DC voltmeter capable of measuring zero to 10
volts DC should be used. Connect positive (+) to terminal
2 and negative(-) to terminal 4.
q11. With the roll follower potentiometer disconnected
from the roll follower arm, position the follower
arm to the true zero position. This should be the
center line of the unwind spindle.
q12. Adjust the roll follower potentiometer to obtain a
zero voltage reading on the voltmeter connected
between terminals 2 and 4 of terminal strip TB2.
q13. Connect the roll follower potentiometer to the roll
follower arm. After coupling the follower arm to
the potentiometer, recheck the voltage between
terminals 2 and 4 of terminal strip TB2 to insure
the voltage is still zero VDC.
q14. Place a full roll of material on the unwind stand.
q15. Set the roll follower arm on the unwind roll.
q16. Check the voltage between terminals 2 and 4
of terminal strip TB2 and refer to Chart 1. If the
voltage reading is less than 2.5 VDC, refer to
Chart 1 for the maximum percentage of starting
torque available.
Note: If maximum starting torque available is less than
the actual starting torque required, then the amount of
angular travel of the roll follower potentiometer must be
increased.
If the voltage reading is greater than 2.5 VDC,
decrease the front panel tension adjust until a 2.5
VDC reading is obtained. This will set the system
at 100 percent torque level.
q17. Adjust the front panel tension adjust for
the desired starting torque required for the
application.
q18. Start the machine and draw the web through.
q19. Monitor the voltage at terminals 2 and 4 of
terminal strip TB2 as well as the brake current. As
the roll diameter decreases, the sensor voltage
and the brake current will decrease keeping the
tension relatively constant.
q20. After an initial run has been completed, remove
power from the system and wait approximately
30 seconds before proceeding to the next step.
q21. Remove the meter from in series with the sense
magnet lead to terminal 4 of terminal strip TB1
and tighten the screw.
q22. Disconnect the voltmeter used from terminals 2
and 4 of terminal strip TB2.
q23. Re-apply power to the control system.
q24. If the remote mode selector switch is used,
repeat steps 4 through 9 and step 21 using the
remote mode selector switch.
Note: If start-up and adjustment procedures do not
provide the desired resuIts, consuIt the troubleshooting
section of this manual.
q25. Re-attach the cover using two cover screws
supplied with the control.