Installation
WARNING
Installer must be suitably qualified and ensure compliance with all codes and
standards including AS/NZS3500.1.
Failure to comply even partially with installation instructions may void the
warranty.
Positioning Unpack machine, check for damage and complete delivery. Install machine on
sound waterproof self-draining floor and use adjustable feet to level machine.
Allow room for detergent to one side of machine or in adjacent cupboard. 20litre
container requires about 450H x 250W x 350D, but smaller containers are available
from many suppliers.
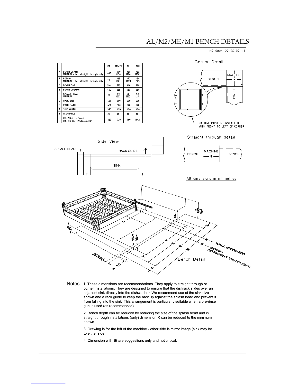
Benchwork Refer Bench Details diagram.
Corner installation is not recommended for this model. We recommend sink
smaller than rack with guide to prevent rack falling into sink. Align sink with
dishrack path as shown.
Water Supply Hot water temperature 65°C ± 5°C
Connection 20 mm (3/4"BSP Male)
Flow rate minimum 20 litres per minute
Consumption per cycle 3.5 litres approximately
Backflow prevention DCV = Dual Check Valve fitted standard
Pressure 200-400 KPa = 30-60 Psi.
Above this range fit pressure limiter. Don’t use small diameter plastic supply lines
especially below this range when optional rinse booster pump may be required.
FLUSH supply line before connection. Poor quality supply or excessive water
hardness may affect performance or damage machine – filtration and/or softening
is recommended.
Waste 40 mm gravity drain – refer point B on installation diagram – run waste directly
behind the machine or through open side panels or base.
Power Machine requires 3 Phase, Neutral and Earth, 400/415V, 25A/ph, 50Hz,
permanently wired via wall switch mounted adjacent to machine. Wash pump
rotation must be checked after installation to ensure correct direction (causes
excessive noise and damage).
Installation Checklist
Complete attached Installation Checklist to ensure machine is installed and
running correctly, and operator is familiar with operating procedures.
Troubleshooting
If the machine doesn’t fill after switching on the power, check and ensure that the
hot water supply tap is open, water supply pressure is not below specification and
Dual Check Valve is not faulty and correctly installed (arrows on the dual check
valve’s body specify water flow direction).