Wize PL80 Original Betriebsanleitung

Wize PL80(L), PL120(L), PL 150(L)
Motorized projector lifts
INSTALLATION/OPERATION INSTRUCTION
Wize –high-quality mount solutions for
audio-video installations
Motor
Lift hanger
Lift top plate
Running belt
Stabilizing
aluminum
scissor
Screw pole
Capacitor (Junction box)
Lift top plate
Projecto
r
Lift
bottom
plate
Universal
projector
bracket
(optional)
Elegant ceiling
closure
Local control
buttons
Remote
control

1
WARNING! SEVERE PERSONAL INJURY AND PROPERTY DAMAGE CAN RESULT FROM
IMPROPER INSTALLATION OR ASSEMBLY. READ THE FOLLOWING WARNINGS BEFORE
BEGINNING.
Do not use this product for any purpose not explicitly specified by Wize AV. Improper installation
may cause property damage or personal injury. If you do not understand these directions, or
have doubts about the safety of the installation, contact Wize AV Customer Service or call a
qualified contractor. Wize AV is not liable for damage or injury caused by incorrect mounting,
assembly, or use.
The hardware provided with this product, is exclusively intended for installation on surfaces made
of solid wood or concrete, with a maximum of 16 mm of drywall. For surfaces made of other materials,
for example hollow bricks, please consult your installer and/or specialist supplier.
DO NOT EXCEED THE MAXIMUM WEIGHT CAPACITY FOR THIS PRODUCT

2
Contents
1. Related data ..........................................................................................................................................3
2. Installation.............................................................................................................................................4
2.1 Before Installation:..................................................................................................................................4
2.2 Lift installation:........................................................................................................................................4
2.3 Ceiling closure panel installation: ...........................................................................................................5
2.4 Projector installation:..............................................................................................................................5
3. Connection..............................................................................................................................................6
3.1 Electric connection:.................................................................................................................................6
3.2 Limit switch adjustment:.........................................................................................................................6
4. Drawings................................................................................................................................................7
4.1 PL80(L), PL120(L), PL 150(L) ceiling closure panel...................................................................................7
4.2 PL80(L), PL120(L), PL 150(L) closure frame .............................................................................................8
4.3 PL80, PL120, PL 150 bottom plate...........................................................................................................9
5. Warranty..............................................................................................................................................10
6. CE Declaration of conformity...............................................................................................................11

3
1. Related data
Model#
PL80
PL80L
PL120
PL120L
PL150
PL150L
Loading
capacity, kg
25
25
25
25
25
25
Specification
AxBxC, cm
450x450x145
508x508x145
450x450x170
508x508x170
450x450x185
508x508x185
Lift height
(closed), cm
15,5
15,5
17,5
17,5
20
20
Lift height
(fully
extended), cm
81
81
120,5
120,5
150
150
Travelling
distance, cm
65,5
65,5
103
103
130
130
Net weight, kg
15
15
17,5
17,5
18
18
Lift packing
dimensions,
mm
725x725x360
725x725x360
725x725x400
725x725x400
570x530x290
725x725x420
Running
speed
37 mm/sec
Rated
operation
time
4 min
Input
AC230V; 0.485A; 115W

4
2. Installation
2.1 Before Installation:
1. Open the carton and take out the lift. Check the lift and accessories to see if
they are in well condition.
2. Hold the lift and connect to proper power. Run it up and down be the
equipped IR and RF or remote control to see if it works normally.
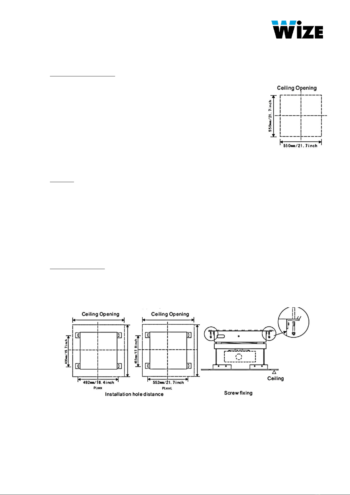
3. Measure carefully and make sure there will be enough ceiling opening space.
Suggested space is: L*W*H: 550mm*550mm*H (H=170cm + ceiling mount
height + projector height).
4. A power socket will be needed in the ceiling opening.
5. Choose proper wire for the projector and start wire routing.
Caution:
1. Must hang (suspend) the lift before power on. Lift must be able to drop down by gravity. Running without
suspension will damage the parts inside and might hurt installer.
2. The installation must be done by two or more professional technicians.
3. Make sure the ceiling is strong. Lift must be installed on a reinforced level ceiling which can support at
least three times of the combined weight of lift and the projector.
2.2 Lift installation:
Refer to the drawings below, drill 4 holes at proper position. Install the equipped M8 expansion screws to the
holes, hang on the lift and then tighten the screw nuts.

5
2.3 Ceiling closure panel installation:
1. According to the ceiling material to choose proper screw, fix the closure frame on the ceiling opening.
2. Connect power, extend the lift by wire switch.
3. Insert the four screw poles into the related installation holes in the triangle installation plate (A) on the
ceiling frame and the according holes on the lift bottom plate (B).
Tips: The height between the ceiling and the ceiling closure is adjustable by adjusting the position of the screw
nuts.
2.4 Projector installation:
A. Choose proper projector bracket. Install the projector with the bracket, tighten the screws.
B. Hook the projector bracket on the bracket hook (Refer to the drawings below).
C. Wiring connection: Bind all the wires in “Z” shape along the scissors, fix the wires on the plastic loops and
connect them with related projector connectors.
Tips: The projector height and angle is usually adjustable by adjust the nuts on the projector brackets.

6
3. Connection
3.1 Electric connection:
1. The lift operates on AC220V-240V, 50Hz, 1 ph. current.
2. Junction box is a white box located under the lift top plate.
3. Change the EU plug to your local standard if necessary. All wiring should comply with local and
national electrical codes and should be done by a licensed electrician.
4. All operating switches should be “off” before power connection.
5. Put the plug into the power outlet
Caution: Before operating the first time, make sure that nobody is standing under the projector lift. Adjust bottom limit switch
so that nobody gets injured during operation. See next chapter on how to adjust the limit switches.
3.2 Limit switch adjustment:
The automatic stop positions (the positions where the lift stops when extending and where it stops when
retracting) can be adjusted as required. These are preset and for most situations,
the switches should not need adjustment.
To adjust the switches, use the equipped allen key. The adjustment sockets are
located at the left side under the lift top plate (viewing from the front);
The yellow hole is for adjusting upper limit. Clockwise movement will reduce upper
limit and anticlockwise movement is for increasing upper limit.
The white hole is for adjusting down limit. Clockwise movement will reduce down
limit and anticlockwise movement is for increasing down limit.
Caution: Rated motor continuous operation time is 4 minutes. Excessive operation may cause
the motor to overheating and will stop running due to a protective function. When this
occurs, please stop for 15 minutes to wait the motor to cool down and then star operation
again.

7
4. Drawings
4.1 PL80(L), PL120(L), PL 150(L) ceiling closure panel
*all measurements are in mm

8
4.2 PL80(L), PL120(L), PL 150(L) closure frame
*all measurements are in mm

9
4.3 PL80, PL120, PL 150 bottom plate
*all measurements are in mm
Dieses Handbuch passt für folgende Modelle
5
Inhaltsverzeichnis
Andere Wize Projektorzubehör Handbücher

Wize
Wize PRG11A Bedienungsanleitung

Wize
Wize PRG11A-W Bedienungsanleitung

Wize
Wize PL180L Bedienungsanleitung

Wize
Wize STP-30 Bedienungsanleitung

Wize
Wize EA Series Bedienungsanleitung

Wize
Wize STP-30S Bedienungsanleitung

Wize
Wize PR-UNV Bedienungsanleitung

Wize
Wize PR24A Bedienungsanleitung

Wize
Wize WTH 4765 Bedienungsanleitung

Wize
Wize PR3XL Bedienungsanleitung



















