
89
2 VV. Creating innovative solutions for you and your business since 1995.
Type Supply [V/Hz]
of AC fans [A]
Electrical protection
[IP] Weight [kg]
EC fans [pcs]
IC3-C-AC5-04
230 / 50~60 465 13,5 ---
IC3-C-AC5-07
230 / 50~60 765 15 ---
IC3-C-AC5-16
230 / 50~60 16 65 23 ---
IC3-S-AC5-04
230 / 50~60 465 13,5 ---
IC3-S-AC5-07
230 / 50~60 765 15 ---
IC3-S-AC5-16
230 / 50~60 16 65 23 ---
IC3-C-EC
115~230 / 50~60 --- 40 310
IC3-S-EC
115~230 / 50~60 --- 40 3 5
01/10 str.02
M-04.0102-01
2.5 KONTROLA
DODÁVKY
Po dodání ihned zkontrolujte zda není jednotka ani
ovladač poškozen. V případě poškození jednotku dále
nerozbalujte a závadu nahlaste dodavateli. V případě
poškození obalu přizvěte dopravce. Zkontrolujte zda
souhlasí Vámi objednaný typ jednotky s dodaným. Typový
štítek je umístěn na boku skříně regulátoru. Dálkový
ovladač s 5m komunikačním kabelem je umístěn v
jednotce.
Součástí dodávky řídicí jednotky jsou:
o regulátor
o dálkový ovladač s kabelem
o návod
Nebude-li reklamace uplatněna včas, nelze případné
nároky uplatnit v budoucnosti.
2.6 VYBALENÍ Vyjměte regulátor z obalu a pootočením šroubů ji otevřete.
Uvnitř naleznete dálkový ovladač a návod k použití, který uschovejte.
Všechny použité obalové materiály jsou ekologické a lze je znovu použít nebo recyklovat.
Přispějte aktivně k ochraně životního prostředí a dbejte na správnou likvidaci a znovu zhodnocení obalových materiálů.
3 INSTALACE
Montáž a hlavně zapojení řídicí jednotky může provést pouze proškolená osoba s příslušným oprávněním pro
zapojování elektrických zařízení, která má k dispozici vhodné nářadí a prostředky. Při montáži je nutné
dodržovat veškeré pokyny a doporučení uvedené v tomto návodu.
3.1 MONTÁŽ DO
PRACOVNÍ POLOHY
Regulátor a ovladač se instaluje na stěnu nebo přímo na
ovládané zařízení ve svislé nebo vodorovné poloze.
Regulátor musí být instalován tak, aby mohl okolo proudit
vzduch a nedocházelo k jeho přehřívání.
Dodržujte minimální doporučené odstupové vzdálenosti.
Regulátor i dálkový ovladač musejí být instalovány tak,
aby k nim byl dostatečný přístup v případě údržby, servisu
nebo demontáže.
Regulátor a dálkový ovladač se připevňují pomocí vrutů a
hmoždinek na zeď a nebo pomocí šroubů přímo na plášť
clony.
Do vzdálenosti 100 mm od regulátoru jednotky se nesmí
nacházet žádné hořlavé hmoty.
Minimální vzdálenost od stavební konstrukce
min.
100 mm
min.
100 mm
3.2 PŘIPOJENÍ
ELEKTROINSTALACE
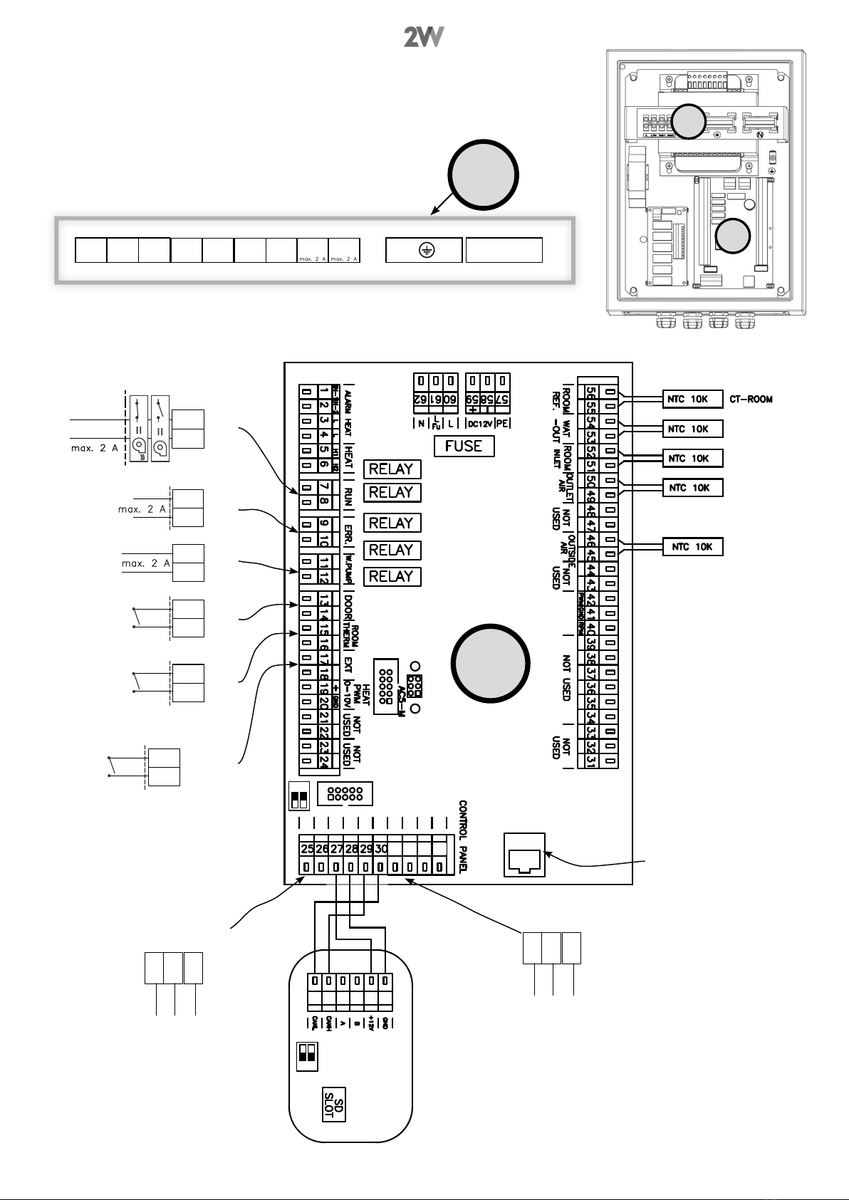
Regulátor a dálkový ovladač musejí být vždy před jakýmkoliv zásahem odpojeny od hlavního přívodu el. energie.
Při zapojení řídicí jednotky musí být dodrženy pokyny uvedené v tomto návodu a příslušné národní předpisy a směrnice.
Všechny fáze elektrického přívodu do regulátoru musí být připojeny přes ochranný výkonový jistič odpovídajícího
proudu a typu.
Vzdálenost mezi rozpojenými kontakty musí být větší než 3 mm.
Jmenovité hodnoty elektrických parametrů jednotky jsou uvedeny na výrobním štítku.
Dálkový ovladač se připojí k regulátoru pomocí přiloženého komunikačního kabelu.
Hlavní přívod el. energie, spínané prvky a příslušenství se připojí dle schéma zapojení.
Pokud není regulátor dostatečně dimenzován pro ovládané zařízení, je možné zařízení ovládat pomocí většího
množství regulátorů propojených datovým kabelem řetězení.
Řetězení lze použít např. pro připojení přívodního a odvodního ventilátoru.
Při řetězení však nelze připojit jeden ventilátor na dvě řídicí jednotky!
Připojené ventilátory nesmí překročit jmenovitou hodnotu proudu řídicí jednotky!
Jakékoliv zásahy a změny ve vnitřním zapojení řídicí jednotky nejsou povoleny a vedou ke ztrátě záruky.
Regulátor je vybaven tavnou pojistkou, která je přístupná po odmontování víka skříně regulátoru.
V případě požáru je nutné zařízení hasit práškovým nebo CO2 hasícím přístrojem.
min.
500 mm
5. TECHNICAL PARAMETERS
6. INSTALLATION
6.1 CHOOSING THE PLACE
The installation and main connection may be done only by a trained person with the appropriate qualicati-
ons, who has adequate tools and means. During the installation, observe all the instructions and recommen-
dations in this manual.
TECHNICAL INFORMATION
The regulator must be operated in a place with the appropriate IP protection.
6.2 INSTALLATION
The regulator is installed on a wall, in a vertical position
Observe the minimum recommended distances.
The regulator must be installed allowing adequate access in case of maintenance, service or disassembly.