
6
CAUTION:Thebrakevalvemay belightclampedinabench
vise, but overclamping may damage the valve and
cause leakage and/or malfunction. If a vise is used,
clamp on the supply and delivery ports on opposing
sidesof the valve’sprimarybody.
1. Removeall air linefittings and plugs.
2. On valves that have a manifold on the engine
compartment side, remove the bolts that secure the
manifold to the valve. Separate the valve and manifold
andremovethesealingringsandadaptersleeves.(See
Figure2.)
3. Removethefourcapscrews(16)thatsecuretheprimary
body to the secondary body. Separate the two body
halvesandremoveanddiscardo-ring(17).
4. Pull secondary piston(18) out of the primary body and
remove and discard o-rings(19 & 20).
5. Removeand discard snapring(10) fromthe secondary
body while manually holding and compressing valve
seat(11) in place.
6. Slowly release valve seat(11), allowing it to rise out of
thebody.Removethevalveseat,thenremoveanddiscard
o-ring(12).
7. Removeand discard valveassembly(13) alongwith its
o-ring(15)from thesecondary body. Remove thevalve
assembly return spring(14).
8. Carefully remove and discard exhaust diaphragm
screw(24),diaphragmwasher(25), diaphragm(26), and
diaphragmretainer(27)fromthesecondarybody.NOTE:
SomeE-14™brakevalveshave a threaded exhaust port
insteadof items24-27.
9. Using light force, push piston(2) into the primary body
untilpistonretainingring(1)isfullyvisible.Removepiston
retaining ring(1), taking care not to damage the piston
bore in the body.
10. Gentlytap theprimary bodyon asoft surfacetoremove
piston(2). Remove and discard o-rings(3 & 5) and both
wear rings(4) from piston(2).
11. Place the piston on a flat surface. Using finger force,
depress and hold spring retainer(7), then remove and
discard retaining ring(6) from piston(2).
12. Gently release spring retainer(7), allowing it to rise out
ofthepiston.Remove spring retainer(7)andgraduating
spring(8)frompiston(2).
13. Removeanddiscardrubberspring(9)fromtheinteriorof
piston(2).
14. Remove anddiscard snapring(10) frompiston(2)while
manually holding and compressing valve seat(11) in
place.
15. Slowly release valve seat(11), allowing it to rise out of
piston(2).Removevalveseat(11),thenremoveanddiscard
o-ring(12).
16. Remove and discardvalve assembly(13) alongwith its
o-ring(15)from piston(2).Removevalveassemblyreturn
spring(14).
CLEANING & INSPECTION
1. Usingmineralspiritsoran equivalent solvent, cleanand
thoroughly dry all metal parts.
2. Inspect the interior and exterior of all metal parts that
will be reused for severe corrosion, pitting, or cracks.
Superficialcorrosionand/or pittingontheexteriorportion
of the secondary and primary bodies is acceptable.
3. Inspect the bores of both bodies for deep scuffing or
gouges.
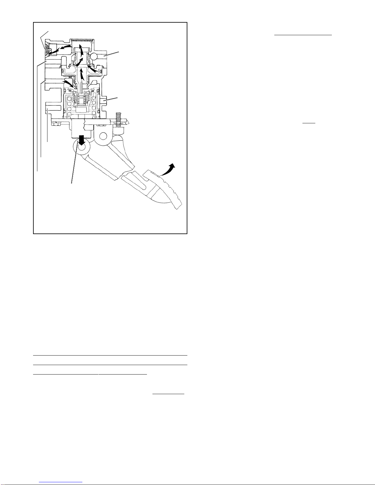
4. If primary piston(2) is reused, make certain that vents
“A & B” are open and free of obstructions. (See Figure
2.)
5. Makecertain vent “C”isopen in theprimarybody ofthe
valve.(SeeFigure2.)
6. Inspect the pipe threads in both bodies. Make certain
they are clean and free of thread sealant.
7. Inspectpedalassemblyandmountingplate.Makecertain
the pedal roller turns freely and is lightly lubricated.
Note:Somepedalassemblies,notfurnishedbyBendix,
do not employ a roller. In this case, make certain the
mechanismin use movesacrossthe plungersmoothly,
withoutbindingorsticking.Inspectplunger for excessive
scuffingorwear. Check the plunger bore inthemounting
plate for excessive wear, shown by “egg shaping” (bell
mouthing).Inspectmountingplate for severecorrosion,
paying particular attention to the area around the pivot
pin bores.
8. Ifthebrakevalveusesarubberbootbetweentheplunger
and mounting plate, inspect the boot for deterioration
or cracking.
9. Inspect all air line fittings and plugs for corrosion Clean
all old thread sealant from the pipe threads.
Anyvalveorpedalassemblycomponentthatdoesnotmeet
theinspectioncriterialisted above shouldbediscardedand
replacedbeforeproceeding.
ASSEMBLY (SEE FIGURE 9)
1. Usingsilicone lubricant (650-M),lightly coat allo-rings,
o-ring bores, and grooves, except for the secondary
piston o-rings(19 and 20). Lightly lubricate primary
piston(2)boreintowhichgraduatingspring(8)isinstalled.
With the 328-M lubricant, lightly coat o-rings (19 and
20)ando-ringgrooves on secondarypiston(18).