
MODEL 420
PRESSURE REDUCING CONTROL VALVE (with pilot #2)
INSTALLATIONOPERATIONMAINTENANCE
The information contained in this document is subject to change without notice.
BERMAD shall not be liable for any errors contained herein. All Rights Reserved. © opyright by BERMAD ontrol Valves. Page 1
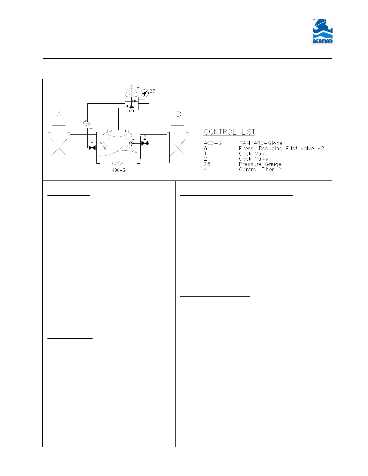
DESCRIPTION
Model 420 Pressure Reducing Valve is an
automatic control valve designed to reduce a
higher inlet pressure to a lower constant outlet
pressure regardless of fluctuating flow rates
and/or varying inlet pressure. It is a pilot
controlled, hydraulically operated diaphragm-type
globe or angle 405 valve. The pressure regulating
pilot senses downstream pressure and modulates
open or closed, causing the main valve to throttle,
thus maintaining constant delivery pressure. The
pressure regulating pilot has an adjusting screw
to preset the desired pressure, and a closing
speed-control needle valve. When downstream
pressure falls below the pilot setting, the pilot and
main valve modulate open to increase pressure to
maintain pilot setting. When downstream
pressure rises above the pilot setting, the pilot and
main valve throttle close to decrease pressure to
maintain pilot setting. Pressure-reducing pilots
are stamped with the number 2 on the side of the
pilot body.
INSTALLATION
1. Allow enough room around the valve assembly for
any adjustments and future maintenance/ disassembly
work.
2. Thoroughly flush the pipeline to remove any dirt,
scale, and debris. Failure to perform this operation
may render the valve inoperable.
3. Isolation valves A and B should be installed
upstream and downstream of the Bermad control
valve to allow for future maintenance operations.
4. Install the valve in the pipeline with the valve flow
arrow on the body casting in the proper direction. Use
the lifting eye provided on the main valve cover for
raising and lowering the valve. Install the valve
horizontally with the cover up. Ensure that the valve is
positioned so that the diaphragm assembly can be
easily removed for future maintenance.
5. After installation carefully inspect /correct any
damaged accessories, piping, tubing, or fittings.
ON LINE STATIC TEST PROCEDURES
OPEN VALVE: STATIC TEST
1. Close cock valve #1and #2, to isolate the pilot control system.
This prevents dirt exposure in the control loop.
2. Remove the cover plug on the main valve cover.
Caution: This will allow the valve to open fully. Make sure that
this condition does not cause system damage!
3. Check for leaks at the flange connection fittings etc.
4. Replace the cover plug.
CLOSED VALVE: STATIC TEST
1. Close cock valve #1 and open cock valve #2.
2. Vent any trapped air in the main valve cover by loosening the
tube fitting at the highest point on the cover. This will trap the
main valve in a closed position while the pipeline is pressurized.
3. Check the valve cover and diaphragm for leaks, tighten bolts if
necessary.
START-UP OPERATION
Note: There must be constant flow through the valve and system
to check and adjust the 420 PRV. Ensure that a downstream
demand is created by opening a hydrant, relief valve, bypass,
etc.
1. Close the main valve by closing cock valve #1. Close isolating
valves A and B.
2. The needle valve #21 is factory set on at one-and-a-half turns.
Turn the needle valve clockwise - to reduce the closing rate
speed of the main valve - or vice versa.
3. Turn the adjusting screw counter clockwise (CCW) on the
pressure reducing pilot (8) until all spring tension is released.
Open cock valves #2; the main valve will remain closed.
4. Fully open upstream isolating valve A, and slightly open
downstream isolating valve B; the main valve will remain closed.
5. Slowly turn the adjusting screw clockwise (CW) on the
pressure reducing pilot valve #8 until the main valve begins to
open. Continue turning the screw slowly, pausing after each half-
turn to allow the valve to react. Set the desired pressure
indicated on the pressure gauge (25). Tighten the locknut in the
adjusting screw.
6. Check valve operation by slowly opening and closing
downstream isolating valve B; downstream pressure should
remain constant.
7. If necessary, adjust the closing speed by opening/closing the
needle valve (21). Tighten the locknut on the needle valve.
8. Fully open downstream isolating valve B.