
8
DEUTSCH
73691210 DH-SMT/SI VI.CV.B1.2N © Danfoss 11/2010 8
ESPAÑOL
Nota de seguridad
A fin de evitar lesiones personales o daños
en el dispositivo, es absolutamente
necesario leer y respetar estrictamente
estas instrucciones.
Las operaciones de montaje, puesta en
marcha y mantenimiento deben ser
realizadas únicamente por personal
cualificado y autorizado.
Despresurice el sistema antes de iniciar la
operación de montaje.
Por favor, respete las instrucciones del
fabricante u operador del sistema.
AC 24 V
Conexión a través de un transformador
aislante de seguridad.
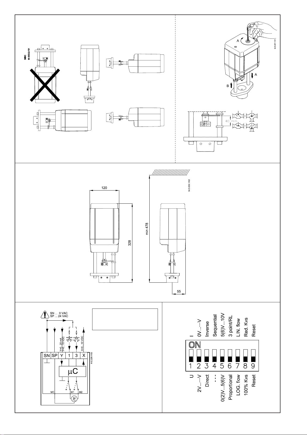
Montaje ❶
Instale el actuador en la válvula.
Cableado ❸
Señal de control
La señal de control procedente del
regulador debe conectarse a los terminales
Y (señal de entrada) y SN (común) de la
placa de circuito impreso del AME.
Señal de salida
La señal de salida del terminal X se puede
utilizar para indicar la posición actual. El
rango dependerá de la configuración del
interruptor DIP.
Alimentación
La alimentación (24 V~ -15 a +10 %, 50 Hz)
debe conectarse a los terminales SN y SP.
* AC 24 V conexión a través de un
transformador aislante de seguridad (AC 24 V
Connect via safety isolating transformer)
Configuración del interruptor DIP ❹
Ajustes de fábrica:
¡TODOS los interruptores deben permanecer
en la posición OFF!
Nota:
Se permiten todas las combinaciones de los
interruptores DIP. Todas las funciones
seleccionadas se agregarán consecutivamente.
Únicamente existe una anulación lógica de
funciones: el interruptor n.º 6 Proporcional /
3 puntos. Dicho interruptor configura el actuador
para que ignore la señal de control y funcione
como un actuador de tres puntos “sencillo”.
SW 1: U/I ❹ ①
El actuador responde a señales de control
de voltaje o corriente. El interruptor n.º 1: El
actuador U/I se puede ajustar de modo que
responda a la señal de control de voltaje (el
actuador responderá a señales de entre 0 y
10 V) o a la señal de control de corriente (el
actuador responderá a señales de entre 0 y
20 mA).
Ajustes de fábrica::
señal de control de voltaje (0 a 10 V).
SW 2: 2V … 10 / 0V … 10 ❹ ②
El actuador puede configurarse para que
responda a una señal de control de 2 V o 0
V. Si el actuador se configura para una señal
de corriente, responderá a señales de
control de 4 mA o 0 mA.
Ajuste de fábrica: 2 a 10 V.
SW 3: Directo / Inverso ❹ ③
El actuador se puede configurar para que el
vástago se desplace hacia abajo al
descender el nivel de la señal de control
(DIRECTO) O para que se desplace hacia
arriba al aumentar el nivel de la señal de
control (INVERSO).
Ajuste de fábrica: DIRECTO
SW 4: ---/Secuencial ❹ ④
Es posible configurar dos actuadores para
que funcionen simultáneamente con una
única señal de control. Si se selecciona el
modo SECUENCIAL, el actuador responderá
a una señal de control dividida (véase 0 (2) V
... 5 (6 V) / 6 (6) V ... 10 V).
Nota:
Esta combinación funciona en combinación
con el interruptor n.º 5: 0 (2) V … 5 (6 V) / 6 (6) V
… 10 V
SW 5: 0(2) V … 5(6 V)/6(6) V … 10 V ❹ ⑤
Nota:
Esta función está disponible si el interruptor
n.º 4 se coloca en la posición: --- / Secuencial.
Es posible configurar el actuador para
adaptarlo al rango de la señal de control:
2 … 6 V (interruptor n.º 2: 2 V … 10)
0 … 5 V (interruptor n.º 2: 0 V … 10)
4 … 12 mA (interruptor n.º 2: 2 V … 10)
0 … 10 mA (interruptor n.º 2: 0 … 10)
O
6 … 10 V (interruptor n.º 2: 2 V … 10)
5 … 10 V (interruptor n.º 2: 0 V … 10)
12 … 20 mA (interruptor n.º 2: 2 V … 10)
10 … 20 mA (interruptor n.º 2: 0 … 10)
SW 6: Proporcional / 3 puntos ❹ ⑥
El actuador puede funcionar como actuador
de tres puntos “sencillo” si se selecciona la
función de 3 puntos. La corriente de
alimentación debe conectarse a los puertos
SN y SP. La señal de 24 VAC se conecta a los
puertos 1 o 3 para que el actuador se
desplace hacia arriba o abajo. La señal de
retorno X indica la posición correcta.
Nota:
Si se selecciona la función de 3 puntos, el
actuador no responderá a ninguna señal de
control recibida a través del puerto Y. Únicamente
se desplazará hacia arriba o hacia abajo si recibe
alimentación a través de los puertos 1 o 3.
SW 7: Flujo LOG / Flujo LIN ❹ ⑦
La válvula AB-QM grande es de tipo lineal. Si
el interruptor se coloca en la posición LIN, la
válvula continuará siendo de tipo lineal. Si el
interruptor se coloca en la posición LOG, el
actuador se modificará de modo que tanto
el actuador como la válvula pasen a ser de
tipo LOG.
Ajustes de fábrica:
Flujo LOG (no se alteran las características de
la válvula)
SW 8: 100% KVS/RED. KVS ❹ ⑧
Configúrese en la posición APAGADO.
SW 9: Restaurar ❹ ⑨
Una vez conectado el actuador a la corriente
de alimentación, éste inicia un proceso de
autoajuste. El diodo LED parpadea hasta que
finaliza el proceso de autoajuste. La duración
de este proceso depende del recorrido del
vástago, aunque suele ser de pocos minutos.
El recorrido de la válvula se almacena en la
memoria una vez finalizado el proceso de
autoajuste. Si desea volver a iniciar el proceso
de autoajuste, cambie la posición del
interruptor RESTAURAR (interruptor n.º 9). Si
se interrumpe la alimentación o ésta cae por
debajo del 80 % durante más de 0,1 s, la
posición actual de la válvula se guarda en la
memoria. De este modo, todos los datos
permanecen guardados en la memoria, incluso
si se interrumpe la corriente de alimentación.
Test de funcionamiento
El diodo luminoso indica si el posicionador
se encuentra o no en funcionamiento.
También indica el estado de control y los
posibles fallos.
Luz fija
- funcionamiento normal
Apagado
- el equipo no está en marcha o no hay
alimentación
Luz intermitente (1 Hz)
- modo de autoajuste
Luz intermitente (3 Hz):
- la corriente de alimentación es
demasiado baja
- el recorrido de la válvula es insuficiente
(< 20 s)
- no se puede alcanzar el recorrido
máximo.