Danfoss ECL Comfort 310 Installationsanleitung
Andere Danfoss Controller Handbücher

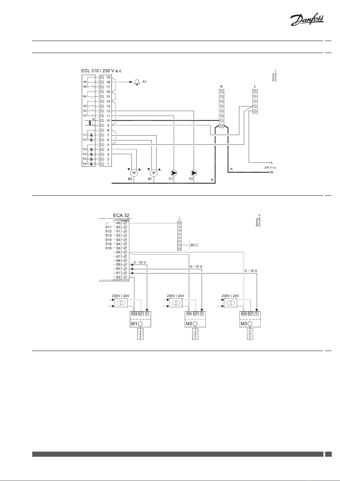
Danfoss
Danfoss Danfoss Link Bedienungsanleitung

Danfoss
Danfoss EKA 183A Bedienungsanleitung

Danfoss
Danfoss ISD Encoder Box Bedienungsanleitung

Danfoss
Danfoss AK-CC55 Bedienungsanleitung

Danfoss
Danfoss ERC 101 kit Bedienungsanleitung

Danfoss
Danfoss AME 655 Bedienungsanleitung

Danfoss
Danfoss AME 35 Bedienungsanleitung

Danfoss
Danfoss ECL Comfort 296 Bedienungsanleitung

Danfoss
Danfoss 101N0715 Bedienungsanleitung

Danfoss
Danfoss A266 Series Installationsanleitung

Danfoss
Danfoss AME 25 Bedienungsanleitung

Danfoss
Danfoss EKC 414A Bedienungsanleitung

Danfoss
Danfoss AK-SM 850 Bedienungsanleitung

Danfoss
Danfoss MCX08M2 Bedienungsanleitung

Danfoss
Danfoss EKC 3 Series Bedienungsanleitung

Danfoss
Danfoss ECL 2000 Bedienungsanleitung

Danfoss
Danfoss 176F7300 Bedienungsanleitung

Danfoss
Danfoss VLT AutomationDrive FC 302 Bedienungsanleitung

Danfoss
Danfoss Link Hydronic Controller Bedienungsanleitung

Danfoss
Danfoss VLT 6000 series Bedienungsanleitung































