
4.6 Mounting information for the
doors
Defining the active door leaf operator
1. For 2-leaf doors, define the door with the active
door leaf operator.
2. Install the ED connection board CAN in the active
door leaf operator.
For doors with closing sequence control, the
door with the active door leaf operator is the
door that opens first.
The active door leaf operator controls the
subordinate passive door leaf operator and
thus the opening and closing of the 2-leaf door.
3. Connect the CAN connection cables of the radar
sensors to the ED connection board CAN in the
active door leaf operator.
Wall opening for CAN connection cable
1. Route the CAN connection cables of both radar
sensors to the ED connection board CAN.
2. Connect the wires of both sensors in parallel or in
series (from sensor to sensor).
ED 100/250 M A01M A01
DIP 4 - ON
DIP 4 - ON
Fig.1: Parallel connection
ED 100/250 M A01 M A01
DIP 4 - ONDIP 4 - OFF
Fig.2: Series connection
3. Make a wall opening at a suitable point if this is
necessary.
4.7 Install individual components
4.7.1 Mounting the radar sensors
dormakaba recommends setting the DIP
switches before the sensor is mounted on the
wall.
The action steps in this manual refer to
operation with 2 sensors.
NOTICE
Functional failure of a radar sensor
The radar module and the radar circuit board
are permanently connected as a unit at the
factory.
Never disconnect the radar module from the
radar board.
üDrill holes for attaching each sensor are set above
the door according to the hole pattern, see “Set
the hole pattern for the sensor [} 4.5]”.
üWall bushing for the CAN connection cable from
the outside detector to the active door leaf
operator has been laid.
üNOTICE!Observe ESD protective measures, see “ESD
(electrostatic discharge) protective measures”.
1. Lift the hood (1) with the front panel (2) off the
base plate (3) using a screwdriver in the recesses
(12) on the back, see “Structure of the sensor
[} 3.4]”.
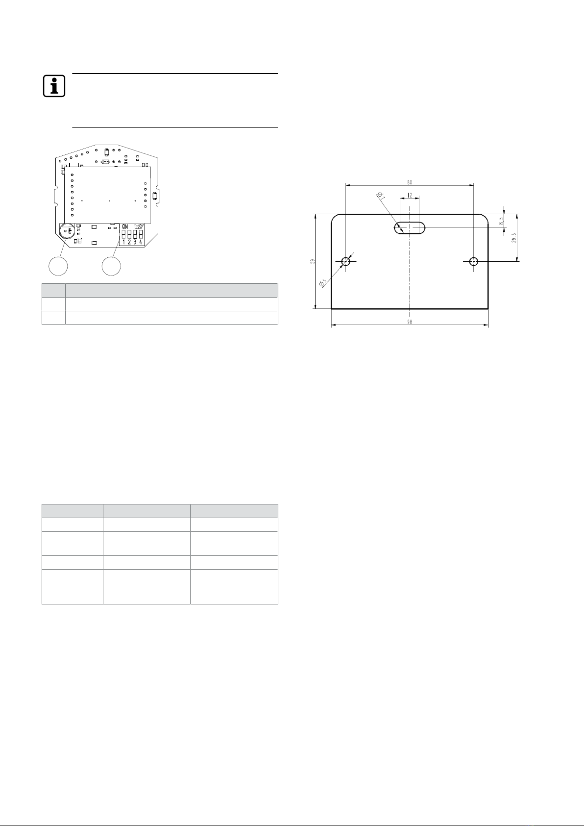
2. Set the DIP switches (7) on the radar circuit board
(8) by hand, see “Structure of the sensor [} 3.4]”
and “DIP switch setting [} 4.4]”.
3. Swivel the locking discs (5) and (6) by hand to a
90° position, see “Structure of the sensor [} 3.4]”.
ðThe back of the radar board is accessible.
4. Plug the CAN plug of the connection cable into a
CAN socket (11). Observe the CAN connector
coding, see “Structure of the sensor [} 3.4]”.
5. Set the tilt angle of the sensor by hand in 15° steps
according to the table below.
6. Guide the CAN connection cable through the
elongated hole (13) in the base plate (3), see
“Structure of the sensor [} 3.4]”.
7. Lay the CAN connection cable with the open cable
ends to the ED CAN connection board in the ED
operator.
8. Screw the opened assembly in the hole pattern of
the base plate (3) over the defined door side, see
“Structure of the sensor [} 3.4]”.
9. If there is a second sensor on the outside of the
door, repeat steps 1 to 8.
ðEach sensor is mounted and adjusted.
The tilt angle depends on the mounting height
Mounting heights
Tilt angle 2.0 2.5 3.0 3.5 4.0
30° x x
45° x x x
(x = Recommended combination)
Assembly Instruction
9060590 45532/16707 - 2023-04 Radar sensor M A01