Information about these operating instructions en│1
English
Translation of the original instructions –ID171/635/0/526
Table of contents
Information about these operating instructions ........................... 3
Note......................................................................................... 3
Declaration of conformity ............................................................ 3
Warranty and manufacturer's guarantee ........................................ 3
Copyright protection ................................................................... 3
Target group ............................................................................. 3
Explanation of symbols, abbreviations, and terminology................... 4
Safety information........................................................................ 5
Proper use and areas of application............................................... 5
Product liability and limitation of liability ........................................ 5
Classification of notices ............................................................... 6
Notices ..................................................................................... 6
Introduction to the system ........................................................... 7
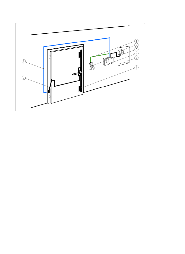
System overview........................................................................ 7
Scope of delivery........................................................................ 7
Finger scanner........................................................................... 8
Code pad ................................................................................ 12
Control panels ......................................................................... 14
Technical specifications ............................................................. 16
Installation ..................................................................................18
Commissioning ............................................................................19
Commissioning the system ........................................................ 19
Performing test mode ............................................................... 21
Operating concept .......................................................................24
Usage of the finger scanner with the app ....................................25
Downloading the app ................................................................ 25
Coupling a mobile device for the first time.................................... 26
Changing security codes............................................................ 27
Storing a finger........................................................................ 28
Disabling Bluetooth................................................................... 29
Coupling additional mobile devices.............................................. 29
Managing multiple Bluetooth finger scanners ................................ 30
Storing the user coupling code ................................................... 31
Resetting the app security code.................................................. 31
Protecting the system in the event that the mobile device is lost ..... 32
Opening a door ........................................................................ 33