I
AVVERTENZE PER L'INSTALLATORE
- Leggere attentamente le avvertenze contenute nel presente documento in quanto forniscono importanti indicazioni riguardanti la sicurez-
za di installazione, d'uso e di manutenzione.
- Dopo aver tolto l'imballaggio assicurarsi dell'integrità dell'apparecchio. Gli elementi dell'imballaggio (sacchetti di plastica, polistirolo espan-
so, ecc.) non devono essere lasciati alla portata dei bambini in quanto potenziali fonti di pericolo. L'esecuzione dell'impianto deve essere
rispondente alle norme CEI vigenti.
- È necessario prevedere a monte dell'alimentazione un appropriato interruttore di tipo bipolare con separazione tra i contatti di almeno 3mm.
-
Prima di collegare l'apparecchio accertarsi che i dati di targa siano rispondenti a quelli della rete di distribuzione.
- Questo apparecchio dovrà essere destinato solo all'uso per il quale è stato espressamente concepito, e cioè per sistemi di citofonia. Ogni
altro uso è da considerarsi improprio e quindi pericoloso. Il costruttore non può essere considerato responsabile per eventuali danni
derivanti da usi impropri, erronei ed irragionevoli.
-
Prima di effettuare qualsiasi operazione di pulizia o di manutenzione, disinserire l'apparecchio dalla rete di alimentazione elettrica, spegnendo l'in-
terruttore dell'impianto.
- In caso di guasto e/o di cattivo funzionamento dell'apparecchio, togliere l'alimentazione mediante l'interruttore e non manometterlo. Per
l'eventuale riparazione rivolgersi solamente ad un centro di assistenza tecnica autorizzato dal costruttore. Il mancato rispetto di quanto so-
pra può compromettere la sicurezza dell'apparecchio.
- Non ostruire le aperture o fessure di ventilazione o di smaltimento calore e non esporre l’apparecchio a stillicidio o spruzzi d’acqua.
- L'installatore deve assicurarsi che le informazioni per l'utente siano presenti sugli apparecchi derivati.
-
Tutti gli apparecchi costituenti l'impianto devono essere destinati esclusivamente all'uso per cui sono stati concepiti.
- Questo documento dovrà sempre rimanere allegato alla documentazione dell'impianto.
Direttiva 2002/96/CE (WEEE, RAEE).
Il simbolo del cestino barrato riportato sull’apparecchio indica che il prodotto, alla fine della propria vita utile, dovendo essere trattato separa-
tamente dai rifiuti domestici, deve essere conferito in un centro di raccolta differenziata per apparecchiature elettriche ed elettroniche oppure
riconsegnato al rivenditore al momento dell’acquisto di una nuova apparecchiatura equivalente.
L’utente è responsabile del conferimento dell’apparecchio a fine vita alle appropriate strutture di raccolta. L’adeguata raccolta differenziata per
l’avvio successivo dell’apparecchio dismesso al riciclaggio, al trattamento e allo smaltimento ambientalmente compatibile contribuisce ad evi-
tare possibili effetti negativi sull’ambiente e sulla salute e favorisce il riciclo dei materiali di cui è composto il prodotto. Per informazioni più det-
tagliate inerenti i sistemi di raccolta disponibili, rivolgersi al servizio locale di smaltimento rifiuti, o al negozio in cui è stato effettuato l’acquisto.
Rischi legati alle sostanze considerate pericolose (WEEE).
Secondo la nuova Direttiva WEEE sostanze che da tempo sono utilizzate comunemente su apparecchi elettrici ed elettronici sono considera-
te sostanze pericolose per le persone e l’ambiente. L’adeguata raccolta differenziata per l’avvio successivo dell’apparecchio dismesso al rici-
claggio, al trattamento e allo smaltimento ambientalmente compatibile contribuisce ad evitare possibili effetti negativi sull’ambiente e sulla salu-
te e favorisce il riciclo dei materiali di cui è composto il prodotto.
SAFETY INSTRUCTIONS FOR INSTALLERS
- Carefully read the instructions on this leaflet: they give important information on the safety, use and maintenance of the installation.
- After removing the packing, check the integrity of the set. Packing components (plastic bags, expanded polystyrene etc.) are dangerous
for children. Installation must be carried out according to national safety regulations.
- It is convenient to fit close to the supply voltage source a proper bipolar type switch with 3 mm separation (minimum) between contacts.
- Before connecting the set, ensure that the data on the label correspond to those of the mains.
- Use this set only for the purposes designed, i.e.for electric door-opener systems. Any other use may be dangerous. The manufacturer is
not responsible for damage caused by improper, erroneous or irrational use.
- Before cleaning or maintenance, disconnect the set.
- In case of failure or faulty operation, disconnect the set and do not open it.
- For repairs apply only to the technical assistance centre authorized by the manufacturer.
- Safety may be compromised if these instructions are disregarded.
- Do not obstruct opening of ventilation or heat exit slots and do not expose the set to dripping or sprinkling of water.
- Installers must ensure that manuals with the above instructions are left on connected units after installation, for users' information.
- All items must only be used for the purposes designed.
- This leaflet must always be enclosed with the equipment.
Directive 2002/96/EC (WEEE)
The crossed-out wheelie bin symbol marked on the product indicates that at the end of its useful life, the product must be handled separately
from household refuse and must therefore be assigned to a differentiated collection centre for electrical and electronic equipment or returned
to the dealer upon purchase of a new, equivalent item of equipment. The user is responsible for assigning the equipment, at the end of its life,
to the appropriate collection facilities. Suitable differentiated collection, for the purpose of subsequent recycling of decommissioned equipment
and environmentally compatible treatment and disposal, helps prevent potential negative effects on health and the environment and promotes
the recycling of the materials of which the product is made. For further details regarding the collection systems available, contact your local
waste disposal service or the shop from which the equipment was purchased.
Risks connected to substances considered as dangerous (WEEE).
According to the WEEE Directive, substances since long usually used on electric and electronic appliances are considered dangerous for peo-
ple and the environment. The adequate differentiated collection for the subsequent dispatch of the appliance for the recycling, treatment and
dismantling (compatible with the environment) help to avoid possible negative effects on the environment and health and promote the recy-
cling of material with which the product is compound.
GB
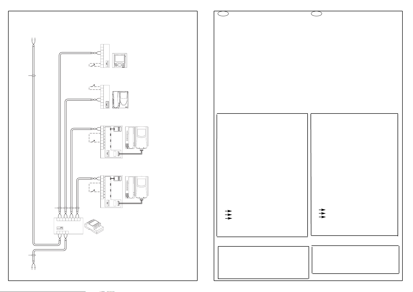
L’Art. 692D/2 è un distributore al piano attivo per impianti video
DUE FILI ELVOX. Lo schema rappresenta il collegamento del solo
montante monitor di un impianto di videocitofono con distribuzione
al piano. Il collegamento completo si ottiene utilizzando lo schema
base allegato all’alimentatore Art. 6922 o alle targhe DUE FILI,
sostituendo il collegamento al montante monitor (che nello schema
è realizzato senza distributore al piano) con il collegamento del
presente foglio. La distanza massima tra una delle uscite del distri-
butore e l’ultimo videocitofono è di 20 metri.
Il consumo di 20 distributori Art. 692D/2 è equivalente ad un video-
citofono acceso, per collegare un numero maggiore di distributori
attivi Art. 692D/2, separare il montante in 2 o più colonne utilizzan-
do un alimentatore Art. 6922 e il separatore Art. 692S.
REGOLAZIONE DEL LIVELLO DEL SEGNALE
Negli impianti in cui è necessario installare il distributore attivo
692D/2 in prossimità del concentratore 692C (ad esempio quando
il montante è molto lungo), il segnale video potrebbe avere un livel-
lo eccessivamente alto e di conseguenza disturbare la visione. In
questi casi è possibile ridurre il segnale, spostando il ponticello
presente sul connettore CN4, dalla posizione H (HIGH) alle posi-
zioni M (MEDIUM) oppure L (LOW). Vedi figura 1.
Type 692D/2 is a
active floor distributor
for video door entry
systems with TWO ELVOX WIRES.The diagram shows only the
connection of monitor cable riser for a video-intercom system with
video signal distributors at the same flooor. The whole connection
is carried out by using the basic wiring diagram enclosed with the
power supply type 6922 or with the TWO WIRE entrance panels,
replacing connection of monitor cable riser (that in this drawing is
without floor distributors) with connection shown in this leaflet.
The maximum distance between one of the distributor output and
the last monitor is of 20 m.
The absorption of 20 distributors type 692D/2 is equivalent of a
monitor switched on. To connect a number of active distributors
type 692D/2, split the riser in two columns by using a power sup-
ply type 6922 and the separator type 692S.
SIGNAL LEVEL ADJUSTMENT
In installations where it is necessary to install the active distributor
type 692D/2 close to the concentrator 692C (for example when
the riser is too long), the video signal might have a level excessi-
vely high and, as a consequence, disturb the vision.
In these cases it is possible to reduce the signal, displacing the
bridge on the connector CN4 from the H (High) position to posi-
tions M (Medium) or L (Low). See Fig. 1
GB
I
IMPIANTI CON DISTRIBUTORE ATTIVO 692D/2
In questi articoli l’ingresso e l’uscita del BUS sono rap-
presentati dalle coppie di morsetti 1-2, 1-2 (1-2, B1-B2
nel 692D/1). Il ponticello va posizionato su “B” (o su ”C”)
SE E SOLO SE tali morsetti non vengono utilizzati per
proseguire il BUS (non è collegato nessun dispositivo per
la terminazione della linea).
INSTALLATIONS WITH ACTIVE DISTRIBUTOR
692D/2
(**) In this articles the BUS input and output are termi-
nals (1-2, B1-B2, in type 692D/2). The jumper is to be
set on “B” (or on “C”). IF AND ONLY IF these terminals
are not used to go on with the BUS (there is no device
connected for the line termination).
BUS TERMINATION TABLE FOR ELVOX TWO WIRE
SYSTEMS
This note is applied to all devices with DUE FILI
ELVOX (two wire Elvox) technology equipped with the
“BUS termination connector”, identified on the electro-
nic card with the “ABC” serigraph and signalled on the
wiring diagrams with a “*”.
For a correct video signal adjustment put the jumper
on strip socket connector.
Follow next rule for the correct line adjustment:
• keep the jumper in “A” position when the BUS line
“pass through” the device;
• keep the jumper in “A” position if the device is con-
nected to a distributor type 692D, 692D/1 or 692D/2
• displace, in the last device, the jumper into “B” posi-
tion in the following cases:
- the “BUS” line “ends within ” the same device (the
last device in configuration “pass through”
- the video signal of the connected distributors type
692D/1 or 692D/2 is not good.
• if the video signal adjustment is not good with jum-
per in “B” position, try “C” position.
“A” NO TERMINATION
“B” TERMINATION 100 Ohm
“C” TERMINATION 50 Ohm
(*) On circuit boards supporting the “ABCD” serigraph
instead of “ABC”, consider the following corresponden-
ces: A = AB; B = BC; C = CD.
**
**
**
TERMINAZIONE BUS PER IMPIANTI DUE FILI ELVOX
Questa nota si applica a tutti i dispositivi in tecnologia
DUE FILI ELVOX dotati del “connettore di terminazione
BUS”, identificato sulla scheda elettronica dalla scritta
serigrafica “ABC” e segnalata sugli schemi di collegamen-
to con * . Su questo connettore va inserito un ponticello al
fine di poter adattare il segnale video.
La regola da seguire per un corretto adattamento di linea è:
• mantenere il ponticello in posizione “A” se il BUS entra
ed esce dal dispositivo;
• mantenere il ponticello in posizione “A” se il dispositivo
è collegato ad un distributore art. 692D, 692D/1 o
692D/2;
• spostare, nell’ultimo dispositivo, il ponticello in posizio-
ne “B”, nei seguenti casi:
- la linea del BUS “termina” nel dispositivo stesso
(ultimo dispositivo in configurazione entra ed esce);
- il segnale video dei dispositivi collegati ai distri-
butori art. 692D/1 o 692D/2 non è soddisfacente;
• se la resa in “B” non è del tutto soddisfacente, provare
la posizione “C”.
“A” NESSUNA TERMINAZIONE
“B” TERMINAZIONE 100 Ohm
“C” TERMINAZIONE 50 Ohm
(*) Nelle schede che riportano la serigrafia “ABCD” al
posto di “ABC”, considerare le seguenti corrispondenze A
= AB; B = BC; C = CD.