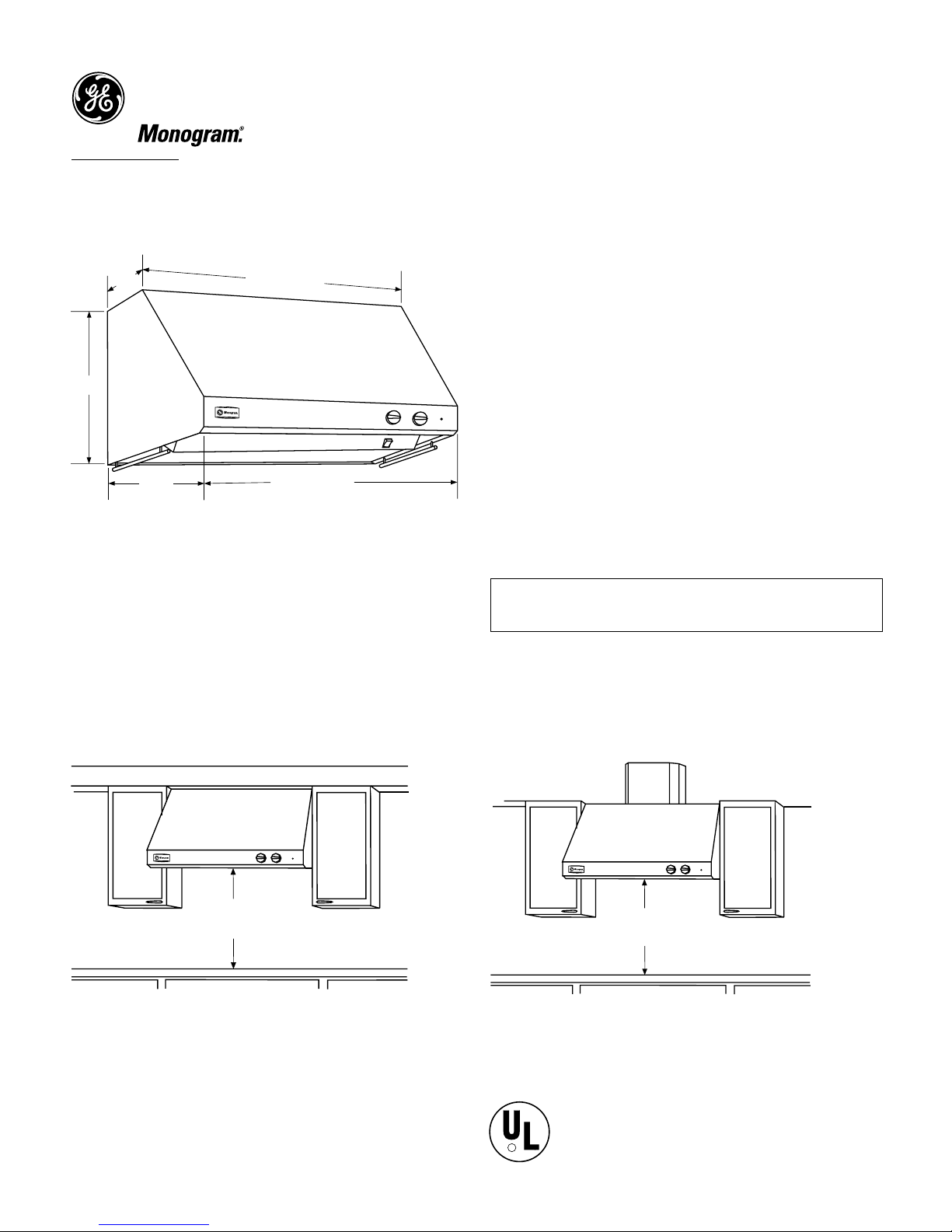
ZV36SSFSS –GE Monogram 36" Stainless Steel Professional Hood
Specification Created 10/02
Optional Duct Cover Accessories
Decorative duct covers are available in 6" and 12" heights. Duct covers may be
stacked, in various combinations, to conceal the ductwork running from the
top of the hood to the ceiling.
•Before you begin, you should determine the installation height of the
hood and order the correct size duct cover. The duct covers should be
ordered at the same time as the vent hood and be on site before
installation. Order the duct cover corresponding to your model.
6" Duct Covers
Hood Model 6" Duct Cover Dimensions
ZV48T, ZV48S ZX48DC6 6"H x 19-11/16"W x 11-7/8"D
ZV36T, ZV36S ZX36DC6 6"H x 15-3/4"W x 11-7/8"D
ZV30T, ZV30S ZX36DC6 6"H x 15-3/4"W x 11-7/8"D
12" Duct Covers
Hood Model 12" Duct Cover Dimensions
ZV48T, ZV48S ZX48DC12 12"H x 19-11/16"W x 11-7/8"D
ZV36T, ZV36S ZX36DC12 12"H x 15-3/4"W x 11-7/8"D
ZV30T, ZV30S ZX36DC12 12"H x 15-3/4"W x 11-7/8"D
For answers to your Monogram,
®GE Profile™or
GE appliance questions, visit our website at
GEAppliances.com or call
GE Answer Center®service, 800.626.2000.
Listed by
Underwriters
Laboratories
Advanced Planning
Ductwork Planning
•These vent hoods are equipped for 10" round ductwork. In most instances
they may be transitioned to 8" round.
•This hood may be vented vertically through upper cabinets, soffit or ceiling.
A duct transition piece is supplied for vertical exhaust. Use locally supplied
elbows to vent horizontally through the rear wall.
•Determine the exact location of the vent hood.
•Plan the route for venting exhaust to the outdoors.
•Use the shortest and straightest duct route possible. For satisfactory
performance, duct run should not exceed 150 ft. equivalent length for
any duct configurations.
•Refer to “Duct Fittings”chart to compute the maximum permissible
length for duct runs to the outdoors.
•Use metal ductwork only.
•Install a wall cap or roof cap with damper at the exterior opening. Order
the wall or roof cap and any transition needed in advance.
Wall Framing for Adequate Support
•These vent hoods are heavy. Adequate structural support must be provided.
Hoods must be secured to vertical studs in the wall.
•It is strongly recommended that the vent hood with duct cover be on site
before final framing and wall finishing. This will also help to accurately
locate the ductwork and electrical service.
Decorative Duct Covers:
Decorative duct covers, 6" and 12" high, are available to fit all models. The
duct cover conceals the ductwork running from the top of the hood to the
ceiling or soffit. Stack one or more duct covers over the top of the hood
to reach your ceiling height.
POWER SUPPLY
IMPORTANT –(Please read carefully)
WARNING: FOR PERSONAL SAFETY, THIS APPLIANCE MUST BE
PROPERLY GROUNDED.
Remove house fuse or open circuit breaker before beginning installation.
Do not use an extension cord or adapter plug with this appliance. Follow
national electrical codes or prevailing local codes and ordinances.
Electric supply
These vent hoods must be supplied with 120V, 60Hz, and connected to an
individual, properly grounded branch circuit, and protected by a 15 or 20 amp
circuit breaker or time delay fuse.
•Wiring must be 2 wire with ground.
•If the electrical supply does not meet the above requirements, call a
licensed electrician before proceeding.
•Route house wiring as close to the installation location as possible on the
back wall or ceiling.
•Connect the wiring to the house wiring in accordance with local codes.
Grounding instructions
The grounding conductor must be connected to a ground metal, permanent
wiring system, or an equipment-grounded terminal or lead on the hood.
WARNING: The improper connection of the equipment-grounding
conductor can result in a risk of electric shock. Check with a qualified
electrician or service representative if you are in doubt whether the appliance
is properly grounded.