
2
Before you begin—Read these instructions completely and carefully.
IMPORTANT: Save these instructions for local inspector’s use.
IMPORTANT: OBSERVE ALL GOVERNING CODES AND ORDINANCES.
Note to Installer: Be sure to leave these instructions with the Consumer.
Note to Consumer: Keep these instructions with your Owner’s Manual for future reference.
This appliance must be properly grounded. See “Power Supply”, page 10.
CAUTION
WARNING
If you received a damaged vent, you should
immediately contact your dealer or builder.
Proper installation is the responsibility of the
installer. Product failure due to improper
installation is not covered under the GE
Appliance Warranty. See the Owner’s Manual
for warranty information.
For Monogram local service in your area,
1-800-444-1845.
For Monogram service in Canada,
1-888-880-3030.
For Monogram Parts and Accessories, call
1-800-626-2002.
www.monogram.com
WARNING:
To reduce the risk of fire, electric shock, or
injury to persons, observe the following.
A. Use this unit only in the manner intended
by the manufacturer. If you have questions,
contact the manufacturer.
B. Before service or cleaning unit, switch
power off at service panel and lock the
service disconnecting means to prevent
power from being switched on accidentally.
When the service disconnecting means
cannot be locked, securely fasten a promi-
nent warning device, such as a tag, to the
service panel.
• Do not attempt to repair or replace any part
of the downdraft system unless it is specifi-
cally recommended in this book. All other
servicing should be performed by a quali-
fied technician.
• For general ventilating use only. Do not use
the exhaust hazardous or explosive materials
and vapors.
• Installation work and electrical wiring must
be done by a qualifed person(s). In accor-
dance with all applicable codes and stan-
dards including fire-rated construction.
To reduce the risk of fire and to properly
exhaust air, be sure to duct air outdoors. Do
not vent exhaust air into spaces within walls or
ceilings or into attics, crawl spaces or garages.
WARNING: TO REDUCE THE RISK OF
FIRE, USE ONLY METAL DUCTWORK.
Do not attempt to repair or replace any part
of the downdraft system unless it is specifically
recommended in this book. All other servic-
ing should be performed by a qualified
technician.
Contents Design Information
Models Available ........................................................... 3
Accessories ..................................................................... 3
Product Dimensions ..................................................... 3
Advance Planning ..................................................... 4, 5
Installation Preparation
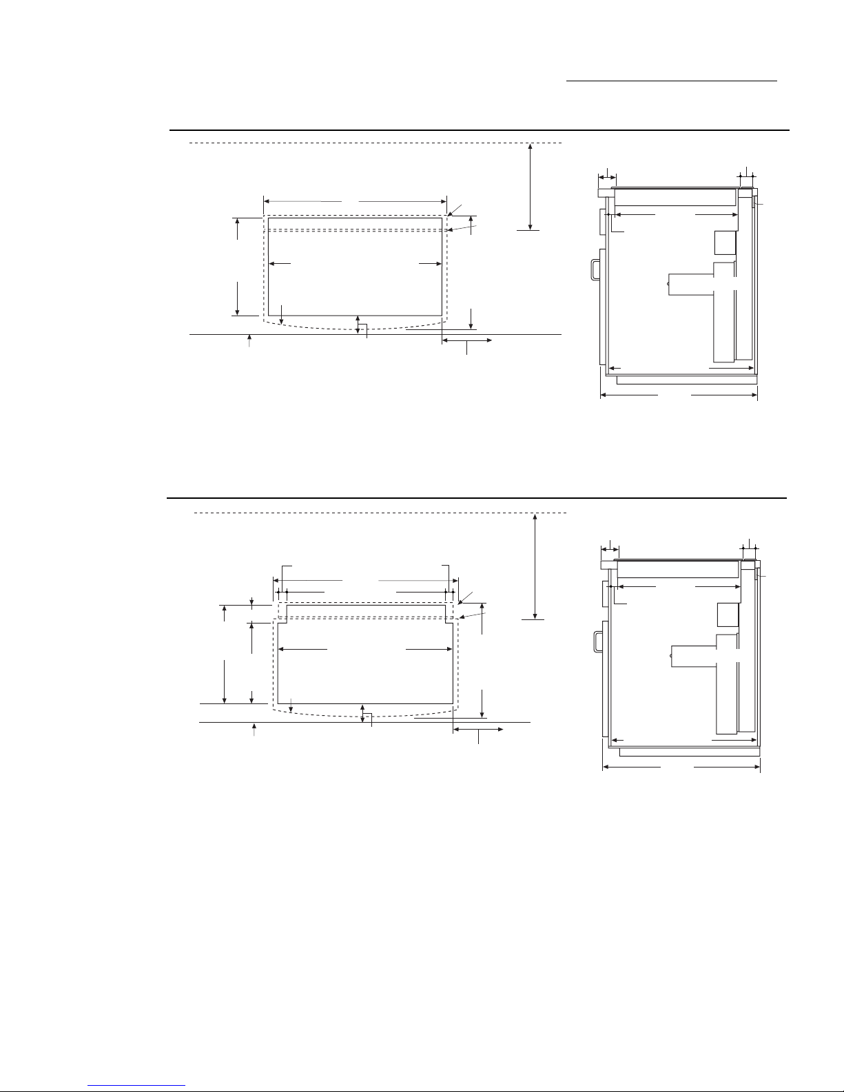
Cutouts for Monogram Cooktops ...................... 6, 7, 8
Clearances...................................................................... 9
Tools and Materials Required ...................................... 9
Parts Supplied ............................................................... 9
Remove Packaging ...................................................... 10
Power Supply ............................................................... 10
Venting Options .................................................... 11, 12
Ductwork
Duct Fittings ................................................................ 13
Installation
Step 1, Install Downdraft Vent ................................... 14
Step 2, Install the Ductwork ....................................... 14
Step 3, Install Raise/Lower Switch ............................ 15
Step 4, Connect Power ............................................... 16
Step 5, Install Filters, Check Operation.................... 16
Cleaning ....................................................................... 16
Accessories
JXRB57 Kit for Indoor Remote Blower Locations ... 17
JXBC57 Kit for Outdoor Remote Blower Locations 20