
507788-01C mrcool.com Page 3 of 20
Shipping and Packing List
Package 1 of 1 contains:
Check the air handler for shipping damage; if found,
immediately contact the last carrier. Check the unit rating
General
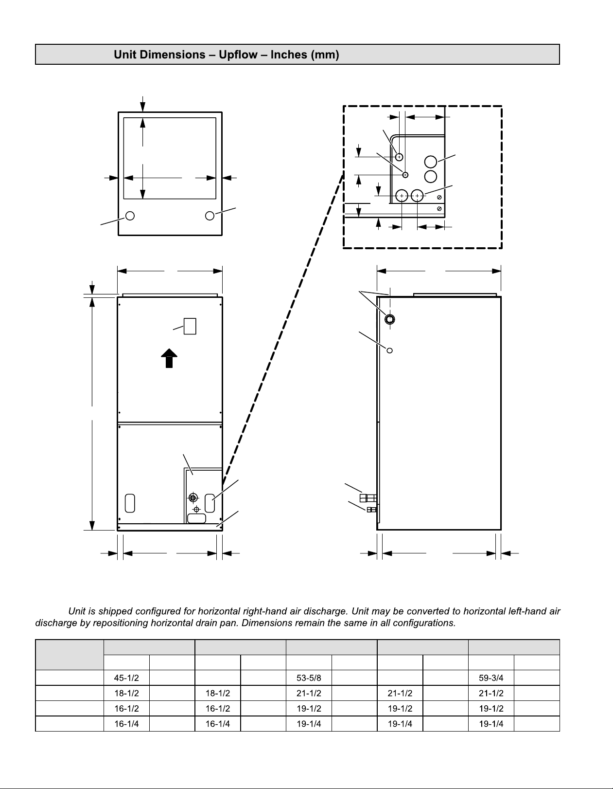
The MAHM*ETA
is designed for indoor installation only. As shipped, the
right-hand air discharge applications. Horizontal drain
in the horizontal left-hand air discharge position. Various
accessories are available and listed in the MAHM*ETA Product
This instruction is intended as a general guide and does
authorities having jurisdiction before installation.
NOTE:
Requirements
can result in back or other type of injury.
WARNING
MAHM*ETA
varying capacities. These units must be installed as
a part of a matched system as outlined in the MAHM*ETA
IMPORTANT
These instructions are intended as a general guide and do
authorities having jurisdiction before installation.
pertaining to this type of equipment should be determined
as the instructions supplied in separate equipment, before
starting the installation.
In addition to conforming to manufacturer’s installation
instructions and local municipal building codes, installation
(NFPA) standards: “Standard for Installation of Air
Conditioning and Ventilation Systems” (NFPA No. 90A)
and “Standard for Installation of Residence Type Warm Air
Heating and Air Conditioning Systems” (NFPA No. 90B).
All models are designed for indoor installation only. The
must conform to the requirements of the National Electrical
Local authorities having jurisdiction should be consulted
before installation is made. Such applicable regulations
or requirements take precedence over the general
instructions in this manual.
the Installation of Warm Air Heating and Air-Conditioning
Systems (latest edition).
The air handler is shipped from the factory completely
connection of the duct system.
Do not remove the cabinet knockouts until it has been
the installation.
conditions. Consider required clearances, space, routing
requirements for refrigerant line, condensate disposal,
information.
materials and vapors, such as gasoline,
that heating elements are at least 18 inches
instructions can result in death, explosion,
WARNING