
SAVE
3
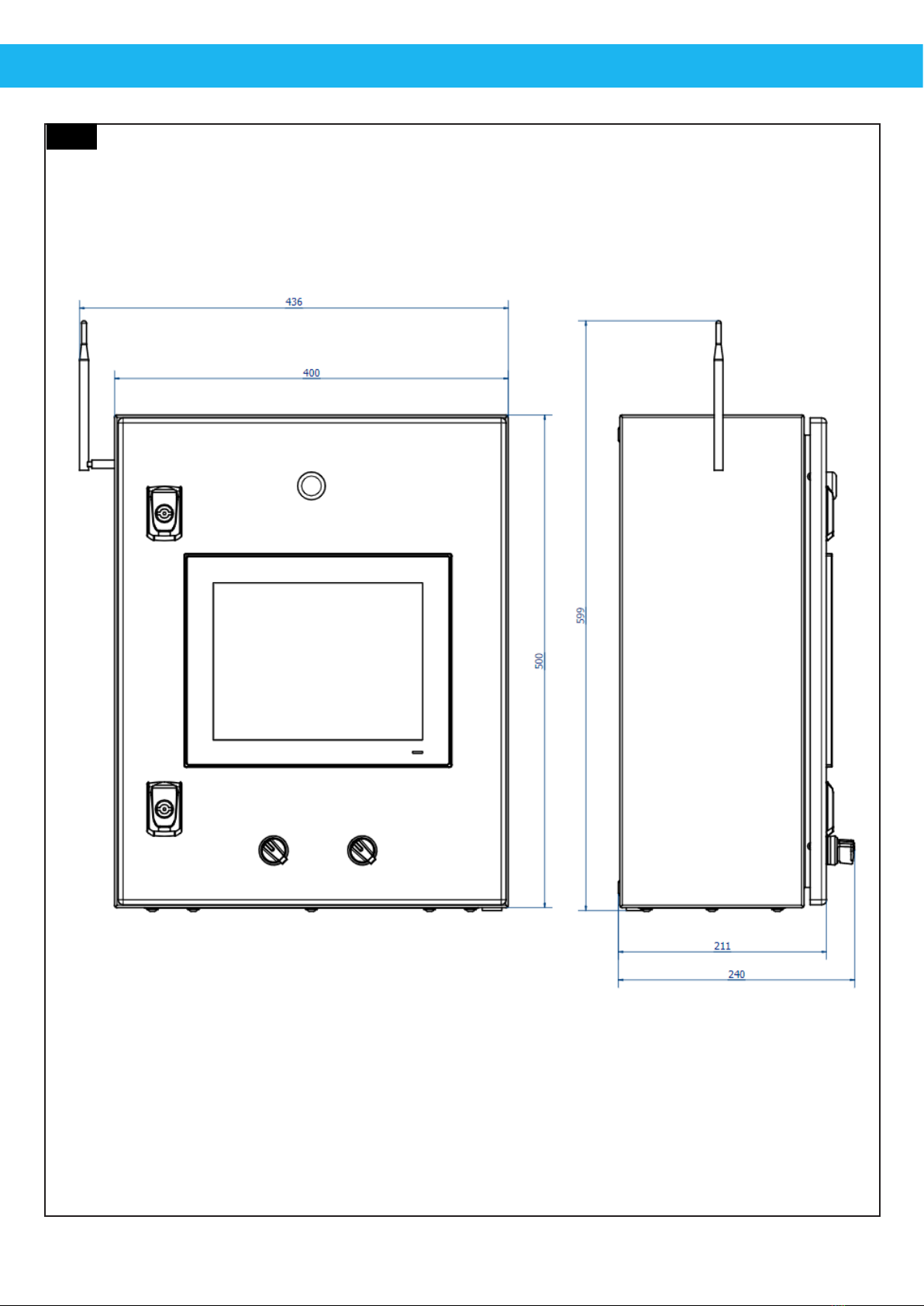
QMM095(A)
Figures......................................................................................................................................................4
English..................................................................................................................................................19
Polski....................................................................................................................................................... 31