
3
6 Verdrahtung
Die Verdrahtung der Kabel erfolgt an den codierten Anschlusssteckern des Schaltpultes. Das Schaltpult muß hierzu nicht
geöffnet werden.
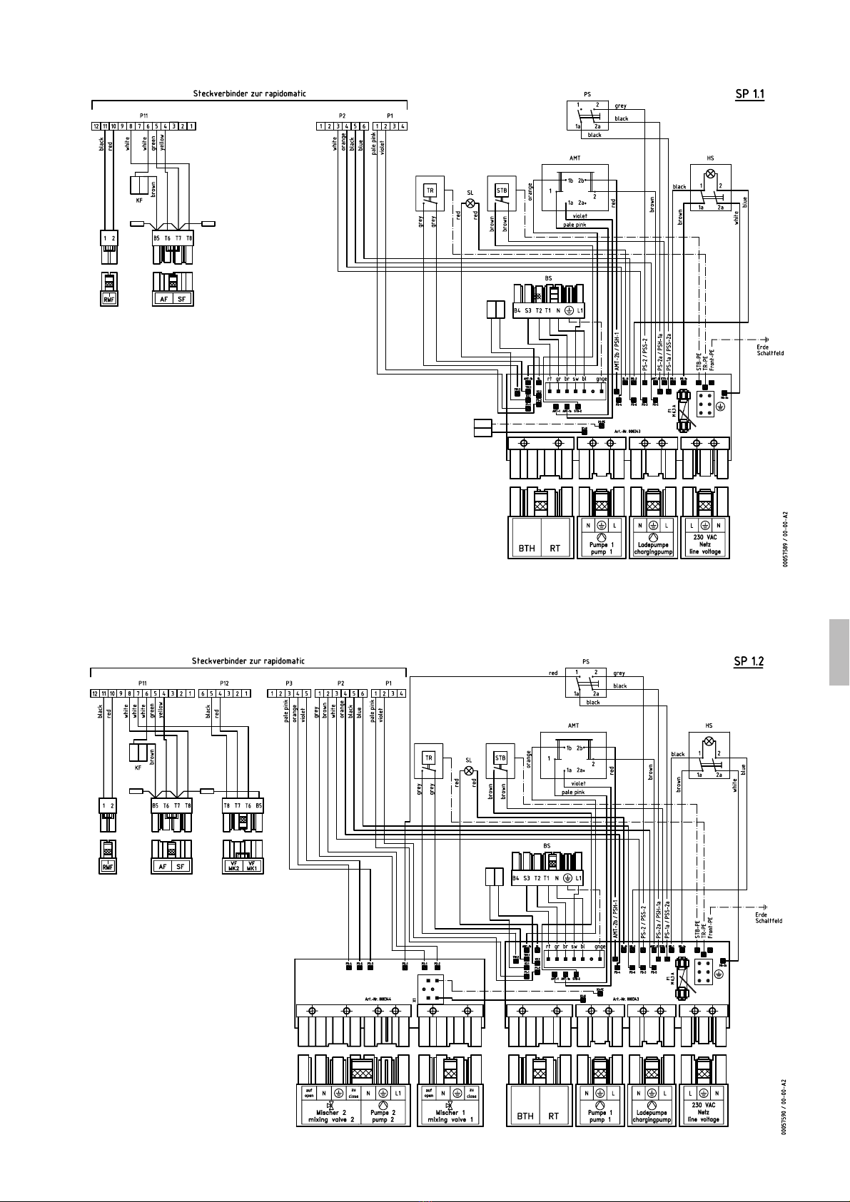
Abb. 6.1 Stecker für den Elektroanschluss
•Das Schaltpult ist serienmäßig mit zwei renneran-
schlusskabeln mit rennerstecker für Stufe 1 und Stufe
2 ausgerüstet.
Diese werden rechts und links in die an der Seiten-
verkleidung vorgesehenen Kabelführungen geklemmt
und mittig unter dem Frontblech hindurch zum renner
geführt.
•Die bauseitigen Elektroanschlüsse sind an den entspre-
chenden Steckern am Schaltpult vorzunehmen. Wir
empfehlen, zunächst einen der benötigten Stecker (z. .
Netz) vom Schaltpult abzuziehen und die einzelnen
Kabeladern gemäß der Steckerbeschriftung anzuschlie-
ßen. Anschließend wird der Stecker wieder auf das
Schaltpult gesteckt. Dann folgt die Verdrahtung des
nächsten auteils (z. . Pumpe 1) usw..
•Der Kesselfühler ist an dem gekennzeichneten Kabel
des Schaltpultes (bei den Fühlerelementen) anzuschlie-
ßen. Dafür ist die vorgesehene Klemme herunterzu-
drücken, das Kabel einzuführen und die Klemme
wieder zu entlastet.
Gefährliche elektrische Spannung!
Stellen Sie sicher, dass bei der ontage alle
elektrischen Teile spannungsfrei sind!
Das Schaltpult darf nur von autorisierten
Fachhandwerkern installiert werden!
Zur Stromversorgung des Schaltpultes muß
ein externer Heizungsnotschalter angeschlos-
sen werden, der eine sichere Trennung vom
Hausnetz bewirkt.
Die für den elektrischen Anschluss des
Schaltpultes verwendeten Kabel sind in Ihren
Querschnitten so zu wählen, dass die Zug-
entlastungsfunktion der Stecker sicher und
zuverlässig gewährleistet ist.
ei der Kabelführung in keinem Fall Fühler-
leitungen und 230 V-Leitungen im selben Kabel-
kanal verlegen.
6.2 rapidomatic T2.3 S (nur SP 1.2)
Die elektrischen Anschlüsse sind an den folgenden Stek-
kern vorzunehmen:
Spannungsversorgung: Stecker Netz
Heizungsumwälzpumpe
Radiatorenkreis DK1: Stecker Pumpe 1
Speicherladepumpe: Stecker Ladepumpe
Heizungsumwälzpumpe
Mischerkreis MK2: Stecker Pumpe 2
Mischermotor MK2: Stecker Mischer 2
Außenfühler: Stecker AF
Speicherfühler: Stecker SF
Vorlauffühler MK2: Stecker VF-MK 2
6.1 rapidomatic T2 S
Die elektrischen Anschlüsse sind an den folgenden Stek-
kern vorzunehmen:
Spannungsversorgung: Stecker Netz
Heizungsumwälzpumpe: Stecker Pumpe 1
Speicherladepumpe: Stecker Ladepumpe
Außenfühler: Stecker AF
Speicherfühler: Stecker SF
•Zum etrieb stellen Sie den Kesseltemperaturregler
auf 90°C. Den auto/man/TÜV-Schalter, den Pumpen-
schalter rauchwasser sowie den Pumpenschalter
Kreis 1 stellen Sie auf Position auto.
Es ist durch entsprechende Verlegung und
Fixierung bauseitig sicherzustellen, dass zu-
und abgehende Kabel nicht durch Zug-
belastung bei Wartung und Reinigung der An-
lage beschädigt werden können.
•Zum Einsetzen der rapidomatic wird zunächst die
lindblende rechts im Schaltpult mit einem
Schraubendreher entfernt. Anschließend werden sämt-
liche Stecker, die sich im Schaltpult befinden, auf die
Regelung aufgesteckt. Danach wird die Regelung in
die Aussparung im Schaltpult gesetzt und dort mit ei-
nem Schraubendreher befestigt.
Schaltpult SP 1.1
Schaltpult SP 1.2