
SEC1000 FIRE ALARM CONTROL PANEL DOC NO. EM30165200200907/V1.0
CONTENTS
1. About This Manual...................................................................................................................................... 2
2. Introduction..................................................................................................................................................2
2.1 Overview............................................................................................................................................. 2
2.2 Technical Specifications....................................................................................................................2
3. Installation and Connections..................................................................................................................... 3
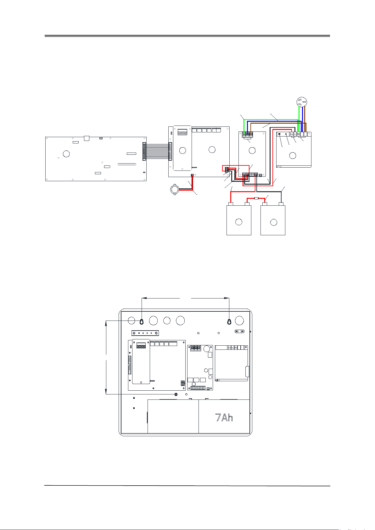
3.1 Panel’s interior................................................................................................................................... 3
3.2 Internal wiring....................................................................................................................................5
3.3 Mounting the chassis to the wall....................................................................................................5
3.4 Mains connection..............................................................................................................................6
3.5 Battery connection............................................................................................................................ 6
3.6 Points connection to the loop.........................................................................................................7
3.7 Maximum loop cable length recommendations.......................................................................... 8
3.8 Other terminal connections.............................................................................................................8
4. Indications and Controls.............................................................................................................................9
4.1 LED indicators.................................................................................................................................... 9
4.2 Button controls................................................................................................................................ 10
4.3 Zone Indicators................................................................................................................................11
5. Commissioning and Programming.........................................................................................................11
5.1 Overview........................................................................................................................................... 11
5.2 Functions available at access level 3............................................................................................ 11
5.2.1 System setup.........................................................................................................................11
5.2.2 Bus setup............................................................................................................................... 13
5.2.3 C&E programming...............................................................................................................15
5.2.4 Disable/test functions..........................................................................................................17
5.2.5 Advanced functions............................................................................................................. 18
5.2.6 View system and software version info............................................................................ 20
6. Battery Capacity Calculation.................................................................................................................... 21
7. Maintenance and Troubleshooting........................................................................................................ 21
7.1 Maintenance.................................................................................................................................... 21
7.2 Troubleshooting.............................................................................................................................. 22
Annex - Device type list................................................................................................................................ 23