
Water Quality:
All water, including potable water supplied by
municipalities, contains some impurities or
minerals. Water absorbs impurities from the air as
rain and/or as it flows through the ground. Some of
the impurities are solid particles, these are known
as suspended solids, and a fine particle filter will
remove them. Other impurities are chemically
bonded to the water molecules, and cannot be
filtered out, these are called dissolved solids.
Ice made by this machine will have a lower mineral
content than the water it was made from. This is
due to the method of making ice. Purer water will
freeze first in the ice making molds. The reason for
this is that anything dissolved in water lowers the
water’s freezing temperature. This concentrates
most of the impurities in the ice machine water
reservoir where they may form hard deposits
known as scale. The machine dilutes the
concentration of minerals by over-filling the
reservoir during the harvest cycle (with the excess
water flowing down the drain). About 3 quarts of
water flow into the unit each cycle. About 1 quart of
that rinses the reservoir and goes down the drain.
Some impurities will inevitably remain, and will stick
to the parts in the machine, and will cause
malformed ice cubes. Eventually, built up mineral
scale can shorten machine life.
To keep the machine operating properly, these
impurities or minerals will have to be regularly
dissolved by an acid cleaning, using Scotsman Ice
Scale Remover. Directions for this may be found in
the section under cleaning.
Filters and Treatment
In general, it is always a good idea to filter the
water. A water filter, if it is of the proper type, can
remove taste and odors as well as particles. Some
methods of water treatment for dissolved solids
include reverse osmosis, and polyphosphate
feeders. A reverse osmosis system should include
post treatment to satisfy the R.O. water’s potential
aggressiveness. Deionized water is not
recommended.
Because water softeners exchange one mineral for
another, softened water may not improve water
conditions when used with ice machines. Where
water is very hard, softened water could result in
white, mushy cubes that stick together.
If in doubt about the water, contact a local point of
use water specialist for recommendations on water
treatment.
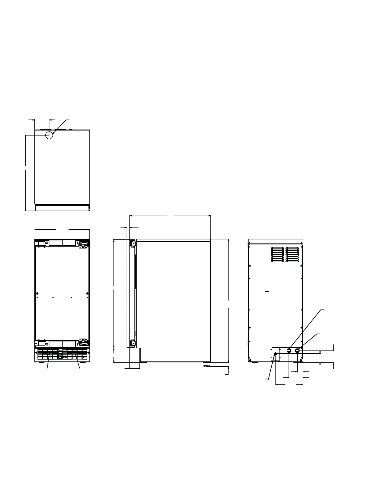
Installation Overview
The ice machine must be connected to cold,
potable water; it must have a drain; it must be
connected to the proper power supply and must be
able circulate air through the vents at the front.
November 2009
Page 6
SCCG30 & SCCP30
User Manual