
Planning Information
Integrated Model 700BC(I)
Dimensions in parentheses are in
millimeters unless otherwise specified. 5
INSTALLATION NOTES
Refer to the illustrations and specifications
for overall dimensions, finished rough opening
dimensions and installation specifics.
IMPORTANT NOTE: The depth of Model
700BC(I) is 24" (610) from the front of the unit
to its back. Your design may necessitate
moving the unit back, or cabinets forward to
achieve a flush fit. This will require a minimum
rough opening depth of 25" (635). Refer to the
installation illustration on page 4.
The anti-tip bracket must be installed to
prevent the unit from tipping forward.
Integrated units are compatible with virtually
any style of cabinetry. They can be used with
framed as well as frameless cabinets.
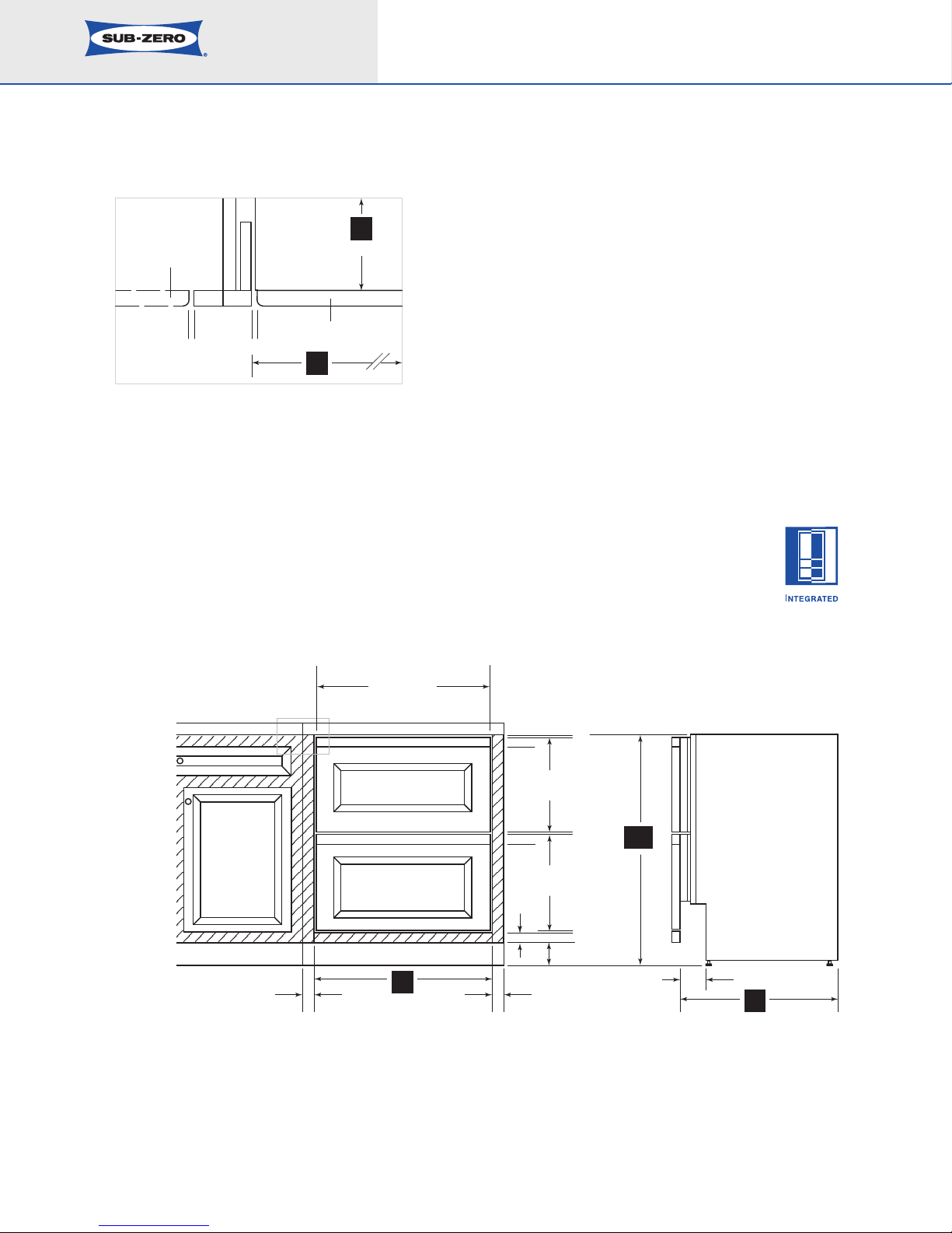
The weight of each drawer panel cannot
exceed 12 lbs (5 kg). Drawer panels must be a
minimum of 5/8"(16) thick.
For the bottom drawer, the maximum panel
height is 1611/16"(424). You must keep a
minimum space of 4" (102) clear below the
bottom edge of the lower drawer panel, so the
unit can be properly vented. In addition, any
decorative base molding must be removable for
possible servicing and cleaning of the
condenser.
We recommend using D-style handles, which
should be located on the top, center area of the
drawer panel.
Two Integrated units may be installed next to
one another. Refer to page 10 for additional
information.
For Integrated models with an automatic ice
maker, rough in the water supply line. Connect a
1/4"OD copper line to the house supply,being
sure to use an easily accessible shut-off valve
between the supply and the unit. This shut-off
valve should not be installed behind the unit.
Do not use self-piercing valves. A saddle
valve kit (4200880) is available from your
Sub-Zero dealer. To obtain local dealer informa-
tion, visit the Locator section of our website,
subzero.com.
Aline filter is required when water condi-
tions have a high sediment content. The ice
maker operates on water pressure of 20 psi
(1.4 bar) to 100 psi (6.9 bar). In some cases a
reverse osmosis water filter system may not be
able to maintain the minimum water pressure
consistently.
When routing the water through the side
walls, you must place the water line within 1/2"
(13) of the floor and as close as possible to the
back wall. The line must be routed around the
anti-tip bracket so it clears the bracket and
leveling feet of the unit. Refer to the installation
illustration on page 4 for placement of the
water line.
Do not route water supply line in front of the
compressor tray. The tray must be slid forward
for service.
Regardless of the routing, allow for 27"
(686) of excess copper tubing to remain outside
the wall or floor for easy connection to the unit,
as shown in the installation illustration on
page 4.
A115 volt, 6OHz, 15 amp circuit breaker and
electrical supply are required. A separate circuit,
servicing only this appliance is necessary.
All Integrated models are equipped with a
power supply cord with a 3-prong grounding
plug,which must be plugged into a mating
3-prong grounding type wall receptacle. The
electrical outlet must be placed so the ground-
ing prong is to the right of the thinner blades.
The outlet must be flush with the back wall.
Locate electrical within the shaded area shown
in the installation illustration on page 4.
Do not use an extension cord or two prong
adapter. Electrical ground is required on this
appliance.Do not under any circumstances
remove the power supply cord ground prong.
You must follow all National Electrical Code
regulations. In addition, be aware of local codes
and ordinances when installing your service.
The Integrated Refrigeration Installation
Instructions packed with the appliance will give
you step-by-step procedures for making sure
the unit is installed properly.