
7
Dimensions in parentheses are in
millimeters unless otherwise specified.
INTEGRATED INSTALLATION INSTRUCTIONS
ELECTRICAL REQUIREMENTS
A 115 V AC, 60 Hz, 15 amp circuit breaker and
electrical supply are required. A separate
circuit, serving only this appliance, is required
for each Integrated unit.
All Integrated models are equipped with a
power supply cord with a 3-prong grounding
plug, which must be plugged into a mating
3-prong grounding-type wall receptacle. Follow
the National Electrical Code and local codes
and ordinances when installing the receptacle.
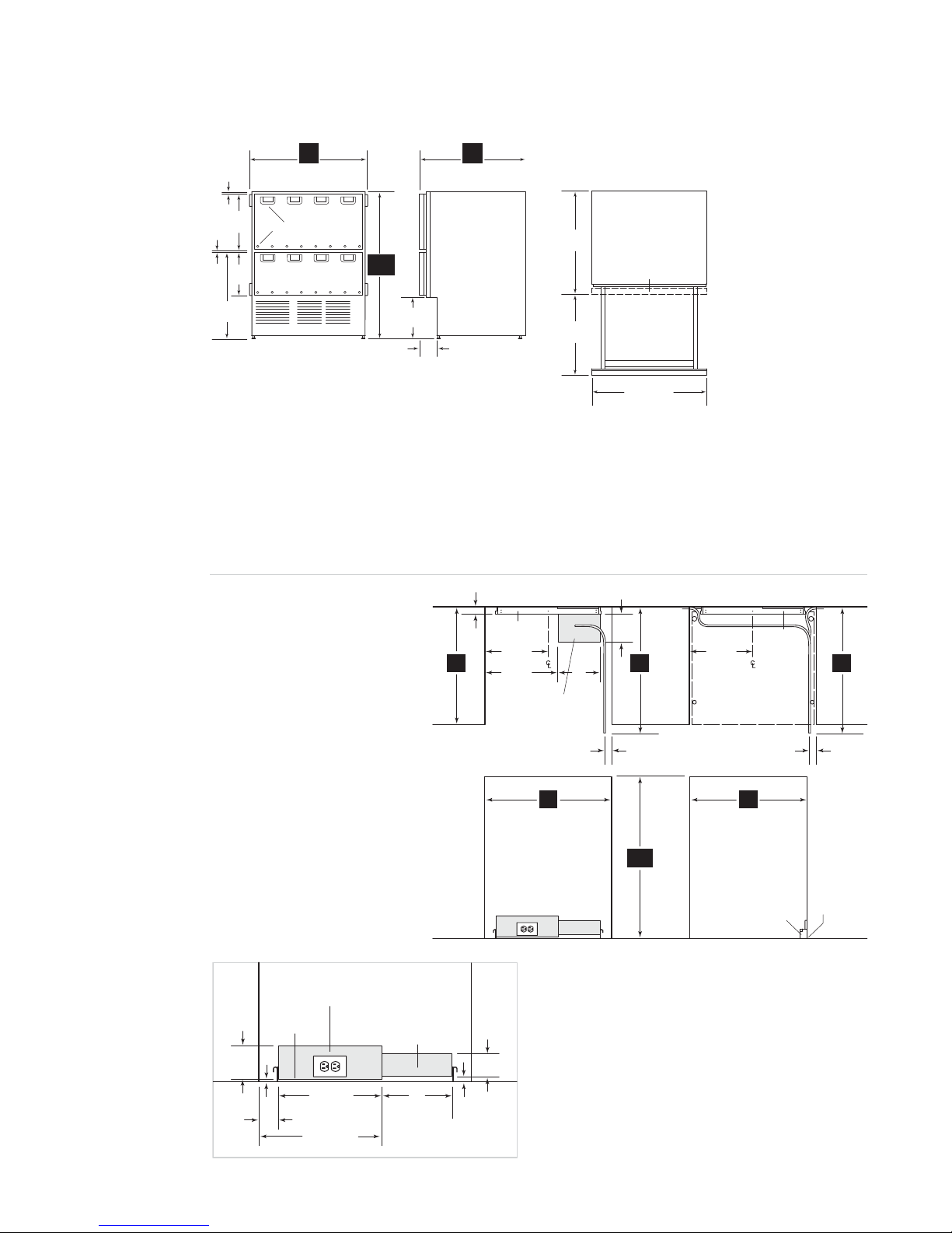
For location of the electrical supply, refer to
the Installation illustration for your unit on
pages 4–6.
IMPORTANT NOTE:
The electrical outlet must
be placed so that the grounding prong is to the
right of the thinner blades. The outlet must be
flush with the back wall.
IMPORTANT NOTE:
A ground fault circuit
interrupter (GFCI) is not recommended and
may cause interruption of operation.
Do not use an extension cord or two-
prong adapter. Electrical ground is
required on this appliance. Do not remove
the power supply cord ground prong.
The outlet must be checked by a qualified
electrician to be sure that it is wired with
the correct polarity. Verify that the outlet
provides 115 V AC and is properly
grounded.
PLUMBING REQUIREMENTS
For Integrated models with an automatic ice
maker, rough in the water supply line. Connect
the 1/4" water line from the ice maker water
valve to the copper water supply. Use an easily
accessible shut-off valve between the water
supply and the unit. This shut-off valve should
not be installed behind the unit. Do not use
self-piercing valves. A saddle valve kit (part
#4200880) is available from your Sub-Zero
dealer.
The Installation illustrations on pages 4–6
show the precise placement of the water line.
When routing through the side walls, you must
place the water line within 1/2" (13) of the floor
and as close as possible to the back wall.
The line must be routed around the anti-tip
bracket so it clears the bracket and the leveling
feet of the unit. Refer to the top view in the
Installation illustration for your unit on pages
4–6. Regardless of the routing, allow for 27"
(686) of excess water line to remain outside
the wall or floor for easy connection to the
unit.
IMPORTANT NOTE:
Do not route the water
supply line in front of the compressor tray.
The tray must be slid forward for service.
A line filter is required when water conditions
have a high sediment content. The ice maker
operates on water pressure of 20 psi (1.4 bar)
to 100 psi (6.9 bar).
A reverse osmosis system can be used,
provided there is a consistent water pressure
of 20 psi (1.4 bar) to 100 psi (6.9 bar) supplied
to the water valve at all times.
IMPORTANT NOTE:
In some cases a reverse
osmosis water filter system may not be able
to maintain the minimum water pressure
consistently.
Always shut power off at the circuit
breaker before performing any installa-
tion, service or maintenance.
ACCESSORIES
Optional acces-
sories are available
through your
Sub-Zero dealer. To
obtain local dealer
information, visit
the Showroom
Locator section of
our website,
subzero.com. For
questions relative
to the installation,
call Sub-Zero at
800-222-7820.