
Planning Information
Wine Storage Model 427
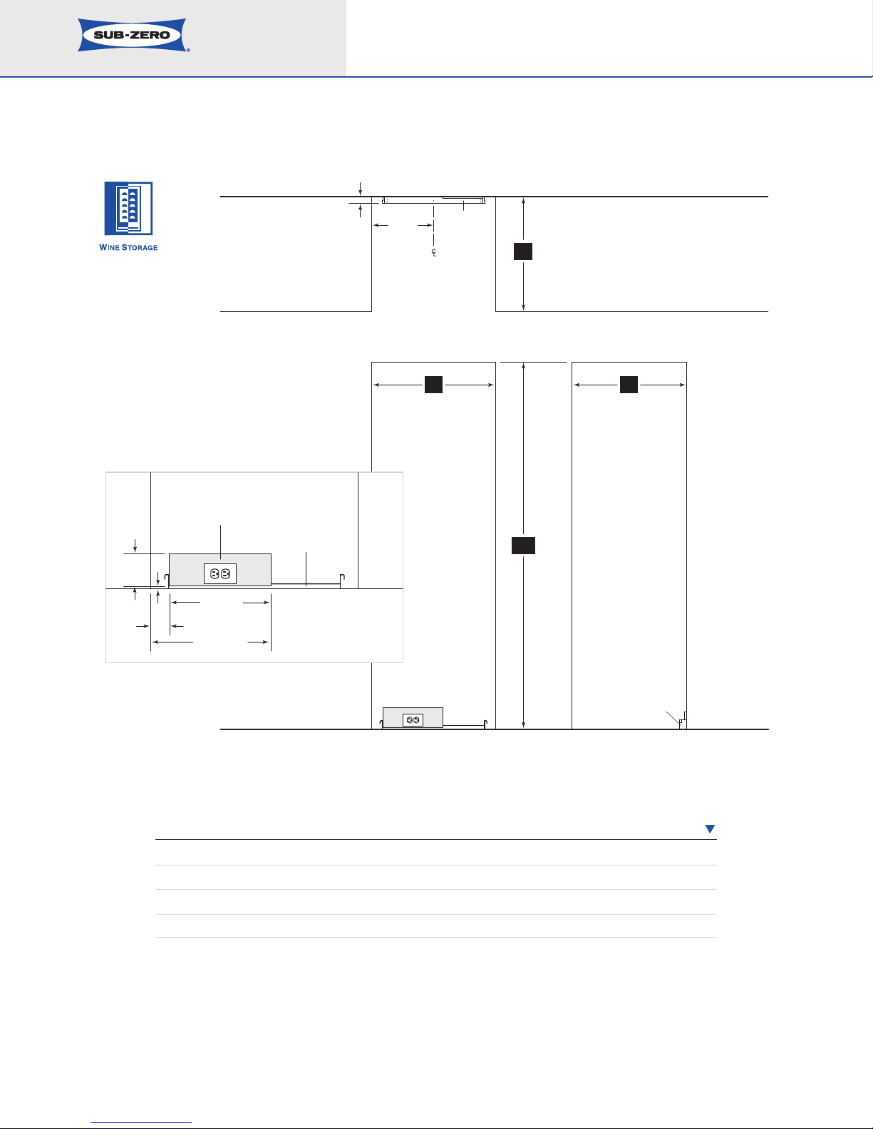
Dimensions in parentheses are in
millimeters unless otherwise specified. 5
INSTALLATION NOTES
Refer to the illustrations and specifications
for overall dimensions, finished rough opening
dimensions and installation specifics.
IMPORTANT NOTE: The depth of Model 427 is
24" (610) from the front of the unit to its back.
Your design may necessitate moving the unit
back, or cabinets forward to achieve a flush fit.
This will require a minimum rough opening
depth of 25" (635). Refer to the installation
illustration on page 4.
The Wine Storage unit must be installed to
open a minimum of 90˚ or you will have
problems pulling the shelves out.
For corner installations, you need allow for a
minimum 3" (76) filler so the door can open to
90˚. If you are using some larger handle
hardware, you will also need to take that into
account. For a maximum 90˚ door opening, use
the door stop built into the hinge system.
If you are installing a wine unit next to an
existing Sub-Zero unit, you may have to allow
for a filler strip. Also, if there is 2" (51) or less
in between units, an optional heater kit will
need to be installed to prevent moisture from
forming in between units.
If you are connecting the unit to your home
security system, you must allow a minimum of
36" (914) of the system's wiring to be routed in
the electrical area designated for your model.
The anti-tip bracket must be installed to
prevent the unit from tipping forward.
If your client has chosen the Model 427
stainless steel design, you will need to have
the stainless steel panels and handle hardware
installed.
For the integrated design, you will need to
provide a complete door panel in the instance
of a solid door unit, or a frame for the glass
door application, where wine will be seen from
the outside.Refer to pages 6–11 for complete
panel information.
IMPORTANT NOTE: Asolid door panel must
not be installed on a glass door unit, as this
may cause moisture to form behind the panel.
Solid door models are available as a special
order and require 90 days for delivery.
The door panel for Model 427 can grow
beyond the 80" (2032) height to accommodate
any size of door as long as you stay below door
panel weight limit.
For Model 427, the weight limit for a frame
panel for the glass door unit is 20 lbs (9 kg).
The weight limit for a solid door panel is 40 lbs
(18 kg).
If you are installing Sub-Zero's optional lock
kit, you may have to order door panels that
exceed the 80" (2032) finishing height. Consult
the lock installation instructions and see if your
panels will allow for an adequate installation.
For integrated panel applications, you must
supply your own handle hardware. It is recom-
mended you use our optional handles and use
the pre-drilled holes supplied to locate the
handles within the frame of our unit. Refer to
page 12 for specifics about installing handle
hardware.
Sub-Zero has provided a natural cherry wood
facing to each of the wine shelves. You can
choose to replace these strips with wood more
complementary to your design and surrounding
cabinetry. Refer to the full-scale illustration on
page 14 for dimensions on the wood facing.
A115 V AC, 60 Hz, 15 amp fused electrical
supply is required.It is recommended that a
separate circuit, serving only this appliance, be
provided.
All Sub-Zero Wine Storage units are
equipped with a power supply cord with a
3-prong grounding plug which must be plugged
into a mating 3-prong grounding type wall
receptacle.Locate electrical within the shaded
area shown in the installation illustration on
page 4.
You must follow all National Electrical Code
regulations. In addition, be aware of local codes
and ordinances when installing your service.
Refer to the Wine Storage Installation Instruc-
tions packed with the appliance, which provides
step-by-step procedures for making sure the
unit is installed properly.