
© System Sensor 2006
I56-1278-003
D800-03-00 PittwayTecnologica S.r.l., Via Caboto 19/3, 34147Trieste, Italy
ISTRUZIONI PER L’INSTALLAZIONE E LA MANUTENZIONE DEL
PUNTO DI CHIAMATA
ANALOGICO INDIRIZZABILE, MODELLO ECO2001
DESCRIZIONEGENERALE
Il punto di chiamata ECO2001 è progettato per essere utilizzato come una componente di un sistema di allarme incendio ECO2000 ed è pertanto
necessario che venga installato solo con un pannello di controllo di allarmi antincendio compatibile ECO2000. È un punto dichiamata dedicato,
indirizzabile, che fornisce sia la segnalazione di allarme al pannello di controllo di monitoraggio che l’indicazione diattivazione attraverso il led
locale.
Il LED rosso, disponibile su ogni rilevatore, può essere utilizzato per indicare i diversi modi di funzionamento del rilevatore stesso. Questi
dipendono dalla centrale di controllo utilizzata. Il LED può essere acceso per indicare l’allarme, fatto lampeggiare a cadenza regolare di tempo
per indicare il corretto funzionamento del sensore oppure, in una particolare modalità di lampeggio, indica l’indirizzo attribuito al rilevatore.
SPECIFICHETECNICHE
Gamma di tensione operativada 15a30VCC
Correntemax.inmodalitàdiattesa 345µAa24VCC(assenzadicomunicazioni)
Corrente max. di allarme (LED attivo) 6,5mA a 24VCC
Corrente massima del loop (continua) 1A
Resistenza serie del dispositivo (condizione normale) 0,2Ohm
Gamma di umidità operativa umidità relativa dal 5% al 95%, priva di condensa
Gamma di temperatura operativada -30°C a +70°C
Nota: non installare in luoghi in cui la normale temperatura ambiente si estende oltre la gamma da -10°C a +50°C
Valore nominale IP IP40 (se installato su SR3T/SR-4T
Altezza 35mm
Lunghezza 87mm
Larghezza 87mm
Peso 115g
GUIDA PER IL CABLAGGIO
Il punto di chiamata è fornito con cavi completi che utilizzano connettoria forcella per adeguato collegamento agli accessori di montaggio KAC. I
cavi vengono forniti dei colori indicati nel seguito.
Nero: -ve ingresso
Rosso: +ve ingresso/uscita
Nero: -ve uscita
NOTA:È necessario che l’interocablaggiosiaconformeaicodici e alle normative locali e nazionali.
NOTA:Prima di collegare il sistem all’alimentazione, verificare che tutti i dispositivi siano stati installati e che la polarità del cablaggio sia corretta
presso ciascun dispositivo.
AVVISO
Scollegare l’alimentazione del loop prima di installare qualsiasi dispositivo.
INSTALLAZIONE DEL PUNTO DI CHIAMATA
1. Terminare il cablaggio sul campo nella scatola di montaggio scelta, avendo cura di mantenere la continuità di ciascuna schermatura fornita.
2. Collegare i tre cavi forniti dal punto di chiamata ai morsetti della scatola di montaggio, come spiegato dettagliatamente nella guida per il
cablaggio,menzionata in precedenza.
3. Fissare il punto di chiamata ECO2001 alla scatola di montaggio, accertandosi che tutti i cavi siano saldi e che abbiano sufficiente spazio
libero. Posizionare il vetro sulla parte anteriore del punto di chiamata e chiudere il coperchio con la vite anteriore di fissaggio.
4. I dispositivi ECO2000 presentano un metodo esclusivo per la configurazione automatica e pertanto non è necessario impostare alcun
indirizzo sui dispositivi. Il loro indirizzo di comunicazione viene automaticamente impostato dal pannello di controllo, a seconda della
posizione fisica del dispositivo sul circuito loop.
5. I dispositivi ECO2000 presentano isolatori di cortocircuito nel lato negativo del loop e pertanto, se dovesse verificarsi un singolo
cortocircuito, tuuti i dispositivti ECO2000 continuano ad operare correttamente. Ai momento del l'installazione è fondamentale che non
manchi alcun dispositivo non venisse inserito nella sua base, ciò potrebbe compromettere il corretto indirizzamento degli altri dispositivi.
.
6. Se il dispositivo si trova presso un confine di zona, impostare l’interruttore sulla parte anteriore dell’unità a “1”, attenendosi alle istruzioni
sulla configurazione automatica delle zone, sul pannello di controllo; diversamente, impostare l’interruttore a “0”. Non tutti i pannelli di
controllo prevedono questa caratteristica; fare pertanto riferimento alla documentazione del pannello di controllo per configurare
automaticamente il sistema.
7. Verificare il funzionamento corretto del punto di chiamata, alla voceVERIFICA.
VERIFICA
È necessario verificare i punti di chiamata ECO2001 dopo aver eseguito l’installazione e aver effettuato la manutenzione periodica. Ad ogni modo,
prima di iniziare, notificare alle autorità competenti che il sistema di rilevamento di incendi è al momento sottoposto a verifica e che pertanto il
sistema sarà temporaneamente inutilizzabile, dal momento che qualsiasi collegamento automatico ai vigili del fuoco o ad una qualsiasi stazione di
pronto intervento deve essere temporaneamente disabilitato.
Accertarsi inoltre che il LED lampeggi (questa funzione è attivabile mediante comando software dal pannello di controllo). Se non lampeggia e il
pannello è impostato in modo da far lampeggiare il LED, il rilevatore non è collegato.In tal caso, controllare per prima cosa il cablaggio e se il
rilevatore dovesse risultare difettoso, restituirlo per riparazione.
Verificare il funzionamento del dispositivo come indicato nel seguito:
1. Per verificare il punto di chiamata, inserire la chiave fornita per la verifica nello slot posizionato nel lato inferiore sinistro del punto di
chiamata. ll vetro cade, simulando il funzionamento del punto di chiamata. per ristabilire il punto di chiamata, rimuovere la chiave e
reimpostare il sistema dal pannello di controllo. Non lasciare la chiave inserita nel punto di chiamata una volta completata la messa in
esercizio o la verifica.
2. ll LED di allarme rosso dovrebbe scattare entro 10 secondi, indicando un allarme e attivando il pannello in modo da indicare il
dispositivo sottoposto a verifica.
A verifiche completate, notificare alle autorità competenti che il sistema è funzionante.
NOTA: Come tutti i sistemi antincendio indirizzabili, è fondamentale che, dopo la richiesta o dopo qualsiasi modifica apportata al sistema, ciascun
dispositivo risponda all’indirizzo stabilito e che le sue indicazioni siano conformi al design del sistema. Dal momento che la configurazione
automatica potrebbe modificare l’indirizzo dei dispositivi, ciò è anche più importante per il sistema ECO2000.
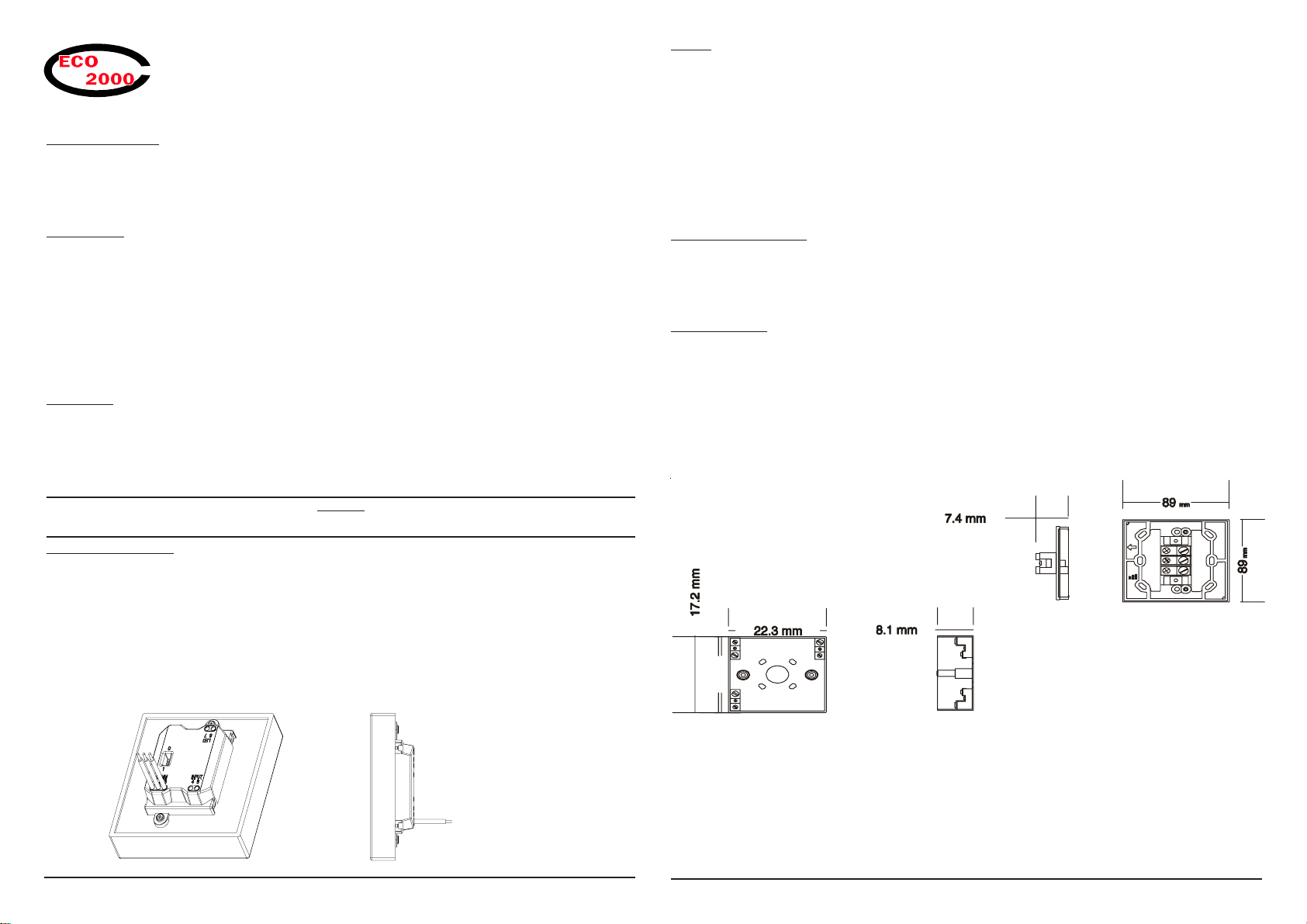
DISPOSIZIONI DI MONTAGGIO
L’ECO2001 può essere installato come dispositivo montato a livello o a superficie, in un normale ambiente interno.Non è previsto per l’uso in aree
esterne o pericolose (in tal caso rivolgersi al proprio fornitore per maggiori informazioni in proposito).A livello: si adatta alla maggior parte delle
scatole per singolo interruttore/presa, con fissaggi centrali da 60 mm.A superficie: è disponibile una scatola per montaggio in plastica, codice
SR3T.Tale accessorio, se fornito col punto di chiamata, è dotato di un imballo che include una sagoma a strappo avente la funzione di indicare i
punti esatti per i fori di ingresso dei cavi.
OPZIONI DI MONTAGGIO
L’ECO2001 può essere montato a livello su scatole di derivazione/terminazione compatibili; tuttavia, si consiglia l’uso del portamorsetti (ETT/1)
per completare con efficacia il cablaggio sul campo per il punto di chiamata. Viene fornito come accessorio separato, completo delle sue
specifiche istruzioni ed è possibile utilizzarlo con la maggior parte delle scatole di derivazione/terminazione europee, con centri di fissaggio di 60
mm.
Figura 1. ECO2001 Caja de derivación
Dimensions accessori ( mm )
Scatoladi montaggio
Superficie
SR3T-P
Portamorsetti ETT-P
2