TABLE OF CONTENTS
1. INTRODUCTION..............................................................................................................................................................3
2. FEATURES.......................................................................................................................................................................3
3. WARNING ......................................................................................................................................................................3
4. INSTALLATION AND CONNECTION ................................................................................................................................4
4.1 GENERAL..................................................................................................................................................................4
4.2 SAFETY .....................................................................................................................................................................4
4.3 ELECTRICITY .............................................................................................................................................................5
4.4 FLUE PIPE CONNECTION ......................................................................................................................................5
4.5 MINIMUM SAFETY DISTANCES ..........................................................................................................................10
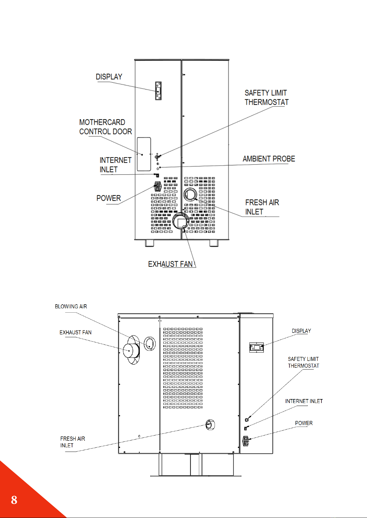
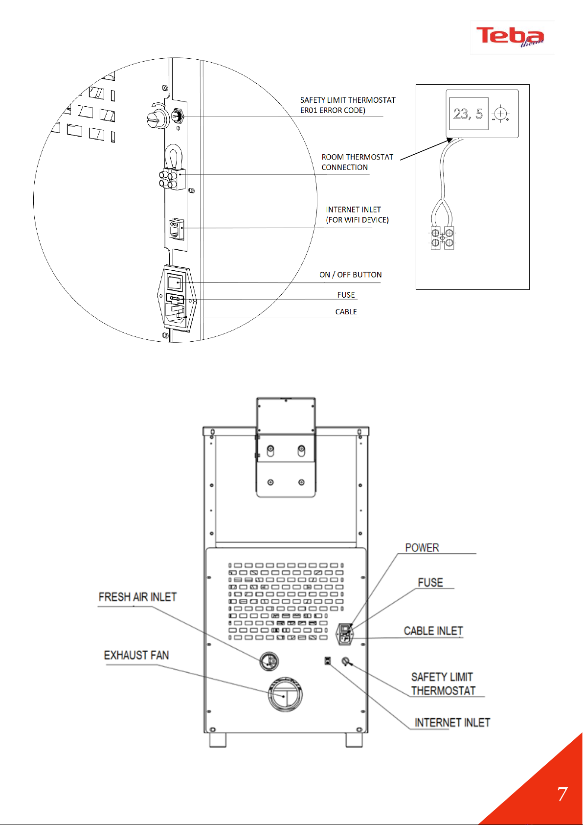
5. CONTROL PANEL..........................................................................................................................................................11
5.1. ERROR CODE AND EXPLANATION.........................................................................................................................12
5.2. MENU FUNCTIONS................................................................................................................................................13
5.2.1 COMBUSTION FUNCTIONS MENU..................................................................................................................13
Level;........................................................................................................................................................................13
Auger Calibration;....................................................................................................................................................13
Fan Calibration;........................................................................................................................................................13
5.2.2. HEATING MANAGEMENT ..................................................................................................................................13
5.2.4. CHRONO MENU.............................................................................................................................................14
5.2.5. LOADING MENU............................................................................................................................................15
5.2.6. TIME AND DATE MENU..................................................................................................................................15
5.2.7. LANGUAGE MENU .........................................................................................................................................15
5.2.8. ENTRANCE MENU ..........................................................................................................................................15
5.2.9. SYSTEM (PARAMETERS) MENU .....................................................................................................................15
6. CLEANING AND MAINTENANCE...................................................................................................................................16
6.1 FLAME PIPES CLEANING.........................................................................................................................................18
6.2. COMBUSTION POT CLEANING ..............................................................................................................................18
6.3 ASH TRAY 1 AND ASH TRAY 2 CLEANING...............................................................................................................19
7. GENERAL WARRANTY AND POLICIES...........................................................................................................................19