
Treetop Circuits
Owner’s Manual for SB-75 SSB Adapter
Version 4
9
Circuit Description:
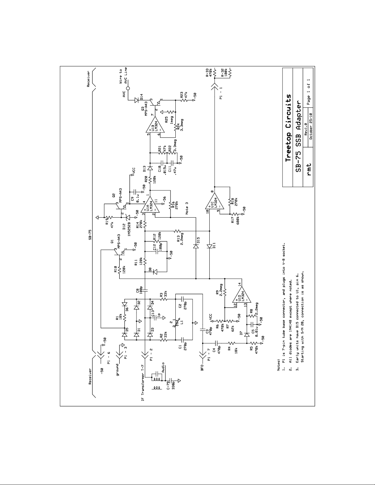
In the following description, references to components on the SB-75 circuit board are
shown in bold (C1, etc.), and those in the receiver are in normal text. To assist in following
this description, the schematic (Fig. 9) shows some of the receiver circuitry.
The SB-75 plugs into the V-8 socket instead of the tube. Most interconnections are made
through the 7-pin connector P1. In addition, a direct wire is made to the AVC line.
Operating power is derived from the -50 volt line in the receiver, which appears at pin 6 of
P1. Since the AVC amplifier in the receiver uses this line as a reference, it is convenient to
reference most of the circuitry in the SB-75 to this line as well. Zener diode D12 and
transistor Q1 provide a regulated voltage (VCC), which is held at +23 volts relative to the -
50 volt supply line. This powers the quad amplifier U1.
In the original receiver circuitry, an envelope detector circuit is used for AM, CW, and SSB
reception. The AVC circuit is useful only for AM. To receive CW or AM, the BFO is simply
switched on. The SB-75, on the other hand, uses a product detector and fast-attack, slow-
return AVC system for CW and SSB, so mode switching is required.
Mode switching in the SB-75 occurs automatically when the BFO signal is present. D7 and
associated components rectify the BFO signal; U1D acts as a comparator, with the
threshold set by R6 and R7.
For AM reception, the BFO is switched off. The output of U1D goes positive. Q1 saturates,
applying nearly -50 volts to the anodes of D1 and D3 so they do not conduct. Current flows
through D6 and D2 to ground. Additional current flows through D2 to ground via the path
D5-R2-L1-R3.This keeps its cathode, and the cathode of D4, at an essentially constant
voltage of about 0.7 volts below ground. D4 then acts as a pre-biased diode detector,
replacing one section of V-8. As in the original circuit, this causes the audio component to
appear on C-79.
For CW or SSB reception, the rectified BFO signal causes the output of U1D to approach the
-50 volt line, turning Q1 off. Diodes D1-D4 and associated components form a high-level
single-balanced mixer. The BFO voltage (about 30 volts RMS, 453 to 457 kilocycles) is
applied via C3 to the resonant circuit consisting of C1, C2, and L1. C3 blocks the DC
component, so the voltage on C2 swings above and below ground. Due to the resonant
circuit, the voltage on C1 is equal to that on C2 but in opposite phase. When the voltage on
C2 is negative, the voltage on C1 is positive, so current flows through R2, R3, and D1-D4.
This forces the IF signal line to ground. On the alternate half-cycle, diodes D1-D4 are
reverse-biased, so they present an open circuit to the IF signal. The path from ground via
pin 1 and T-7 to C-79 is thus interrupted at the BFO rate, causing the demodulated audio
signal to appear on C-79.
In either mode, The AVC signal is developed using D8 and associated components. The
resulting roughly-filtered positive DC signal is applied to non-inverting amplifiers U1A and
U1C via R13 and R14.