COMMON QUESTIONS AND ANSWERS
Q. Why isn’t my Electronic Air Cleaner cleaning my air?
A. The air cleaner is most likely working just like it was designed. However, many factors
can affect the performance of the unit. Are air return registers located in the ceiling? If
so, it will be difficult for the air flow to carry heavier particulates to the air cleaner. If the
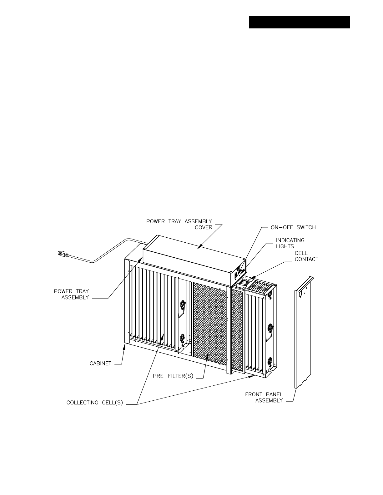
dirt does not get to the air cleaner, it cannot be removed from the air. Are both the Red
and Green indicating lights illuminated? If not, the unit may be in need of servicing.
Q. It still isn’t cleaning my air the way I want it to. What can I do?
A. It is recommended that you operate the HVAC system continuously so that the air
movement will carry the dirt to the air cleaner where it can be collected. Unfortunately,
there will always be some dirt that is left behind on the appliances, furniture, etc.
Regular dusting is recommended to stir up these pockets of dust so that they can enter
the air stream and be removed by the Electronic Air Cleaner.
Q. When I turn on my Electronic Air Cleaner, the lights come on for a couple of seconds
and then turn off. The air cleaner isn’t working!
A. The air cleaner is operating properly as long as both the Red and Green indicating
lights are illuminated. Try turning the HVAC blower ON and then turning the Electronic
Air Cleaner ON. This should solve the problem.
Q. What is the zapping noise I am hearing from my unit? Should I be concerned?
A. The zapping or popping noise that you are hearing is the sound of larger particles being
“vaporized” by the Ionizing-Collecting Cell. This is normal and is no cause for alarm. As
your HVAC system blower moves the air through the ductwork and allows the Electronic
Air Cleaner to clean the air,the noise will diminish. However,there will always be
instances when larger particles enter the Ionizing-Collecting Cell, and are “vaporized”.
Q. Should I hear this zapping noise all the time?
A. All Electronic Air Cleaners will occasionally zap or pop as larger particles pass through
the Ionizing-Collecting Cells. However,if the sound is constant or is repetitive in nature,
then a large particle may have become lodged in the Ionizing-Collecting cell and may
require removal by cleaning. If cleaning the Ionizing-Collecting Cell does not stop the
noise and/or there are no large particles trapped in the Ionizing-Collecting Cell, then the
cause could be a broken/loose ionizing wire, bent collector plate or other mechanical
fault.
Q. What if I no longer hear any popping or zapping noises coming from my unit? Is it still
cleaning the air?
A. If the zapping noises stop and the air cleaner is not in need of servicing, then one of
two situations has occurred. First, the Electronic Air Cleaner has successfully removed
all larger particles from the air and is cleaning microscopic particles which do not cause
the zapping noises. Second, the HVAC system blower is not operating and air is not
flowing through the ductwork. The Electronic Air Cleaner cannot remove particles if the
air stream is not moving.
Q & A
7