
5
DS1060-112B
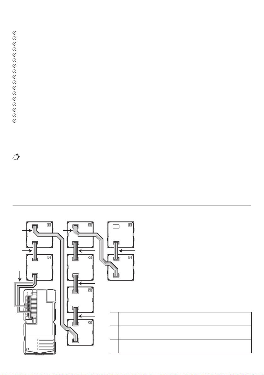
COLLEGAMENTO TELECAMERA ESTERNA
In alternativa alla telecamera presente nel modulo
può essere collegata una telecamera esterna ai
morsetti V3, V5.
Per abilitare la telecamera esterna occorre spostare
il jumper come mostrato di seguito.
ISTRUZIONI DI CABLAGGIO CON CAVO CAT5
Intestare il cavo CAT5 su uno dei connettori RJ45 con logo Urmet:
Inserire il conduttore nella guida rispettando le colorazioni indicate (Standard T568B).
8
1
Conduttore
n° Colore cavo
1 Bianco-Arancione
2 Arancione
3 Bianco-Verde
4 Blu
Conduttore
n° Colore cavo
5 Bianco-Blu
6 Verde
7 Bianco-Marrone
8 Marrone
Tagliare i cavi in modo che sporgano dalla guida di circa 5 mm, inserire la guida nel plug e crimpare il
plug con appositi attrezzi. Plug
8
1
~ 5 mm
8
1
Accertarsi che la guaina grigia rimanga all’interno del plug.
Questo tipo di collegamento NON garantisce il doppio isolamento.
CARATTERISTICHE TECNICHE
TENSIONE DI ALIMENTAZIONE E ASSORBIMENTO SUI MORSETTI V+ V-
Tensione di alimentazione:............................................................................................................44 ÷ 57 Vcc
Assorbimento in videochiamata (*) @48 V:...........................................................................................200 mA
Assorbimento a riposo (*) @48 V:.........................................................................................................140 mA
Temperatura di funzionamento: ............................................................................................ -10 °C ÷ +50 °C
(*) Comprensivo dell’assorbimento di 30 cartellini portanome esterni.
Portata contatto relè C, NC, NO:
Tensione massima commutabile: ......................................................................................................... 30 V
Corrente massima commutabile: ........................................................................................................3,5 A
Carico massimo commutabile: ................................................................................................. 40 VA 25 W
Distanza massima pulsante androne: ..............................................................25 m con cavo sez. 0,5 mm2
Distanza massima sensore porta aperta: .........................................................50 m con cavo sez. 1,5 mm2
Distanza massima alimentatore supplementare: ...........................................100 m con cavo sez. 1,5 mm2
Distanza massima serratura capacitiva: .........................................................100 m con cavo sez. 1,5 mm2
RESET IMPOSTAZIONI DI FABBRICA
Chiudere il pulsante androne e contemporaneamente premere il secondo pulsante del posto esterno video
IP (quello più in basso) per 20 secondi. Passati i 20 secondi, il dispositivo emette un bip prima di riavviarsi,
quindi rilasciare entrambi i pulsanti: in questo modo il posto esterno video IP perde la configurazione
precedente.
•
•
TLC-EXT