
66251860 - V1.0 - 30/11/19
- 7 -
Controllo accessi
Art.VX8901F - VX8901S - Istruzioni di installazione
PROGRAMMAZIONE MODO 1 MODO DEFAULT, JPL = A
Seguire i seguenti passi per impostare la tastiera in Modo 1:
1. Togliere l’alimentazione dall’Art.VX8901;
2. Creare un ponte tra i morsetti –e SW2;
3. Premere e tenere premuto il pulsante 1e mantenerlo
premuto mentre si ridà alimentazione alla tastiera;
4. Quando l’alimentazione è stata ripristinata aspettare che
la tastiera emetta un bip singolo e che il LED di stato rosso
(Fig.1, B) lampeggi una volta;
5. Rimanere in ascolto del segnale di conferma e attendere che
il LED di stato rosso (Fig.1, B) lampeggi di nuovo una volta;
6. Rilasciare il pulsante 1 e rimuovere il ponte tra i morsetti
–e SW2;
7. Impostare il jumper JPL nella posizione desiderata.
PROGRAMMAZIONE MODO 2
Seguire i seguenti passi per impostare la tastiera in Modo 2:
1. Togliere l’alimentazione dall’Art.VX8901;
2. Creare un ponte tra i morsetti – e SW2;
3. Premere e tenere premuto il pulsante 2e mantenerlo
premuto mentre si ridà alimentazione alla tastiera;
4. Quando l’alimentazione è stata ripristinata aspettare che
la tastiera emetta un bip doppio e che il LED di stato rosso
(Fig.1, B) lampeggi una volta;
5. Rimanere in ascolto del segnale di conferma e attendere che
il LED di stato rosso (Fig.1, B) lampeggi di nuovo una volta;
6. Rilasciare il pulsante 2e rimuovere il ponte tra i morsetti
–e SW2;
7. Impostare il jumper JPL nella posizione desiderata.
RETROILLUMINAZIONE E FUNZIONAMENTO DEI PULSANTI
Se la modalità di retroilluminazione e impostata su modo 1 (con il jumper JPL in una delle due posizioni A o B) quando un pulsante
viene premuto, sulla tastiera la retroilluminazione passa alla piena luminosità per circa 10 secondi.
Passati i 10 secondi la retroilluminazione si spegnerà oppure passerà a bassa luminosità (a seconda della posizione del jumper) a
meno che un altro pulsante non venga premuto entro i 10 secondi: in questo caso la retroilluminazione rimarrà a piena luminosità
per altri 10 secondi.
Diversamente, se la modalità di retroilluminazione e impostata su modo 2, la retroilluminazione sarà sempre a piena luminosità
oppure se il jumper viene rimosso la retroilluminazione verrà disabilitata completamente.
PROGRAMMAZIONE
• Digitare il MASTER CODE: 6 volte 1(111111 impostazione di
fabbrica) e premere ENTER (il LED rosso si accende);
• Confermare il MASTER CODE (digitandolo nuovamente) o di-
gitarne uno nuovo (da 4 ad 8 cifre) quindi premere ENTER (se-
gnale acustico). Premendo due volte ENTER senza modicare
il MASTER CODE si esce dalla programmazione;
• Digitare il codice di attivazione (da 4 ad 8 cifre) del RELÈ 1
quindi premere ENTER (segnale acustico);
• Digitare il tempo di funzionamento del RELÈ 1 (2 cifre da 01 a
99 Es. 05=5 secondi 00=Commutazione di stato) quindi pre-
mere ENTER (segnale acustico);
• Digitare il codice di attivazione (da 4 ad 8 cifre) del RELÈ 2
quindi premere ENTER (segnale acustico);
• Digitare il tempo di funzionamento del RELÈ 2 quindi preme-
re ENTER (segnale acustico);
• Digitare il codice di attivazione (da 4 ad 8 cifre) del RELÈ 3
quindi premere ENTER (segnale acustico);
• Digitare il tempo di funzionamento del RELÈ 3 quindi preme-
re ENTER (segnale acustico);
• Il sistema è pronto all’uso (il LED rosso si spegne).
NOTE DI PROGRAMMAZIONE
• Dopo aver confermato l’inserimento di un dato premendo il
tasto ENTER, premendolo nuovamente per due volte conse-
cutive, si esce dalla programmazione.
RIPORTARE L’UNITÀ ALLE IMPOSTAZIONI DI FABBRICA
• Togliere l’alimentazione alla tastiera;
• Tenendo premuto il tasto ENTER, dare nuovamente alimen-
tazione;
• Rilasciare il tasto ENTER;
• Il codice master è nuovamente impostato a 111111 (sei volte
uno).
DIGITARE IL
“MASTER CODE”
CONFERMARE
O CAMBIARE IL
“MASTER CODE”
DIGITARE IL
CODICE RELÈ 1
DIGITARE IL
CODICE RELÈ 2
DIGITARE IL
CODICE RELÈ 3
DIGITARE IL
TEMPO RELÈ 1
DIGITARE IL
TEMPO RELÈ 2
DIGITARE IL
TEMPO RELÈ 3
IL SISTEMA È
PRONTO ALL’USO
6 Volte 1 “111111”
impostazione di fab-
brica
Digitare nuovamente
6 volte 1o un nuovo
codice da 4 a 8 cifre
Codice di attivazione
relè 1, da 4 a 8 cifre
Codice di attivazione
relè 2, da 4 a 8 cifre
Codice di attivazione
relè 3, da 4 a 8 cifre
Due cifre (da 01 a 99)
es. 05=5 Secondi
00= Comm. Di stato
Due cifre (da 01 a 99)
es. 05=5 Secondi
Due cifre (da 01 a 99)
es. 05=5 Secondi
Il led rosso si spegne
Premere Enter
(Il LED rosso si
accende)
Premere Enter
(Segnale acu-
stico)
Premere Enter
(Segnale acu-
stico)
Premere Enter
(Segnale acu-
stico)
Premere Enter
(Segnale acu-
stico)
Premere Enter
(Segnale acu-
stico)
Premere Enter
(Segnale acu-
stico)
Premere Enter
(Segnale acu-
stico)
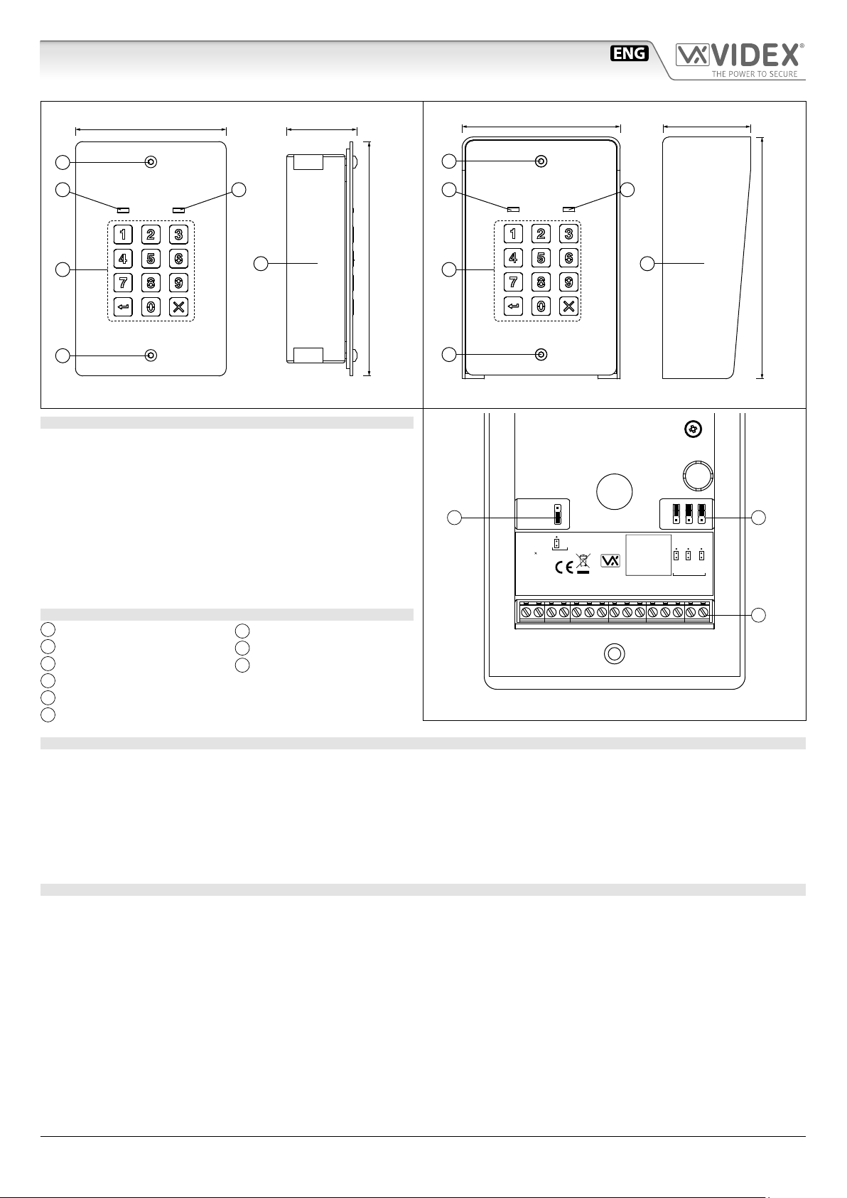
Art.VX8901F - VX8901S Modulo tastiera digitale antivandalo