
4
935A
PTESDEFRENIT
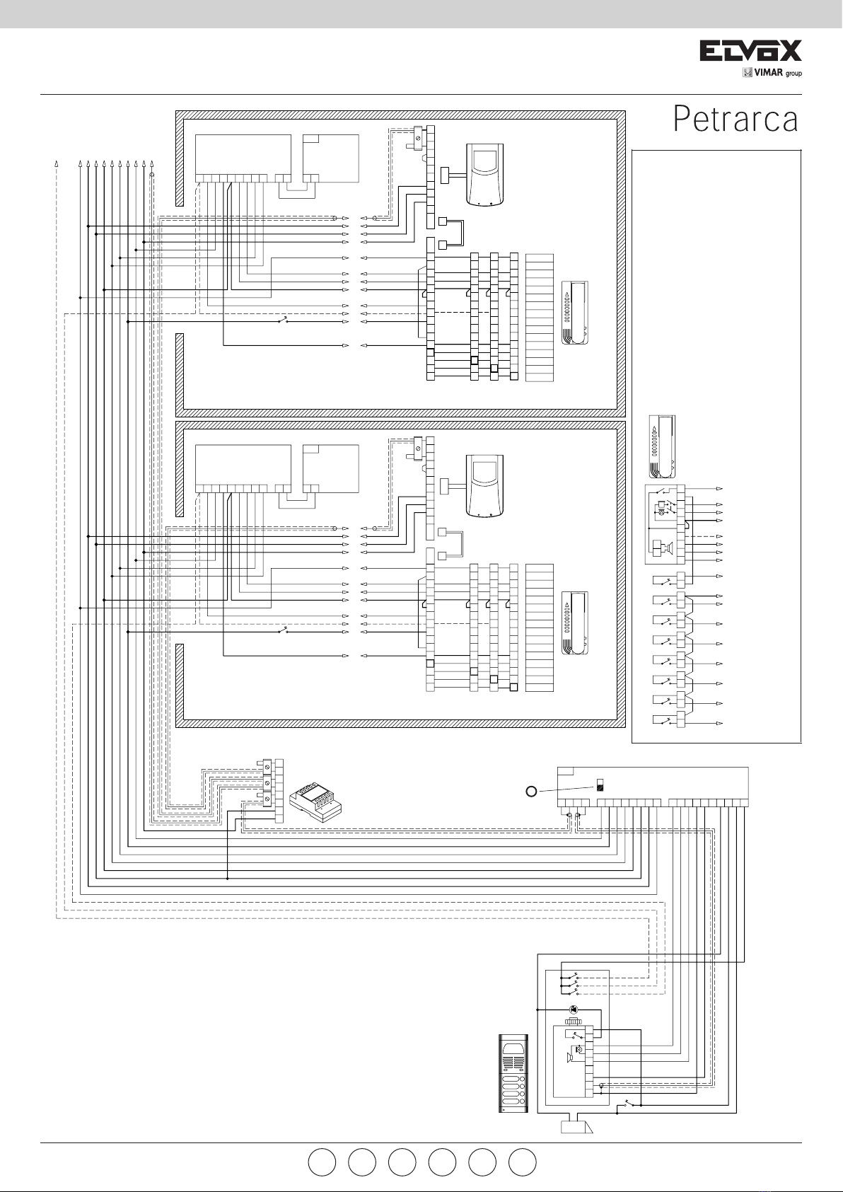
1) Schéma vc4369. PORTIER-VIDÉO
POUR VILLA AVEC MONITEURS ET
POSTES INTERCOMMUNICANTS.
Le schéma représente la connexion de 1 moniteur et
de 7 postes d’appartement intercommunicants entre
eux et avec le poste externe. On peut connecter
un nombre inférieur ou supérieur de moniteurs
ou de postes, sans toutefois dépasser les 8 unités
correspondant au nombre des poussoirs. Quand
le nombre total des appareils est inférieur à 8, on
connectera les borniers (ou barrettes) des postes
intercommunicants concernés en excluant les
conducteurs d’appel des autres postes.
Exemple: avec 3 postes intercommunicants (un
moniteur et 2 postes d’appartement sur le schéma ci-
dessus), on raccordera les borniers numérotés de 1
jusqu’aux bornes 10. Les moniteurs et les postes sont
prévus pour recevoir 2 tonalités d’appel sur la capsule
réceptrice pour différencier l’appel de la plaque de
rue, d’un appel intercommunicant ou porte palier.
L’appel de la plaque de rue (C1) et du poussoir porte
palier (C2) sont générés par l’alimentation Art. 6680,
alors que l’appel intercommunicant (C3) provient du
commutateur Art. 935A.
N.B. Si les postes d’appartement ou les moniteurs
faisant partie du même appartement reçoivent tous
l’appel depuis la plaque de rue, il est nécessaire
d’installer un répétiteur d’appel Art. 0934 (du 4me.
appareil en avant).
1) Schema vc4369. IMPIANTO
VIDEOCITOFONICO MONOFAMILIARE
CON MONITOR E CITOFONI
INTERCOMUNICANTI
Lo schema rappresenta il collegamento di un
monitor e 7 citofoni intercomunicanti tra di loro e con
il collegamento del posto esterno. Si può collegare
un numero inferiore o superiore sia di monitor che
di citofoni, ma la loro somma non deve superare le 8
unità corrispondenti al numero dei pulsanti. Quando
il numero totale degli apparecchi è inferiore a 8 si
collegheranno le morsettiere dei soli intercomunicanti
interessati escludendo i conduttori di chiamata dei
numero eccedenti.
Esempio: con 3 apparecchi intercomunicanti (un
monitor e due citofoni), dallo schema riportato
si dovrà considerare solamente il collegamento
dei morsetti dall’1 al 10. I monitor e i citofoni sono
provvisti di altoparlante atto a ricevere chiamate
elettroniche distinte provenienti sia dal posto esterno
che da altri apparecchi intercomunicanti. Le chiamate
dalla targa esterna (C1) e dal pulsante fuoriporta (C2)
sono generate dall’alimentatore Art. 6680, mentre la
chiamata intercomunicante (C3) viene fornita dal
commutatore Art. 935A.
N.B. Nel caso che i citofoni o monitor, facenti parte
dello stesso appartamento, ricevano tutti la chiamata
dalla targa esterna, è necessario installare un
ripetitore di chiamata Art. 0934 (dal terzo apparecchio
in poi).
1) Diagram vc4369. VIDEO-INTERCOM
SYSTEM FOR SINGLE RESIDENCE WITH
INTERCOMMUNICATING MONITORS
AND PHONES
The diagram shows the connection of one monitor
and 7 interphones (all intercommunicating with
each other and with the outdoor unit). More or fewer
monitors and interphones may be connected, but the
total number must not exceed 8 unitscorresponding to
the number of push-buttons. When the total number
of units is less than 8, only the terminal blocks of
concerned intercommunicating units must be linked,
excluding the call conductors of the other numbers.
Example: In the case of 5 intercom units (one monitor
and 2 interphones as illustrated in the diagram above),
connect terminal boards 1 to 10. The monitors and
interphones are fitted with loudspeakers capable of
receiving separate electronic call signals both from
the outdoor unit and from other intercommunication
devices. The calls from entrance panel (C1) and from
the apartment door button (C2) are generated by the
power supply Art. 6680, while the intercommunication
call signal (C3) is supplied by the switching module
Art. 935A.
NOTE: If interphones and monitors located in the
same apartment are all wired to receive a call from
the entrance panel, it is necessary to install a call
repeater Art. 0934 (From 4th. monitor on).
1) Schaltplan vc4369. VIDEO-
TÜRSPRECHANLAGE FÜR
EINFAMILIENHÄÜSER MIT
HAUSTELEFONEN UND MONITOREN
FÜR INTERNE GESPRÄCHE.
Das Schema zeigt die Verbindung von 1 Monitor und
7 Haustelefonen mit internem Sprechverkehr, die
mit der Außenstelle in Verbindung sind. Man kann
eine niedrigere oder höhere Anzahl Monitore oder
Haustelefone verbinden, aber die Summe darf die
8 Einheiten, entsprechend der Tastenanzahl, nicht
überschreiten. Wenn die Anzahl der Geräte niedriger
als 8 ist, nur die Klemmenleisten der betreffenden
Haustelefone mit internem Sprechverkehr
anschließen, und die übrigen Rufleiter ausschließen.
Beispiel: Bei 3 Gegensprechstationen (ein Monitor und
2 Rufanlagen gemäß oben angegebenem Schema)
werden die von 1 bis 3 numerierten Klemmenleisten
angeschlossen, bis zu den Klemmenleisten 10.
Die Monitore und die Internsprechstellen sind mit
einem Lautsprecher ausgerüstet, der verschiedenen
elektronische Rufsignale, von der Außenstelle oder
von einer anderen Internsprechstelle, empfangen
kann. Die Rufe von der Außenstelle (C1) und dem
Klingeltaster von der Wohnungstüre (C2) werden
vom Netzgerät Art. 6680 erzeugt, während das
interne Rufsignal (C3) vom Umschaltmodul Art. 935A
erzeugt wird.
N.B.: Falls die Sprechgarnituren oder Monitoren,
die zur selben Wohnung gehören, alle den Ruf
des externen Klingeltableaus empfangen, muß ein
Rufwiederholer Art. 0934 installiert werden (Vom 4°
monitor ab. ).
1) Esquema vc4369. VIDEO-PORTEIRO
MONOFAMILIAR COM MONITORES E
TELEFONES INTERCOMUNICANTES.
O esquema representa a ligação de um monitor
e 7 telefones intercomunicantes entre si e com o
posto externo. Pode-se ligar um número inferior ou
superior quer de monitores quer de telefones, mas
o seu total nunca deve ser superior a 8 unidades
correspondentes ao número de botões. Quando esse
número é inferior a 8 ligar-se-ão apenas os terminais
das intercomunicações pretendidas excluindo os
condutores de chamada do número excedente.
Exemplo: com 3 postos intercomunicantes (um
monitor e 4 interfones do esquema indicado arriba),
se conectarán às caixas de ligação numeradas de
1 a 20, até aos terminais 10. Os monitores e os
telefones estão equipados com altifalantes aptos a
receber chamadas electrónicas distintas provenientes
quer do posto externo quer de outros aparelhos
intercomunicantes. As chamadas externas (C1) e
do botão do patamar (C2) são efectuadas através
do alimentador Art. 6680, enquanto as chamadas
intercomunicantes (C3) são efectuadas através do
comutador Art. 935A.
N.B. No caso em que os telefones ou monitores,
fazendo parte de mesmo apartamento, recebam
todos a chamada da botoneira externa, é ncessário
instalar um repetidor de chamada Art. 0934 (do 4°
aparelho em diante).
1) Esquema vc4369 . VÍDEO PORTERO
IMPIANTO MONOFAMILIAR CON
MONITORES Y TELÉFONOS
INTERCOMUNICANTES.
El esquema representa el conexionado de un monitor
y 7 interfonos intercomunicantes entre ellos y con
el aparato externo. Se puede conectar un número
inferior o superior sea de monitores sea de interfonos,
pero su total no debe superar las 8 unidades,
correspondientes al número de los pulsadores.
Cuando el número total de los aparatos es inferior
a 8 se conectarán las cajas de conexiones de los
solos intercumicantes interesados excluyendo los
conductores de llamada de los números excedentes.
Ejemplo: con 3 aparatos intercomunicantes (un
monitor y 2 interfonos del esquema sobre indicado),
se conectarán las cajas de conexiones numeradas de
1 hasta los bornes 10. Los monitores y los interfonos
están provistos de altavoz apto para recibir llamadas
electrónicas diferentes provenientes sea del aparato
externo sea de otros aparatos intercomunicantes. Las
llamadas de la placa externa (C1) y del pulsador en
el pasillo (C2) son generadas por el alimentador Art.
6680, mientras que la llamada intercomunicante (C3)
viene provista por el conmutador Art. 935A.
N.B. Si los interfonos o monitores, pertenecientes
al mismo apartamiento, reciben todos la llamada
de la placa externa, hay que instalar un repetidor
de llamada Art. 0934 (desde el 4 to. aparato en
adelante).