
Viale Vicenza, 14 - I 36063 Marostica VI
Tel. +39 0424 488 600 - Fax (Export) +39 0424 488 709
www.vimar.com
ΕΛΛΗΝΙΚΑ
Οδηγίες
Well-contact Plus
Μονόχρωμη οθόνη αφής για τοπικό έλεγχο και χειρισμό, βάσει του
προτύπου KNX, γκρι χρώματος - 3 μονάδες
Συσκευή οθόνης αφής για χρήση σε εγκαταστάσεις αυτοματισμού με σκοπό τον έλεγχο του
φωτισμού, των ρολών, του κλιματισμού και των σεναρίων. Η διαμόρφωση της οθόνης αφής
πραγματοποιείται μέσω του λογισμικού Configuratore Touch Screen KNX, συνδέοντας το
interface 01998.U στον κατάλληλο συνδετήρα στην πίσω πλευρά της συσκευής. Η οθόνη
αφής μπορεί να εγκατασταθεί είτε σε οριζόντια είτε σε κατακόρυφη θέση.
ΧΑΡΑΚΤΗΡΙΣΤΙΚΑ.
• Ονομαστική τάση τροφοδοσίας: BUS 30 V d.c. SELV
• Κατανάλωση: 42 mA
• Ακροδέκτες: bus TP
• Παρεχόμενες λειτουργίες:
- διακόπτης ON/OFF (άναμμα/σβήσιμο φώτων)
- έλεγχος ρολών
- έλεγχος ρυθμιστή (ρύθμιση φώτων)
- έλεγχος κλιματισμού
- ενεργοποίηση σεναρίων
- μπορούν να διαμορφωθούν έως 3 σελίδες (παράθυρα) για τον έλεγχο ενός χώρου
ΔΙΑΜΟΡΦΩΣΗ.
Η διαδικασία διαμόρφωσης της οθόνης αφής πραγματοποιείται χρησιμοποιώντας
το λογισμικό Configuratore Touch Screen KNX και το interface προγραμματισμού
01998.U. Μέσω της βάσης δεδομένων του έργου ETS με την οποία έχει
διαμορφωθεί η εγκατάσταση, επιλέγονται οι επιθυμητές λειτουργίες (ομάδες,
σενάρια, κλπ.) για έλεγχο μέσω της οθόνης αφής.
Για περισσότερες λεπτομέρειες, ανατρέξτε στο εγχειρίδιο του λογισμικού
Configuratore Touch Screen KNX.
Είναι δυνατή η λήψη όλων των ενημερωμένων βάσεων δεδομένων ETS από
την περιοχή «Λογισμικό προϊόντος» στην ιστοσελίδα www.vimar.com.
ΚΥΡΙΟ ΜΕΝΟΥ.
Μετά τη διαμόρφωση της οθόνης αφής μέσω του λογισμικού Configuratore Touch
Screen KNX, εμφανίζεται η αρχική οθόνη και πατώντας το εικονίδιο ,
μπορείτε να ανοίξετε το μενού ρυθμίσεων.
• Ρύθμιση ημερομηνίας και ώρας
Εάν πατήσετε το εικονίδιο μπορείτε να ρυθμίσετε την ώρα και την
ημερομηνία που εμφανίζεται. Χρησιμοποιώντας τα εικονίδια και
ρυθμίστε την τιμή που αναβοσβήνει μέχρι να εμφανιστεί η επιθυμητή τιμή για
την ώρα, την ημέρα, το μήνα και το έτος και, στο τέλος, επιβεβαιώστε τη ρύθμιση
πατώντας το εικονίδιο .
• Ρύθμιση οπίσθιου φωτισμού και αντίθεσης οθόνης
Εάν πατήσετε το εικονίδιο εμφανίζεται ένα παράθυρο που παρέχει τη
δυνατότητα ρύθμισης του οπίσθιου φωτισμού και της αντίθεσης της οθόνης.
Η ρύθμιση πραγματοποιείται πατώντας παρατεταμένα με το δάχτυλο τα εικονίδια
και μέχρι να επιτευχθεί το επιθυμητό επίπεδο. Στη συνέχεια,
επιβεβαιώστε τη ρύθμιση με το .
• Ρύθμιση ηχητικού σήματος
Χρησιμοποιώντας το εικονίδιο μπορείτε να ενεργοποιήσετε ή να
απενεργοποιήσετε το ηχητικό σήμα (μπιπ) που ακούγεται όταν πατάτε τα
εικονίδια που εμφανίζονται στην οθόνη αφής.
• Διαχείριση εντολών
Πατώντας το εικονίδιο στο κύριο μενού, μπορείτε να ανοίξετε
το παράθυρο που παρέχει τη δυνατότητα εμφάνισης και ελέγχου των
διαμορφωμένων συστημάτων στους χώρους που ελέγχονται με την οθόνη
αφής. Τα εικονίδια που εμφανίζονται εξαρτώνται από την αντιστοίχιση των
εντολών που έγινε μέσω του λογισμικού Configuratore Touch Screen KNX.
Για παράδειγμα:
• Πληροφορίες
Πατώντας το εικονίδιο , στο κύριο μενού, μπορείτε να εμφανίσετε το
παράθυρο που περιλαμβάνει την έκδοση του λογισμικού και τα κύρια
χαρακτηριστικά της οθόνης αφής.
ΚΑΝΟΝΙΣΜΟΙ ΕΓΚΑΤΑΣΤΑΣΗΣ.
Η εγκατάσταση πρέπει να πραγματοποιείται σύμφωνα με τους ισχύοντες
κανονισμούς εγκατάστασης ηλεκτρολογικού υλικού στη χώρα εγκατάστασης
των προϊόντων.
ΣΥΜΜΟΡΦΩΣΗ ΜΕ ΤΑ ΠΡΟΤΥΠΑ.
Οδηγία ΗΜΣ
Πρότυπο EN 50428.
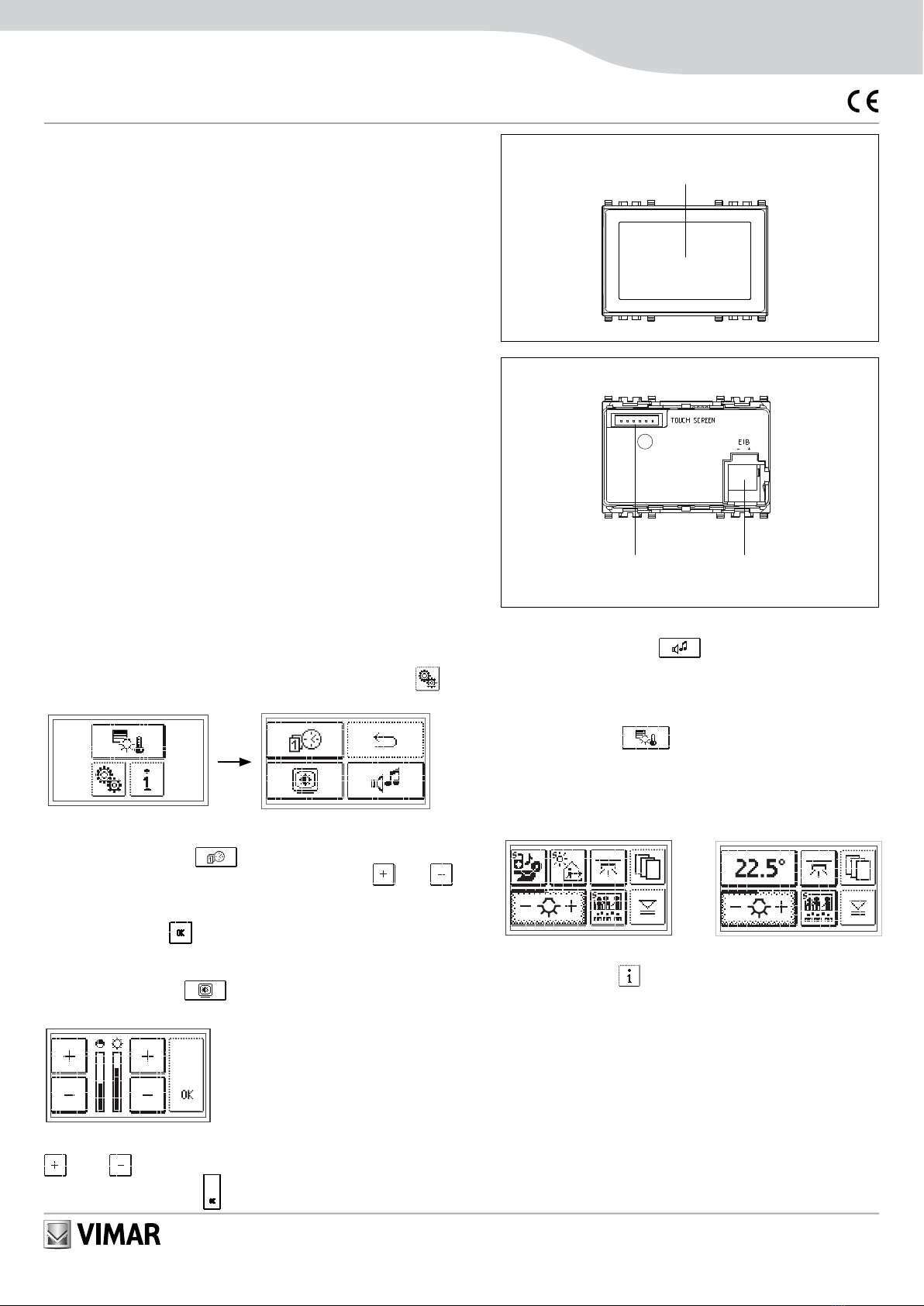
Κοννέκτορας
PIN-STRIP
01998.U
ΕΜΠΡΟΣΘΙΑ ΟΨΗ.
Επίδειξη
Επαφές bus TP
ΣΥΝΔΕΣΕΙΣ.
Eikon
20849
Arké
19849
Idea
16849
Plana
14849