Pos. Teile-Nr. Benennung Denomination Pos. Teile-Nr. Benennung Denomination
001Tafel/ Table: Seite/ Page: 1von/ of 2
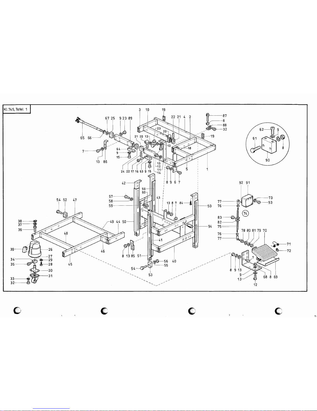
Gestellteile Mounting parts
1MG50 001151 Querholm Cross bar10003
2MG50 001152 Querholm Cross bar10004
3MG50 001153 Querholm Cross bar10005
4MG50 001161 Längsholm Longitudinal bar10006
5MG50 001162 Längsholm Longitudinal bar10007
6MG50 001171 Stütze Supporting plate10008
70742 005098 Zyl.Schraube Cyl.head screw10009
8720 000042a 6kt.-Mutter Hexagonal nut10010
9725 000520b Federring Spring ring10011
10 MG50 001181 Längsholm Longitudinal bar10012
11 MG50 001191 Bef.Winkel Fastening angle10013
12 0720 000127 6kt.-Schraube Hexagonal screw10014
13 0720 000043 Scheibe Washer10015
14 MG50 008657 Längsholm Longitudinal bar10016
15 0570 000522 Zyl.Schraube Cyl.head screw10017
16 0742 041422 Bolzen Bolt10018
17 0744 003142 Sicher.Scheibe Lock washer10019
18 MG50 001239 Verbinder Connector10020
19 MG50 001240 Lasche Shackle10021
20 MG50 001242 Halter Carrier10022
21 MG50 001247 Lagerbock Bearing block10023
22 0742 040189 Gewindestift Threaded stud10024
23 App. 020160 6kt.-Schraube Hexagonal screw10025
24 MG50 001285 Lagerbock Bearing block10026
25 MG50 001288 Rohrverbinder Tube connector10027
26 MG50 003857 Gestellfuß Framework foot10028
27 MG50 003858 Gummiring Rubber ring10029
28 MG43 002509 Blechschraube Tin plate screw10030
29 MG43 002510 Scheibe Washer10031
30 MG50 003861 Platte Plate10032
31 K999 210243 Lenkrolle Steering roll10033
32 0246 000984 Zyl.Schraube Cyl.head screw10034
33 0744 001131 Federring Spring ring10035
34 MG50 003869 Kloben Block10036
35 0744 001107 Zyl.Schraube Cyl.head screw10037
36 MG50 003873 Spezialschraube Special crew10038
37 MG50 004565 Scheibe Washer10039
38 0292 001229 Sicher.Ring Circlip10040
39 MG50 003877 Kappe Cap10041
40 MG50 008512 Seitenteil Side part10042
41 MG50 008531 Seitenteil Side part10043
42 MG50 002521 Seitenteil Side part10044
43 MG50 008571 Querverbindung Cross tie10045
44 MG50 008591 Strebe Prop10046
45 MG50 008597 Strebe Prop10047
46 MG50 008601 Holm Capping piece10048
47 MG50 008611 Strebe Prop10049
48 MG50 008622 Holm Capping piece10050
49 MG50 008624 Holm Capping piece10051
50 MG50 002551 Ständer Stand10052
51 MG50 008632 Ständer Stand10053
52 MG50 008637 Rohrverbinder Tube connector10054
53 MG50 008638 Rohrverbinder Tube-connector10055
54 0742 040121 6kt.-Schraube Hexagonal screw10056
55 0742 005110 Federring Spring ring10057
56 742 005110a 6kt.-Schraube Hexagonal screw10058
57 0742 005113 Zyl.Schraube Cyl.head screw10059
58 MG43 000014 Scheibe Washer10060
59 0911 000415 Federring Spring ring10061
60 MG43 000013 6kt.-Schraube Hexagonal screw10062
61 0720 000607 6kt.-Schraube Hexagonal screw10063
62 0911 000376 Zyl.Schraube Cyl.head screw10064
63 MG50 001261 Halter Holder10065
64 MG50 008660 Halter Holder10066
65 MG50 008661 Gewindestange Threaded rod10067
66 0650 000353 Sicher.Scheibe Lock washer10068
67 0MG4 000006 Scheibe Washer10069
68 MG50 008762 Winkel Angle10070
69 MG50 001496 Winkel Angle10071
70 MG43 002597 Pedal kpl. Pedal cpl.10072 (mit Pos.71 u.72) (with pos.71 and 72)
71 MG41 001171 Formfeder Torsion spring10074
72 MG43 002507 Greifring Grip ring10075
73 0744 001426 Federring Spring ring10076