
EGS Electrical Group • 800-621-1506 • www.appletonelec.com Rev. A 06/21/2007 Page 1
300880-6
INSTRUCTION SHEET
U.S. Patent No. 3,735,078
EBR Receptacle Enclosure:
Explosion-Proof, Dust-lgnition-Proof.
Weatherproof Spring Cover—30, 60 and 100 Amps at 600V A.C. Max.
Interlocked Circuit Breaker Safety Construction. Grounding thru Extra Pole and Shell
*CAUTION: To prevent Ignition of hazardous atmospheres, do not use in Class II,
Group F locations that contain electrically conductive dusts. Most coal dusts are not
electrically conductive.
Class I, Div. 1 and 2
Groups B, C, D
Class II, Div. 1 and 2
Groups F, G
Class III
Type 3R
NEMA 7BCD, 9F*G
1-1/2” threaded conduit
openings- one in top and
two in bottom
I. TO DISASSEMBLE RECEPTACLE INTERIOR
1. Remove polarizing screw and washer.
2. Rotate terminal holder counter-clockwise.
II. TO CONNECT CONDUCTORS TO RECEPTACLE INTERIOR
1. Strip insulation from ends of individual conductors.
2. Loosen screws in pressure connectors and slide prepared ends of conductors into
the connectors, observing proper polarity. Tighten screws.
III. TO REASSEMBLE RECEPTACLE INTERIOR
1.Insert Terminal Holder and turn clockwise until front end is approximately 1/4” inside
of casting surface. Recessed radial depression in Terminal Holder must be lined up
with polarizing washer/locator. Replace screw through the ground strip.
IV. POLARITY AND PHASE ROTATION
1. ACP, CPH Plugs and EBR Receptacle are polarized so that the plug will enter the
receptacle only one way.
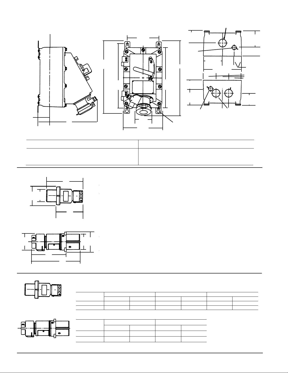
Solderless lugs are provided for line connections
and receptacle is prewired to the load side of
breaker. Cover-mounted components leave entire
enclosure space free for pulling of line conductors
and wiring.
Plug is mechanically locked in receptacle when circuit
breaker is ON. Design provides interlocked connect and
disconnect operation as well as short circuit and thermal
time delay overload protection. Breaker operating handle
can be padlocked in either “ON” or “OFF” position and is
trip-free.
Enclosure has 3/4” threaded openings top and bottom
for installation of UL Listed drain and breather. Reducers
are suitable for Class
I, Groups B, C and D,
Class II, Groups F and
G when installed such
that at least five full
threads are engaged.
Unused openings must
be plugged with fac-
tory supplied plugs.
TERMINAL
HOLDER
POLARIZED SCREW
AND WASHER
PRESSURE
CONNECTORS
SCREW