6
Sigma
2. INSTALLATION
2.01 Important notices
Assembly, installation, first start up and maintenance must be carried out by competent persons only, in accordance
with all current technical regulations and directives.
Gas Safety(Installation &Use)Regulations:1996
In the interest ofsafety, it is the lawthat all gas appliances are installed by a competent person in accordance with the
above Regulations, Building Regulations/Building Standards Scotland, Codes ofPractice, current I.E.E. Regulations and
the byelaws ofthe Local Water Undertaking. Failure to comply with the Regulations may lead to prosecution;it is your
responsibility to ensure that the law is complied with.
This appliance must be installedstrictly in accordance withthese instructions andregulations:
The Gas Safety Regulations (Installations &Use)1996.
The Local Building Regulations.
The Building Regulations.
The Buildings Standards (Scotland -Consolidated)Regulations.
British Standards Codes ofPractice:
B.S. 5440 Part 12000 Flues
B.S. 5440 Part 21989 Air supply
B.S. 5449 1990 FORCEDCIRCULATION HOT WATER SYSTEMS
B.S. 6798 1987 INSTALLATION OFGASFIREDHOT WATER BOILERS
B.S. 6891 1989 GASINSTALLATIONS
B.S. 7671 1992 IEE WIRING REGULATIONS
B.S. 4814 1990 SPECIFICATION FOREXPANSION VESSELS
B.S. 5482 1994 INSTALLATION OFLPG
B.S. 7593 1992 TREATMENT OF WATER IN DOMESTIC HOT WATER CENTRAL HEATING SYSTEMS
Model Water Bye Laws
For Northern Ireland the rules in force apply
N.B.For Northern Ireland the rules in force apply.
Important -If the boiler is to be fitted in a timber framed building it should be fitted in accordance with
the institute ofgas engineers publication IGE/UP/1. If in doubt advice should be sought from the Local Gas
Region ofBritish Gas Plc.
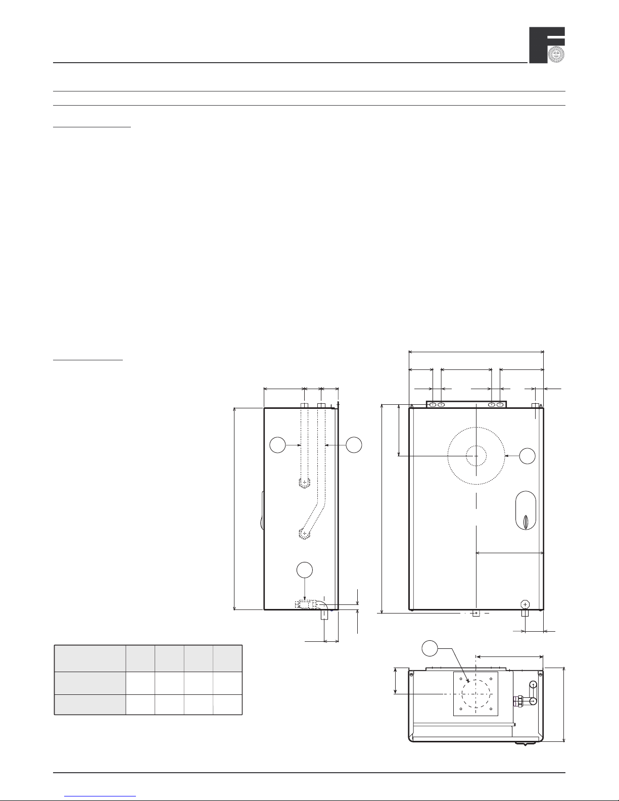
2.01.01 Location ofBoiler
The installation ofthe Sigma must be on a suitable non-combustible load bearing wall which will provide an adequate fixing
for the boiler mounting bracket assembly. The location should be in an area where the water pipes will not be subjected
to frost conditions. In siting the boiler the following limitations must be observed:
The boiler may be installed in any room or internal space, although particular attention is drawn to the requirements ofthe
current I.E.E. wiring regulations and in Scotland the electrical provisions ofthe building regulations applicable in Scotland,
with respect to the installation ofthe boiler in a room or internal space containing a bath or shower.
Where a room sealed appliance is installed in a room containing a bath or shower any electrical switch or
appliance control utilising mains electricity must be situated so that it cannot be touched by a person using
the bath or shower.
2.01.02 Air Supply
The room or compartment in which the boiler is installed does not require a purpose provided vent when using
the standard concentric flue.
2.01.03Flue System
The boiler allows the flue outlet to be taken from the rear ofthe boiler, from either side or vertically.
It is absolutely essential, to ensure that products ofcombustion discharging from the terminal cannot re-enter
the building, or enter any adjacent building, through ventilations, windows, doors, natural air infiltration or
forced ventilation/air conditioning.