
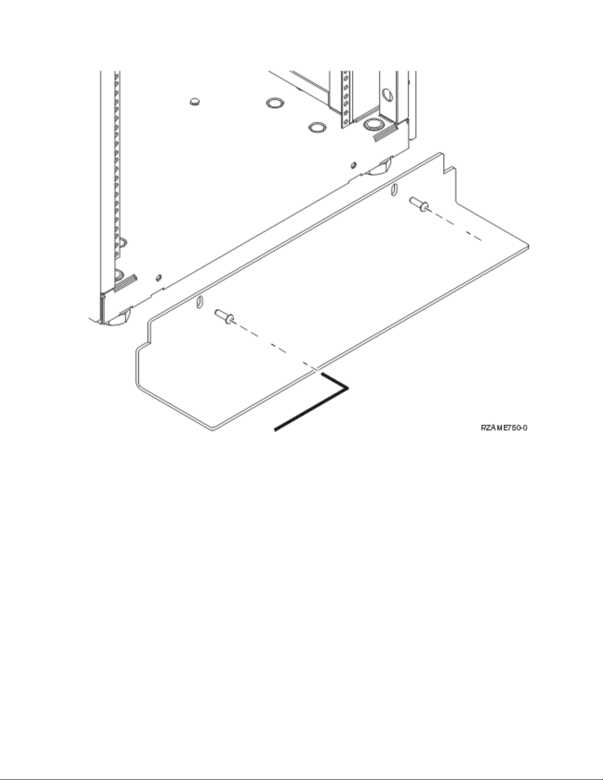
Install aModel 825 in arack
This feature is customer installable. However, the installation of this feature is intended for an
experienced user who understands industry terminology with system experience. Also, as you follow the
instructions, after removing the devices to make the system weigh less, three people are needed to
safely lift the unit onto the rack. When you use these instructions, you will perform some or all of the
following tasks:
vPerform prerequisite tasks.
vRemove the system unit covers.
vInstall new hardware.
vInstall covers.
vIPL your operating system.
vVerify your new hardware configuration.
You may need to allow additional time to complete your jobs, back up your system, perform an initial
program load (IPL) of your system, and verify your hardware configuration.
You can choose to perform these tasks yourself or contact IBM(R) or an authorized service provider to
make arrangements for them to perform the tasks for afee. Should you encounter difficulties when
performing atask, contact your authorized dealer or service provider.
Rack safety instructions
CAUTION:
vDo not install aunit in arack where the internal rack ambient temperatures will exceed 40 degrees
C.
vDo not install aunit in arack where the air flow is compromised. Any side, front or back of aunit
used for air flow through the unit must not be in direct contact with the rack.
vCare should be taken to ensure that ahazardous condition is not created due to uneven mechanical
loading when installing aunit in arack. If the rack has astabilizer it must be firmly attached
before uninstalling or removing this unit.
vConsideration should be given to the connection of the equipment to the supply circuit so that
overloading of the circuits does not compromise the supply wiring or overcurrent protection. To
provide the correct power connection to arack, refer to the rating labels located on the equipment
in the rack to determine the total power requirement of the supply circuit.
vAn electrical outlet that is not correctly wired could place hazardous voltage on the metal parts of
the system or the devices that attach to the system. It is the responsibility of the customer to ensure
that the outlet is correctly wired and grounded to prevent an electrical shock.
vSince the design and configuration of rack enclosures varies, consideration must be given to the
placement of IBM units into third party racks and third party units into IBM racks. It is the
customer’s responsibility to ensure the unit can be safely mounted in the rack and the rack
enclosure adequately provides proper ventilation/cooling, proper stability, and sufficient structural
integrity for the unit when installed in the rack. (RSFTC247)
CAUTION:
These instructions describe how to install arack stabilizer to the bottom front of each rack to prevent
the rack from falling over when you slide or pull out the system units. Do not attempt to slide out or
install any system units until the stabilizer is correctly installed. Use caution when moving the rack
and its system units. (RSFTC063)
©Copyright IBM Corp. 2004, 2005 1