
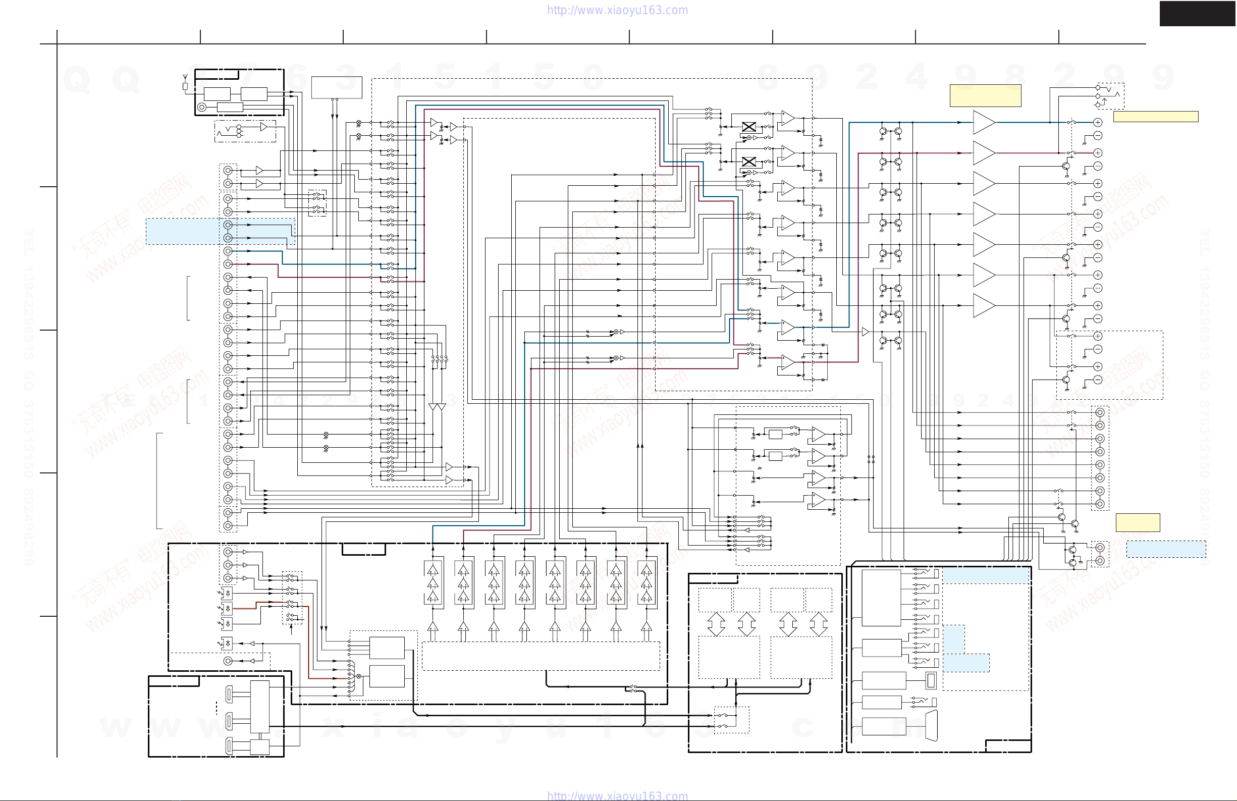
SCHEMATIC DIAGRAMS-2 (SD-2)
POWER AMPLIFIER SECTION-1
DTR-6.9
A
1
2
3
4
5
BCDEFGH
<Note>
SD-x:XY is short for Shcematic Diagram-x and
each socket's location, X=A to H, Y=1 to 5.
THE COMPONENTS IDENTIFIED BY MARK ARE CRITICAL FOR SAFETY.
REPLACE ONLY WITH PART NUMBER SPECIFIED.
BOLD VOLTAGE (MEASURED WITH VOLTMETER) IS DC VOLTAGE.(NO INPUT SIGNAL).
ALL PNP TRANSISTORS ARE EQUIVALENT TO 2SA1015-GR UNLESS OTHERWISE NOTED.
ALL NPN TRANSISTORS ARE EQUIVALENT TO 2SC1815-GR UNLESS OTHERWISE NOTED.
ALL DIODES ARE EQUIVALENT TO 1SS133 UNLESS OTHERWISE NOTED.
ELECTROLYTIC CAPACITORS ( ) ARE IN uF/WV.
ALL CAPACITORS ARE IN pF/50WV UNLESS OTHERWISE NOTED.
EX) 030- 3pF, 330- 33pF, 331- 330pF, 333- 0.033uF
ALL RESISTORS ARE IN OHMS 1/4WATTS UNLESS OTHERWISE NOTED.
THE THICK LINES ON PC BOARD ARE THE PRINTING SIDE OF THE PARTS.
EX) PRINTING SIDE
CIRCUIT IS SUBJECT TO CHANGE FOR IMPROVEMENT.
!
NOTE
-BC
+B1C
-B1C
+BC
NFC
-BR
+B1R
-B1R
+BR
NFR
-BSR
+B1SR
-B1SR
+BSR
NFSR
-BSBR
+B1SBR
-B1SBR
+BSBR
NFSBR
-BSBL
+B1SBL
-B1SBL
+BSBL
NFSBL
-BSL
+B1SL
-B1SL
+BSL
NFSL
-BL
+B1L
-B1L
+BL
NFL
Surround
Back R ch
Surround R ch
Front R ch
Center ch
Surround
Back L ch
Front L ch
Surround L ch
NACLA-9493
TX-SR806,DTR-7.9
TX-SR706,DTR-6.9
+xx.xV
+yy.yV
DC voltages in two lines indicate
the difference by models.
-0.9V
0V
1.2V
-1.2V
-0.9V
0V
1.2V
-1.2V
-0.9V
0V
1.2V
-1.2V
-0.9V
0V
1.2V
-1.2V
-0.9V
0V
1.2V
-1.2V
-0.9V
0V
1.2V
-1.2V
-0.9V
0V
1.2V
-1.2V
+63.9V
+56.6V
+62.1V
+54.8V
+62.1V
+54.8V
-62.7V
-55.5V
-58.8V
-51.5V
-63.9V
-56.6V
-61.3V
-54.0V
-62.4V
-55.1V
E5509B
E5507B
R5102
100K
R5022
330
P6002A:A
7
4
3
2
1
P6002A:B
6
5
C5022
10/50
C5012
47/50
Q5052
2SC2240-BL Q5012
2SC2240-BL
Q5002
2SC2240-BL
Q5042
2SA949Y
R5092
100K
R5112
2.2K
R5122
2.2K
R5142
(1/4W)
820
R5302
330
R5312
330
R5052
5.6k
R5172
(1/4W)
820
R5062
2.7k
R5152
(1/4W)
1K
C5052
47/50
R5132
18K
C5092
101K
Q5062
2SA1360
R5202
18K
C5102
22/100
Q5032
2SA949Y
R5082
(1/4W)
1K
C5112
22/100
Q5072
2SC3423
R5192
(1/4W)
10
R5182
(1/4W)
10
R5162
(1/4W)
820
R5212
(1/4W)
120
R5222
(1/4W)
120
R5232
NC
R5032
33K
R5012
33K
R5322
NC
R5042
1K
R5002
1.5K
C5002
101K
C5042
470/10
C5082
040D
D5002 MTZJ5.6B
R5101
100K
R5021
330
P6001A:A
7
4
3
2
1
P6001A:B
6
5
C5021
10/50
C5011
47/50
Q5051
2SC2240-BL Q5011
2SC2240-BL
Q5001
2SC2240-BL
Q5041
2SA949Y
R5091
100K
R5111
2.2K
R5121
2.2K
R5141
(1/4W)
820
R5301
330
R5311
330
R5051
5.6k
R5171
(1/4W)
820
R5061
2.7k
R5151
(1/4W)
1K
C5051
47/50
R5131
18K
C5091
101K
Q5061
2SA1360
R5201
18K
C5101
22/100
Q5031
2SA949Y
R5081
(1/4W)
1K
C5111
22/100
Q5071
2SC3423
R5191
(1/4W)
10
R5181
(1/4W)
10
R5161
(1/4W)
820
R5211
(1/4W)
120
R5221
(1/4W)
120
R5231
NC
R5031
33K
R5011
33K
R5321
NC
R5041
1K
R5001
1.5K
C5001
101K
C5041
470/10
C5081
040D
D5001 MTZJ5.6B
R5104
100K
R5024
330
P6004A:A
7
4
3
2
1
P6004A:B
6
5
C5024
10/50
C5014
47/50
Q5054
2SC2240-BL Q5014
2SC2240-BL
Q5004
2SC2240-BL
Q5044
2SA949Y
R5094
100K
R5114
2.2K
R5124
2.2K
R5144
(1/4W)
820
R5304
330
R5314
330
R5054
5.6k
R5174
(1/4W)
820
R5064
2.7k
R5154
(1/4W)
1K
C5054
47/50
R5134
18K
C5094
101K
Q5064
2SA1360
R5204
18K
C5104
22/100
Q5034
2SA949Y
R5084
(1/4W)
1K
C5114
22/100
Q5074
2SC3423
R5194
(1/4W)
10
R5184
(1/4W)
10
R5164
(1/4W)
820
R5214
(1/4W)
120
R5224
(1/4W)
120
R5234
NC
R5034
33K
R5014
33K
R5324
NC
R5044
1K
R5004
1.5K
C5004
101K
C5044
470/10
C5084
040D
D5004 MTZJ5.6B
R5106
100K
R5026
330
P6006A:A
7
4
3
2
1
P6006A:B
6
5
C5026
10/50
C5016
47/50
Q5056
2SC2240-BL Q5016
2SC2240-BL
Q5006
2SC2240-BL
Q5046
2SA949Y
R5096
100K
R5116
2.2K
R5126
2.2K
R5146
(1/4W)
820
R5306
330
R5316
330
R5056
5.6k
R5176
(1/4W)
820
R5066
2.7k
R5156
(1/4W)
1K
C5056
47/50
R5136
18K
C5096
101K
Q5066
2SA1360
R5206
18K
C5106
22/100
Q5036
2SA949Y
R5086
(1/4W)
1K
C5116
22/100
Q5076
2SC3423
R5196
(1/4W)
10
R5186
(1/4W)
10
R5166
(1/4W)
820
R5216
(1/4W)
120
R5226
(1/4W)
120
R5236
NC
R5036
33K
R5016
33K
R5326
NC
R5046
1K
R5006
1.5K
C5006
101K
C5046
470/10
C5086
040D
D5006 MTZJ5.6B
R5105
100K
R5025
330
P6005A:A
7
4
3
2
1
P6005A:B
6
5
C5025
10/50
C5015
47/50
Q5055
2SC2240-BL Q5015
2SC2240-BL
Q5005
2SC2240-BL
Q5045
2SA949Y
R5095
100K
R5115
2.2K
R5125
2.2K
R5145
(1/4W)
820
R5305
330
R5315
330
R5055
5.6k
R5175
(1/4W)
820
R5065
2.7k
R5155
(1/4W)
1K
C5055
47/50
R5135
18K
C5095
101K
Q5065
2SA1360
R5205
18K
C5105
22/100
Q5035
2SA949Y
R5085
(1/4W)
1K
C5115
22/100
Q5075
2SC3423
R5195
(1/4W)
10
R5185
(1/4W)
10
R5165
(1/4W)
820
R5215
(1/4W)
120
R5225
(1/4W)
120
R5235
NC
R5035
33K
R5015
33K
R5325
NC
R5045
1K
R5005
1.5K
C5005
101K
C5045
470/10
C5085
040D
D5005 MTZJ5.6B
R5103
100K
R5023
330
P6003A:A
7
4
3
2
1
P6003A:B
6
5
C5023
10/50
C5013
47/50
Q5053
2SC2240-BL Q5013
2SC2240-BL
Q5003
2SC2240-BL
Q5043
2SA949Y
R5093
100K
R5113
2.2K
R5123
2.2K
R5143
(1/4W)
820
R5303
330
R5313
330
R5053
5.6k
R5173
(1/4W)
820
R5063
2.7k
R5153
(1/4W)
1K
C5053
47/50
R5133
18K
C5093
101K
Q5063
2SA1360
R5203
18K
C5103
22/100
Q5033
2SA949Y
R5083
(1/4W)
1K
C5113
22/100
Q5073
2SC3423
R5193
(1/4W)
10
R5183
(1/4W)
10
R5163
(1/4W)
820
R5213
(1/4W)
120
R5223
(1/4W)
120
R5233
NC
R5033
33K
R5013
33K
R5323
NC
R5043
1K
R5003
1.5K
C5003
101K
C5043
470/10
C5083
040D
D5003 MTZJ5.6B
R5100
100K
R5020
330
P6000A:A
7
4
3
2
1
P6000A:B
6
5
C5020
10/50
C5010
47/50
Q5050
2SC2240-BL Q5010
2SC2240-BL
Q5000
2SC2240-BL
Q5040
2SA949Y
R5090
100K
R5110
2.2K
R5120
2.2K
R5140
(1/4W)
820
R5300
330
R5310
330
R5050
5.6k
R5170
(1/4W)
820
R5060
2.7k
R5150
(1/4W)
1K
C5050
47/50
R5130
18K
C5090
101K
Q5060
2SA1360
R5200
18K
C5100
22/100
Q5030
2SA949Y
R5080
(1/4W)
1K
C5110
22/100
Q5070
2SC3423
R5190
(1/4W)
10
R5180
(1/4W)
10
R5160
(1/4W)
820
R5210
(1/4W)
120
R5220
(1/4W)
120
R5230
NC
R5030
33K
R5010
33K
R5320
NC
R5040
1K
R5000
1.5K
C5000
101K
C5040
470/10
C5080
040D
D5000 MTZJ5.6B
TO NAAMP-9477
SD-3:C1
TO NAAMP-9477
SD-3:F1
TO NAAMP-9477
SD-3:F3
TO NAAMP-9477
SD-3:F3
TO NAAMP-9477
SD-3:F1
TO NAAMP-9477
SD-3:C3
TO NAAMP-9477
SD-3:C2
TO NAAMP-9477
SD-3:F2
TO NAAMP-9477
SD-3:F4
TO NAAMP-9477
SD-3:C3
TO NAAMP-9477
SD-3:C2
TO NAAMP-9477
SD-3:F2
TO NAAMP-9477
SD-3:F4
TO NAAMP-9477
SD-3:C1
U13 AMPLIFIER PC BOARD
TX-SR806,DTR-7.9
TX-SR706,DTR-6.9
+xx.xV
+yy.yV
DC voltages in two lines indicate
the difference by models.
+63.9V
+56.6V
+62.1V
+54.8V
+62.1V
+54.8V
-62.7V
-55.5V
-58.8V
-51.5V
-63.9V
-56.6V
-61.3V
-54.0V
-62.4V
-55.1V
+63.9V
+56.6V
+62.1V
+54.8V
+62.1V
+54.8V
-62.7V
-55.5V
-58.8V
-51.5V
-63.9V
-56.6V
-61.3V
-54.0V
-62.4V
-55.1V
+63.9V
+56.6V
+62.1V
+54.8V
+62.1V
+54.8V
-62.7V
-55.5V
-58.8V
-51.5V
-63.9V
-56.6V
-61.3V
-54.0V
-62.4V
-55.1V
+63.9V
+56.6V
+62.1V
+54.8V
+62.1V
+54.8V
-62.7V
-55.5V
-58.8V
-51.5V
-63.9V
-56.6V
-61.3V
-54.0V
-62.4V
-55.1V
+63.9V
+56.6V
+62.1V
+54.8V
+62.1V
+54.8V
-62.7V
-55.5V
-58.8V
-51.5V
-63.9V
-56.6V
-61.3V
-54.0V
-62.4V
-55.1V
+63.9V
+56.6V
+62.1V
+54.8V
+62.1V
+54.8V
-62.7V
-55.5V
-58.8V
-51.5V
-63.9V
-56.6V
-61.3V
-54.0V
-62.4V
-55.1V
w
w
w
.
x
i
a
o
y
u
1
6
3
.
c
o
m
Q
Q
3
7
6
3
1
5
1
5
0
9
9
2
8
9
4
2
9
8
T
E
L
1
3
9
4
2
2
9
6
5
1
3
9
9
2
8
9
4
2
9
8
0
5
1
5
1
3
6
7
3
Q
Q
TEL 13942296513 QQ 376315150 892498299
TEL 13942296513 QQ 376315150 892498299
http://www.xiaoyu163.com
http://www.xiaoyu163.com