
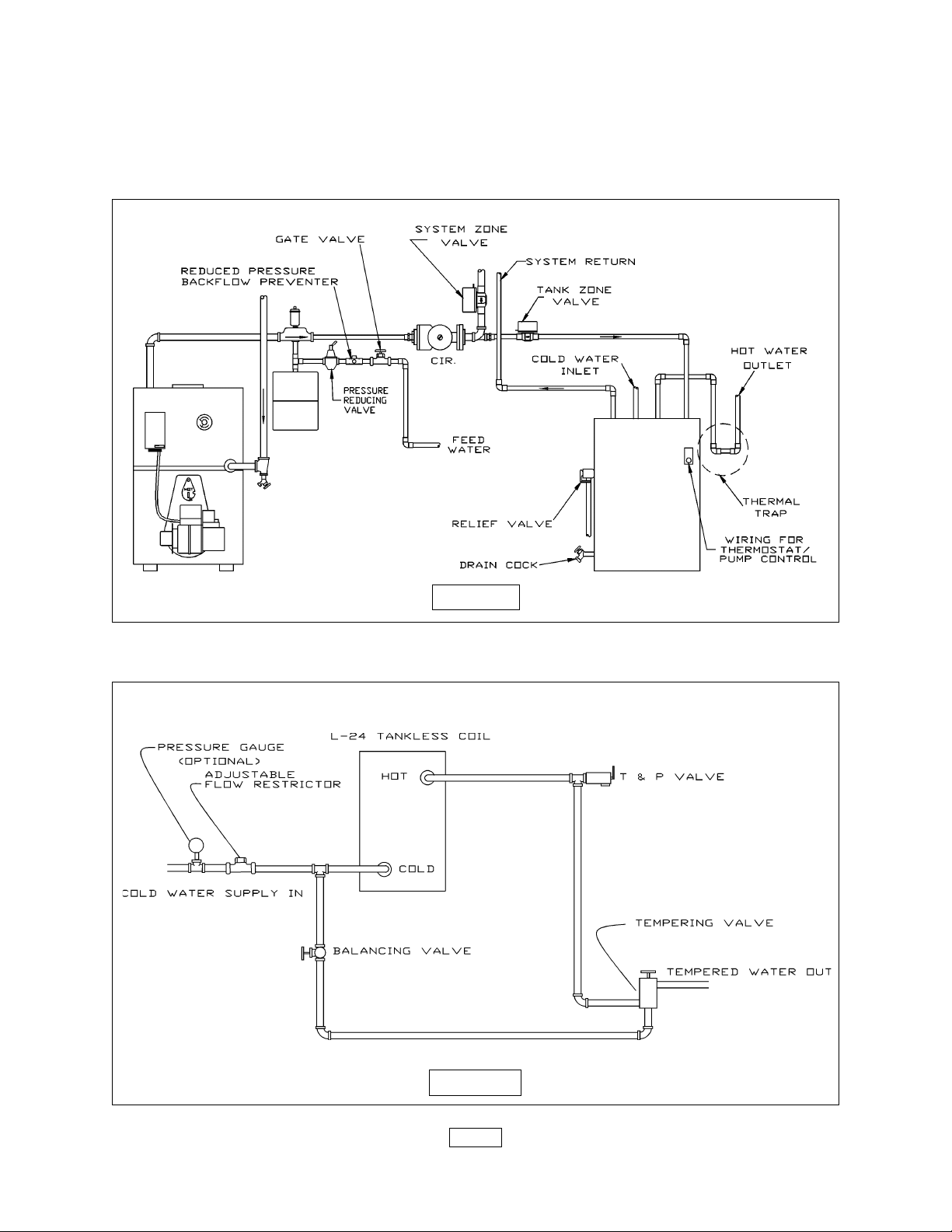
INSTALLATION PROCEDURE
WARNING: Improper installation, adjustment, alteration, service or
maintenance can cause property damage, personal injury or loss of life.
All installations must conform to the requirements of the authority having jurisdiction.
Such applicable requirements take precedence over the general instructions of this
manual.
Where required by the authority having jurisdiction, the installation must conform to the
American Society of Mechanical Engineers Safety Code for Controls and Safety Devices
for Automatically Fired Boilers, ANSI/ASME No. CSD-1, if in the US, or the CSA standard
B139, Installation COde for Oil Burning Equipment, when in Canada.
LOCATE BOILER in front of final position before removing crate. Provide a level solid
baseasnearchimneyaspossibleandcentrallylocatedwithrespectto theheatdistribution
system as practical.
WARNING: BOILER MAY NOT BE INSTALLED ON COMBUSTIBLE
FLOORING.
Allow 24 inches in the front and top for servicing and cleaning. Allow 24 inches on the
right hand side for removal of tankless coil if so equipped.
When installed in a utility room, the door should be wide enough to allow the largest
boiler part to enter, or to permit replacement of another appliance such as a water heater.
FOR INSTALLATION ON NON-COMBUSTIBLE FLOORS ONLY. The boiler
must not be installed on carpeting, wood or vinyl flooring. Minimum clearances to
combustible construction are:
TOP............................................................. 24 IN.
FRONT........................................................ 24 IN.
FLUE CONNECTOR ..................................... 9 IN.
REAR ............................................................ 6 IN.
LEFT HAND SIDE .......................................... 6 IN.
RIGHT HAND SIDE..................................... 24 IN.
NOTE: CLEARANCE FOR ACCESS SHOULD EXCEED FIRE PROTECTION
CLEARANCE.
REMOVECRATEandplasticprotectivewrapperandinspectfordamage.Allequipment
is carefully manufactured, inspected and packaged by experienced workers. Our
responsibilityceasesupondeliveryofthecratedboilertothecarrieringoodcondition.Any
claimsfordamageorshortagein shipment mustbefiledimmediatelyagainstthecarrier by
the cosignee. Move boiler to permanent position by sliding or walking.
PAGE 2