PD-F607, PD-F507
6
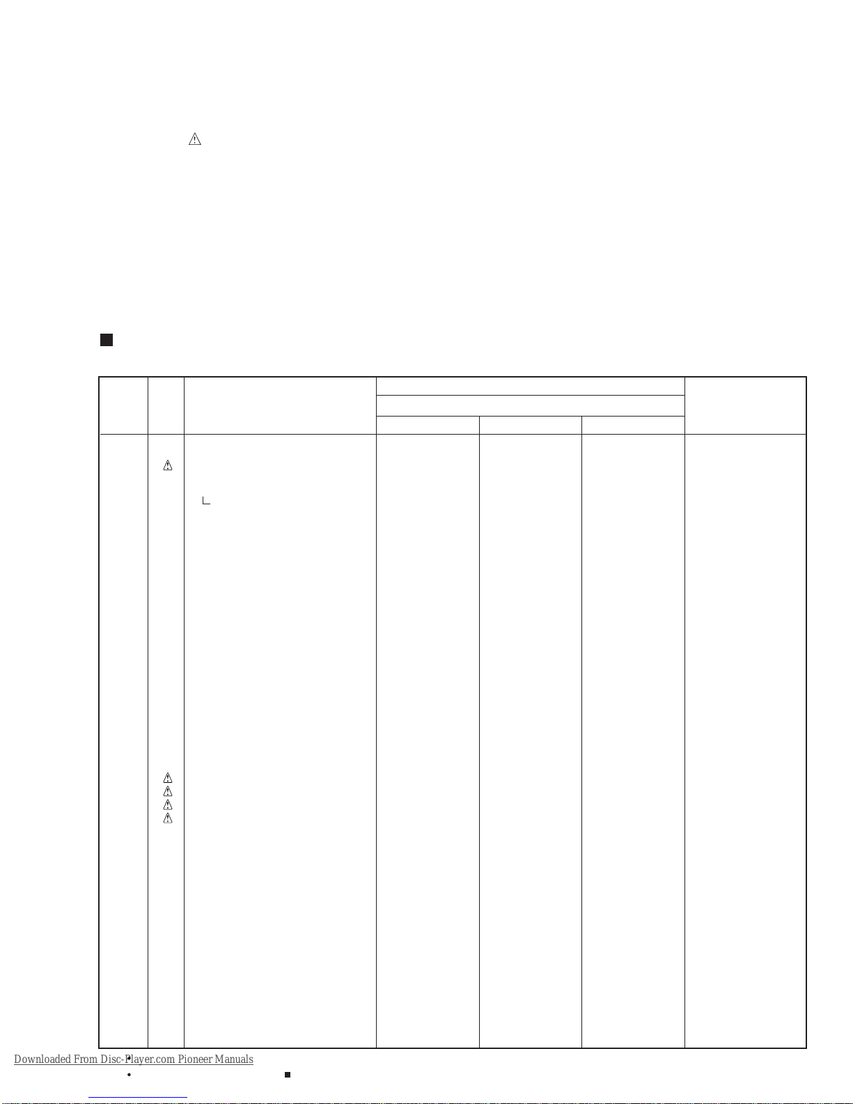
CONTRAST OF PCB ASSEMBLIES
MOTHER BOARD ASSY ASSY (For PD-F507)
PWM2197, PWM2195 and PWM2196 are constructed the same except for the following :
D391-D394 1SS254 Not used Not used
L391 LAU1R0J Not used Not used
C319,C324,C431,C432 Not used Not used CKCYF103Z50
C399 CKCYF103Z50 Not used Not used
R391 RD1/4PU244J Not used Not used
R392 RD1/4PU102J Not used Not used
JA391,JA392 RKN1004 Not used Not used
S5 (Voltage selector) Not used Not used PSB1006
Mark Symbol and Description Part No.
PWM2196 PWM2197 PWM2195 Remarks
PCB PARTS LIST
Mark No. Description Part No.
MOTHER BOARD ASSY
(PWM2196: For PDF-507/WPWXJ)
SEMICONDUCTORS
IC151 CXA1782CQ
IC301 CXD2529Q
IC31,IC34 ICP-N10
IC201,IC202 LA6520
IC405 NJM4558D-D
IC351 PD4900B
IC21 PQ05RR12
Q151 2SA854S
Q403,Q404 2SD2144S
Q341 2SK246
Q152 DTA124ES
Q321,Q405 DTC124ES
D321,D341,D352,D391-D394 1SS254
D54 MTZJ18B
D218 MTZJ6.2B
D11-D14,D52 S5688G
COILS
L351 LAU100J
L322,L391 LAU1R0J
CAPACITORS
C181 CCCCH100D50
C341,C342 CCCCH120J50
C318 CCCSL181J50
C315 CCCSL221J50
C481,C482 CCCSL390J50
C171,C175,C301,C302 CEAT101M10
C311-C314,C316,C322,C352 CEAT101M10
C52 CEAT101M35
C26 CEAT102M16
C433,C434 CEAT220M25
C131-C133,C27 CEAT330M16
C25 CEAT332M16
C351 CEAT471M6R3
C169,C170,C356 CEAT4R7M50
C309 CEATR47M50
C156,C161,C164,C168,C218 CGCYX103K25
C321 CGCYX104K25
C160 CGCYX333K25
C167 CGCYX472K25
C152,C307 CGCYX473K25
C163 CKCYB102K50
C176,C306,C441,C442 CKCYB152K50
C305 CKCYB222K50
C162 CKCYB332K50
C151 CKCYB682K50
C11-C13,C15,C16,C17 CKCYF103Z50
C159,C172,C173,C205 CKCYF103Z50
C210,C215,C219,C2231,C29 CKCYF103Z50
C304,C310,C317,C323,C325 CKCYF103Z50
C353,C354,C357,C399 CKCYF103Z50
C153-C155,C158 CQMA104J50
C157 CQMA823J50
RESISTORS
VR153,VR155 (10kΩ) RCP1045
VR151,VR152,VR154 (22kΩ) RCP1046
VR156 (220kΩ) RCP1049
Other Resistors RD1/4PU J
OTHERS
CN351 CONNECTOR HLEM34S-1
CN201 CONNECTOR 6P RKP-533
CN202 CONNECTOR 25P VKN1201
JA401 2P PIN JACK PKB1023
JA391,JA392 REMOCON JACK RKN1004
JA321 OPTICAL OUTPUT JACK TOTX178
TERMINAL 2P RKC-061
X341 CRYSTAL RESONATOR PSS1008
(16.9344MHz)
X351 CERAMIC RESONATOR VSS1014
(4.194MHz)
MOTHER BOARD ASSY
(PWM2200: For PDF-607/WYXJ)
SEMICONDUCTORS
IC406 BA15218
IC151 CXA1782CQ
IC301 CXD2529Q
IC31,IC34 ICP-N10
IC201,IC202 LA6520
IC302 LC89170M
IC405 NJM4558D-D
IC401 PD2026B(L)
IC351 PD4900B
IC21 PQ05RR12
Mark No. Description Part No.
JF
JF
JF
Downloaded from www.Manualslib.com manuals search engine
Downloaded From Disc-Player.com Pioneer Manuals