
FT430/440/450 INSTRUCTIONS
Seametrics • 253.872.0284 Page 7 seametrics.com
INSTALLATION
Panel Mount. Using the “Panel Cutout” drawing as a guide,
cut a hole in the panel. Place the FT430/440 indicator on the
panel and mark the holes, drill, and mount with the supplied
screws and washers.
Note: In addition to the panel cut out for the display, you
will need a small cut out in the panel, close to the FT430/440,
to mount the data logger connector. Install the data logger
connector in the small cut out and then wire the connector to
the back of the panel mounted FT430/440 inside of the panel.
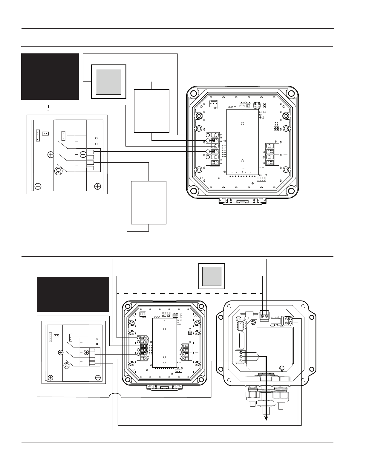
Connections. To connect the ow computer to a ow sensor
or an external device such as a chemical metering pump,
follow the Standard Connections diagrams on the following
pages.
Environmental protection. Anytime an FT unit, or other
meter is opened or otherwise exposed to the surrounding
environment it is the responsibility of the installer to assure the
housing is left clean, dry, fully sealed and otherwise protected
from the surroundings. Moisture and dirt will damage
electronics and care must be taken to keep the electronics
housings clean and dry.
When installing, or re-installing any FT, or other housing cover
to any enclosure be certain the gasket is in good condition, is
clean and has not been damaged in any way. Then be certain
to snugly torque the fastener(s) so the gasket is well sealed.
Every threaded opening in any meter housing will either
be lled with a plug or a cord grip when the unit leaves
the factory. If a plug is removed to allow for a cable to be
installed, be certain a cord grip with cable gland is installed in
its place and that the thread is sealed with a thread sealant or
proper O-ring. Bare plastic threads in a metal housing are not
sucient and will cause atmospheric moisture to be sucked
into the housing due to varying atmospheric pressure.
Cord Grips. Cord grips supplied by Seametrics are properly
sized for the openings and threads in our meters and housings
and are properly sized for cables oered by Seametrics. Cord
grips must be well sealed into their housings and must be
well sealed onto any cable that is installed through that cord
grip. The compression nut for every cord grip must be left
installed on the cord grip and must be snugly tightened on
the cable or on a plug that would take the place of the cable.
Plugs with anges are to be installed from the outside of the
compression nut to assure that the tapered features inside the
nut can properly compress the cable gland when tightened
Wall Mount Housings. Wall mount housings for FT units are
supplied with 3 cord grips of dierent sizes. Be sure to use
the appropriate sized cord grip for your cable or cables and to
assure any unused cord grips are well sealed with a properly
sized plug (these plugs will come in the cord grips that are
supplied with the wall mount housing when shipped from the
factory.) There will be a properly sized cord grip for any cable
supplied by Seametrics.
Cables. We recommend the use of cables that are supplied by
Seametrics. If other cables are used the outside of the cable
must be round and smooth so the cord grip can properly seal
the cable.
Keep in mind that most cables are not sealed on the inside
and a cable that is well sealed to a housing but left open on
the weather end is just a conduit for moisture and changes
in atmospheric pressure will cause, over time, moisture to
be drawn into the housing through any exposed cable end,
causing failure of your electronics.
* EGND - Additional protection against voltage spikes.
In most cases, an FT unit can simply be installed with power
(or battery) and pulse input and it will easily run with no
additional protection required. In the event the FT unit may
be exposed to voltage spikes (nearby lightning or other power
disruptions), the EGND terminal of the FT should be wired to a
good earth ground. In wall mount units with optional power
supplies installed, Seametrics recommends running a separate
green or green/yellow wire from the EGND terminal of the FT
to the G terminal of the AC input voltage plug while that plug
is not installed and then reinstall the plug after wiring. In cases
where the power supply is located remotely, connect one end
of one conductor in the power/output cable to a good earth
ground and the other end to the EGND terminal.
For FT units built with rmware revision CP-141xx_01.28 (found
in the EXIT tab of the rst menu screen,) all settings (K-factor,
R UNIT, T UNIT, etc.) must be made with the EGND terminal
disconnected. The EGND terminal can then be reconnected
after programming.
Panel Cutout
3.56 (90.4)
2.4 (61) TYP
3.5 (88.9) TYP .218 (5.5)
3.56
(90.4)
(PANEL CUTOUT)