
Document 520/001 Rev 2.2 Dec 2013 Page 1 of 10
Web: www.waterleakdetection.com Email: info@thermocable.com
Tel: +44 (0)1274 882359 Fax: +44 (0)1274 882229
ProH2O Water Leak Detection Application Guide
IMPORTANT GUIDELINES
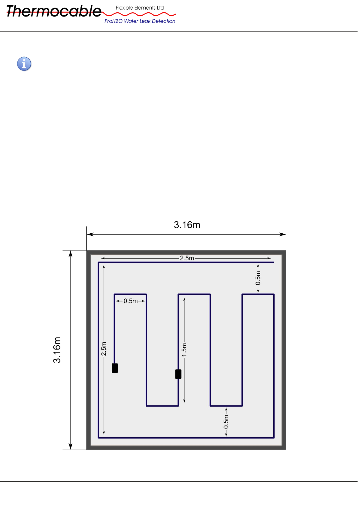
The ProH2O Water Leak Detection Systems are ideally suited for early warning of water leaks in a wide variety
of applications. Planning and correct placement of the ProH2O sensor cable will maximize the effectiveness of
the system to detect water leaks and trigger an alarm. Before starting the installation identify all areas where a
water leak is likely to occur and make a note of these areas in order to plan placement of the cable.
In all applications of water leak detection it should be noted that the ProH2O sensor cable
MUST come into contact with sufficient amount of water in order to trigger an alarm. Therefore
before installing the sensor cable check either visually or by experiment to ensure water will
flow to where you intend to lay the cable.
• Ensure the product is installed, commissioned and maintained by persons according to good
engineering practices and authorities having jurisdiction.
• It is important at all times to keep the detection cable clean and free from dust, debris and other
contaminants that may soil the cable, especially during installation.
• Ensure any major construction work has been completed and signed off before installing the detection cable
• Periodically inspect the detection cable. The cable should be clean and free of dust or other contamination.
The inspection interval should be no greater than 12 months.
• Ensure the detection cable is thoroughly dried out after a leak has occurred.
• A selfadhesive or screwtype Uclip should be used to secure the detection cable to the mounting surface
without lifting it or creating an air gap between the surface and cable.
• Do not cut and reterminate the detection cable.
The connections have been factory fitted and are unservicable.
• Do not paint the detection cable.
• Do not put the detection cable under excessive tension.
Maintain some slack in the detection cable when laying it out on surfaces.
• Do not bend the detection cable less than the minimum bend radius of 25mm (1")
• Avoid laying the detection cable in areas where heavy taffic may result in damage.
• Do not solder or weld around the detection cable. Flux or other conductive contaminants will prevent the
detection cable from operating correctly.
• Do not crush the detection cable.