1313
1414
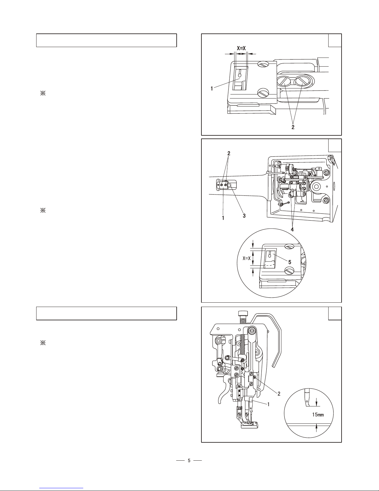
1. Loosen the rock shaft 1 and the presser foot 2;
2. Adjust the stitch length to 0 , and lift the n dle
bar to its highest position;
3. Insert a new needle, and loosen the screw 3, 4, 5, 6;
4. Turn the balance wheel and pass the needle
directly through the feed dog;
5. Move the needle bar frame 7 as required;
6. Tighten the screw 3, 4, 5;
7. Move the position pin 8 to make it touch the
needle bar frame 7, and tighten the screw 6.
When the stitch length is at the the needle
must enter the hole exactly in the middle.
ee
0,
1. Loosen the rock shaft 1 and the presser foot 2;
2. Adjust the stitch length to 0 , and lift the n dle
bar to its highest position;
3. Insert a new needle, and loosen the screw 3, 4, 5, 6;
4. Turn the balance wheel and pass the needle
directly through the feed dog;
5. Move the needle bar frame 7 as required;
6. Tighten the screw 3, 4, 5;
7. Move the position pin 8 to make it touch the
needle bar frame 7, and tighten the screw 6.
When the stitch length is at the the needle
must enter the hole exactly in the middle.
ee
0,
14.Adjusting the position of the needle
and the needle hole(Fig.13)
14.Adjusting the position of the needle
and the needle hole(Fig.13)
1. Adjust the stitch length to its max;
2. Loosen the screw 1 so the driving eccentric
wheel 2 can turn on the shaft;
3. Adjust the needle bar to its lowest position;
4. Turn the eccentric wheel 2 to make the throw of
eccentric upward, and turn it a bit as required;
5. Tighten the screw 1;
6. Test it as required.
Set the stitch length to its max, adjust the
needle bar to its lowest position, and when the
reverse feed lever is working, it will not feed.
1. Adjust the stitch length to its max;
2. Loosen the screw 1 so the driving eccentric
wheel 2 can turn on the shaft;
3. Adjust the needle bar to its lowest position;
4. Turn the eccentric wheel 2 to make the throw of
eccentric upward, and turn it a bit as required;
5. Tighten the screw 1;
6. Test it as required.
Set the stitch length to its max, adjust the
needle bar to its lowest position, and when the
reverse feed lever is working, it will not feed.
15. Adjusting the position of the bottom
feed dog(Fig.14)
15. Adjusting the position of the bottom
feed dog(Fig.14)