
6
Method A. 12” (304.8 mm) Clearance to Combustible
Wall Member: Using a minimum thickness 3.5” (89 mm)
brick and a 5/8” (15.9 mm) minimum wall thickness
clay liner, construct a wall pass-through. The clay liner
must conform to ASTM C315 (Standard Specification
for Clay Fire Linings) or its equivalent. Keep a minimum
of 12” (304.8 mm) of brick masonry between the clay
liner and wall combustibles. The clay liner shall run from
the brick masonry outer surface to the inner surface of
the chimney flue liner but not past the inner surface.
Firmly grout or cement the clay liner in place to the
chimney flue liner.
Method B. 9” (228.6 mm) Clearance to Combustible
Wall Member: Using a 6” (152.4 mm) inside diameter,
listed, factory-built Solid-Pak chimney section with
insulation of 1” (25.4 mm) or more, build a wall pass-
through with a minimum 9” (228.6 mm) air space
between the outer wall of the chimney length and
wall combustibles. Use sheet metal supports fastened
securely to wall surfaces on all sides, to maintain the
9” (228.6 mm) air space. When fastening supports to
chimney length, do not penetrate the chimney liner
(the inside wall of the Solid-Pak chimney). The inner
end of the Solid-Pak chimney section shall be flush with
the inside of the masonry chimney flue, and sealed
with a non-water soluble refractory cement. Use this
cement to also seal to the brick masonry penetration.
Method C. 6” (152.4 mm) Clearance to Combustible
Wall Member: Starting with a minimum 24 gauge (.024”
[.61 mm]) 6” (152.4 mm) metal chimney connector,
and a minimum 24 gauge ventilated wall thimble
which has two air channels of 1” (25.4 mm) each,
construct a wall pass-through. There shall be a minimum
6” (152.4) mm separation area containing fiberglass
insulation, from the outer surface of the wall thimble
to wall combustibles. Support the wall thimble, and
cover its opening with a 24-gauge minimum sheet
metal support. Maintain the 6” (152.4 mm) space.
There should also be a support sized to fit and hold
the metal chimney connector. See that the supports
are fastened securely to wall surfaces on all sides.
Make sure fasteners used to secure the metal chimney
connector do not penetrate chimney flue liner.
Method D. 2” (50.8 mm) Clearance to Combustible
Wall Member: Start with a solid-pak listed factory
built chimney section at least 12” (304 mm) long,
with insulation of 1” (25.4 mm) or more, and an inside
diameter of 8” (2 inches [51 mm] larger than the 6”
[152.4 mm] chimney connector). Use this as a pass-
through for a minimum 24-gauge single wall steel
chimney connector. Keep solid-pak section concentric
with and spaced 1” (25.4 mm) off the chimney
connector by way of sheet metal support plates at
both ends of chimney section. Cover opening with
and support chimney section on both sides with 24
gauge minimum sheet metal supports. See that the
supports are fastened securely to wall surfaces on all
sides. Make sure fasteners used to secure chimney flue
do not penetrate flue liner.
NOTES: Connectors to a masonry chimney,
excepting method B, shall extend in one continuous
section through the wall pass-through system and the
chimney wall, to but not past the inner flue liner face.
A chimney connector shall not pass through an attic
or roof space, closet or similar concealed space, or
a floor, or ceiling.
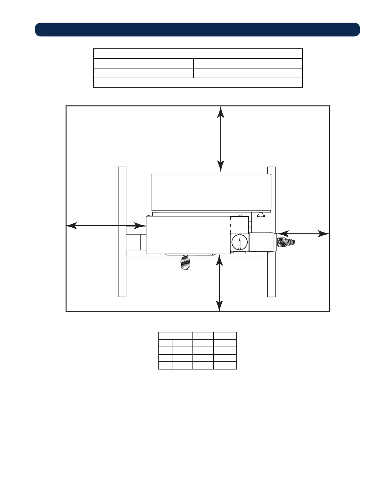
COMBUSTIBLE WALL CHIMNEY CONNECTOR PASS-THROUGHS