Installation Manual
'XFWOHVV Ventilation System with Heat Recovery
Type e² and e² short
Contents Page:
About this manual, safety instructions 1
Technical Specifications 1
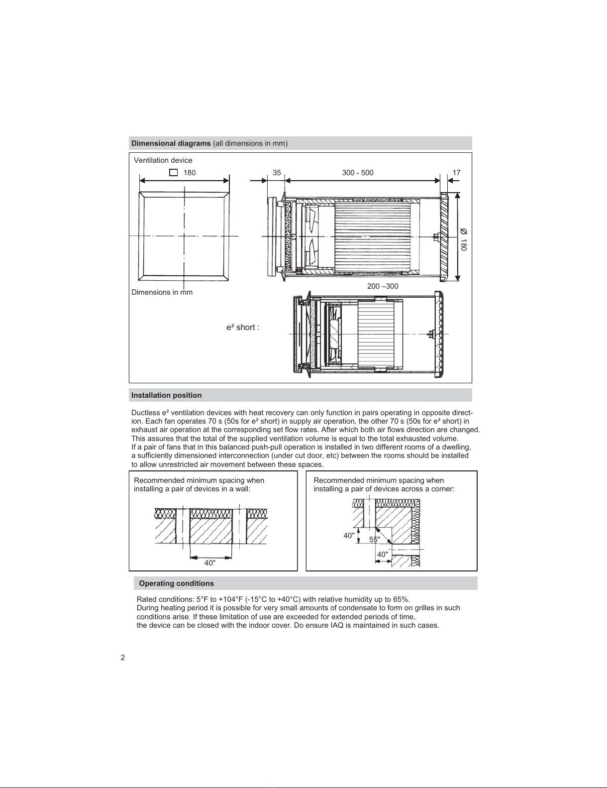
Dimensional diagrams 2
Installation ORFDWLRQ 2
Shipping units 3
Assembly: Assembly pipe and outside grid 4
Assembly: Electric installation and electric connection 5
Assembly: Heat recovery unit and indoor blind 6
Assembly: Noise absorption set 7
)ORZUDWHVHOHFWLRQRSWLRQVRQFRQWUROOHU 7
Filter replacement, Cleaning 8
Additional replacement parts 8
About this manual
x Read this manual carefully and completely before assembly. &RPSO\ZLWK the general safety instruc-
tions and the safety symbols with information in the text.
x Hand out this manual to the user (tenant, proprietors, property management etc.) after completing
assembly.
Symbols in this manual
This symbol is a danger warning in connection with risk of injury
This symbol is a danger warning in connection with risk of injury from electricity
Safety instructions
Beware! Any assembly work to the ventilation device may only be carried out after disconnec-
ting all phases of supply FXUUHQWV! The ventilation device is fitted with protective insulation ac-
cording to Protection Class II, the protection connection is superfluous!
Attention! The electric connection may only be made by authorised qualified HOHFWULFLDQV
according to the ORFDOEXLOGLQJFRGHV
Attention! This device may not be operated by children and persons (filter replacement/
cleaning) who are not able to operate the device safely due to their psychic, sensory or mental
abilities or their inexperience or lack of knowledge. Children should be supervised to ensure
that they do not play with the device.
Technical specifications
Device voltage: 12 VDC SELV
Type of protection: IP 22
Volume flow: &)0RU&)0m³/h;&)030m³/h,&)038m³/h
Measuring sound pressure level 16,5 dB; 19,5 dB
Sound level difference:42 dB
Disposal
Dispose of the packaging correctly sorted. If you want to dispose of the device, abide by the
current rules and regulations. The applicable municipal office will provide information.
1