
Table of Contents
Introduction ............................................................................5
Features ................................................................................................................................ 5
MG5075 Additional Features ........................................................................................ 5
System Overview ...............................................................................................................5
Modules Current Consumption List ..........................................................................5
Specifications ...................................................................................................................... 6
Installation ..............................................................................7
Location and Mounting .................................................................................................. 7
EN 50131 Compliancy ...................................................................................................... 7
Earth Ground ...................................................................................................................... 7
AC Power .............................................................................................................................. 7
Backup Battery ................................................................................................................... 7
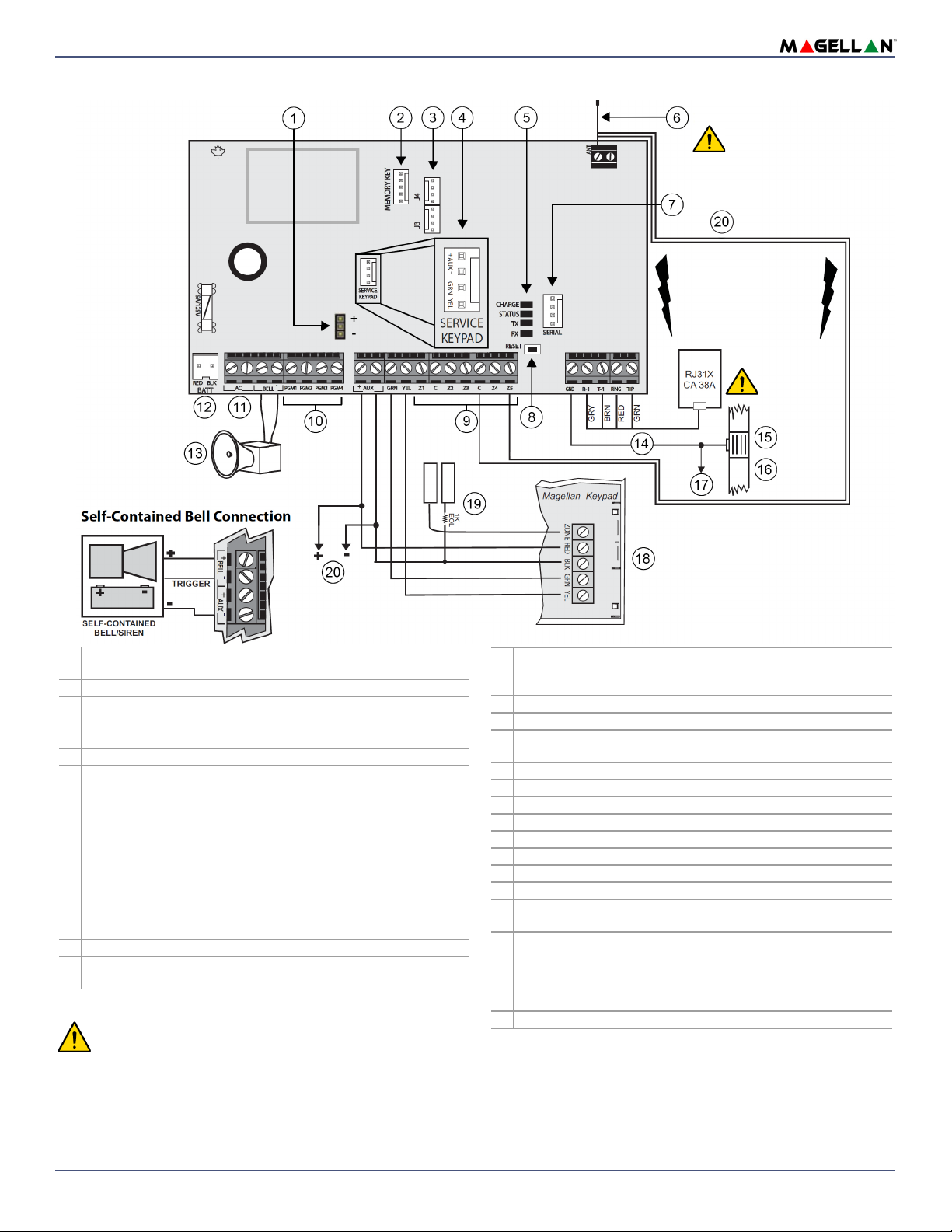
MG5000 PCB Layout ......................................................................................................... 8
MG5050 / MG5050 EN PCB Layout .............................................................................. 9
MG5075 PCB Layout .......................................................................................................10
SP4000 PCB Layout .........................................................................................................11
SP5500 PCB Layout .........................................................................................................12
SP6000 PCB Layout .........................................................................................................13
SP7000 PCB Layout .........................................................................................................14
PCB Metal Box Installation ...........................................................................................15
Plastic Box Installation ...................................................................................................15
Auxiliary Power Terminals ............................................................................................17
Telephone Line Connection ........................................................................................17
Alarm Transmissions ......................................................................................................17
Bell Output Connection ................................................................................................17
Programmable Output Connections .......................................................................17
Single Zone Inputs ..........................................................................................................18
Advanced Technology Zone (ATZ) Connections .................................................19
Fire Circuits ........................................................................................................................20
Programming Methods ........................................................21
BabyWare Software for Windows ..............................................................................21
Programming Using a Keypad ...................................................................................21
Configuring the Keypad Zone Number ..................................................................22
Programming Using A Paradox Memory Key* .....................................................22
LCD Keypad Labels ...............................................................23
Input Keys ..........................................................................................................................23
Label Sections ...................................................................................................................23
Special Characters and Keypad Letter Assignment ............................................23
Access Codes .........................................................................26
Access Code Length .......................................................................................................26
Installer Code (Default: 0000 / 000000) ...................................................................26
Maintenance Code (Default: Empty) ........................................................................26
System Master Code (Default: 1234 / 123456) .....................................................26
User Code Options ..........................................................................................................26
Lock Master Code ............................................................................................................27
StayD Mode ...........................................................................28
Overview ............................................................................................................................28
Entry/Exit Paths ................................................................................................................28
Entry/Exit with a Keypad ..............................................................................................28
Entry/Exit with a Remote Control ..............................................................................28
Window Mode and Re-arm Delay .............................................................................28
Advanced Settings ..........................................................................................................28
Zone Programming ..............................................................29
Zone Definitions ..............................................................................................................29
Zone Definition Status ..................................................................................................32
Zone Partition Assignment ..........................................................................................32
Zone Options ....................................................................................................................32
EOL Zones ..........................................................................................................................34
ATZ Zone Doubling ........................................................................................................34
Tamper Input on ZX8/ZX82 ID A (Panel + 1) .........................................................34
Tamper Input on ZX8/ZX82 ID B (Panel + 9) .........................................................34
Tamper Input on ZX8/ZX82 ID C (Panel + 17) .......................................................34
ATZ Wiring Options ........................................................................................................34
Zone Input 1 Becomes a 2-wire Smoke Input .......................................................34
Zone Timers .......................................................................................................................34
Keyswitch Programming .....................................................35
Keyswitch Numbering ...................................................................................................35
Keyswitch Definitions ....................................................................................................35
Keyswitch Options ..........................................................................................................35
Wireless Features .................................................................36
Wireless Transmitter Programming .........................................................................36
Viewing the Wireless Transmitter Signal Strength .............................................36
Supervision Options ......................................................................................................36
RF Jamming Supervision ..............................................................................................37
Wireless Serial Number Display .................................................................................37
Remote Control Programming ..................................................................................37
Wireless Keypad Assignment .....................................................................................38
Viewing the Wireless Keypad Signal Strength .....................................................38
Wireless Keypad Options .............................................................................................39
Wireless Keypad Live Display Mode .........................................................................39
Wireless Repeater Programming ..............................................................................39
Viewing the Repeater’s Signal Strength .................................................................40
Wireless Repeater Options ..........................................................................................40
Wireless Options .............................................................................................................40
Arming and Disarming Options ..........................................44
Switch to Stay Arming if no Entry Delay is opened ............................................44
When Delay Zone is bypassed Follow Zones become Entry Delay 2 ...........44
Regular Arming switches to Force Arming ............................................................44
Stay Arming switches to Stay Force Arming .........................................................44
Sleep Arming switches to Sleep Force Arming ....................................................44
Restrict Arming on Battery Failure ............................................................................44
Restrict Arming on Tamper Failure ...........................................................................44
Restrict Arming on Wireless Supervision Trouble ...............................................45
Arm/Disarm with VDMP3 .............................................................................................45
Timed Auto-Arming .......................................................................................................45
No Movement Auto-Arming .......................................................................................45
Auto-Arming Options ....................................................................................................45
One-Touch Arming .........................................................................................................46
One-Touch Bypass Programming .............................................................................46
Exit Delay ...........................................................................................................................46
Bell Squawk On Arm/Disarm with Keypad ............................................................46
Bell Squawk On Arm/Disarm with Remote Control ............................................46
No Exit Delay When Arming with Remote Control .............................................46
No Exit Delay Beeps and No Bell Squawk When Stay/Sleep Arming ...........46
Exit Delay Termination ..................................................................................................46
Fast Exit ...............................................................................................................................46
Alarm Options ......................................................................47
Bell Cut-Off Timer ............................................................................................................47
Recycle Alarm ...................................................................................................................47
Tamper Recognition ......................................................................................................47
RF Module Supervision .................................................................................................47
Tamper Bypass Options ................................................................................................47
Tamper Supervision on the Bus Module ................................................................47
Tamper Supervision on Panel (MG5075 only) ......................................................48
Keypad Panic Options ...................................................................................................48
Panic Lockout Timer ......................................................................................................48
Flex-Instant Delay ...........................................................................................................48
Reporting and Dialer settings .............................................49
Zone Reporting Codes ..................................................................................................49
User Reporting Codes ...................................................................................................49
Special Arming Report Codes .....................................................................................49
Special Disarming Report Codes ...............................................................................49
Special Alarm Report Codes ........................................................................................49
System Trouble Report Codes ....................................................................................50
System Trouble Restore Report Codes ....................................................................50
System Special Report Codes .....................................................................................50
Clear Reporting Codes ..................................................................................................51
Reset Reporting Codes ..................................................................................................51
Monitoring Station Telephone Numbers ...............................................................51
Personal Dialing Numbers ...........................................................................................51
Reporting Formats ..........................................................................................................52
Dialing Method ................................................................................................................53