Page 9
Page 9
8. Use clean damp cloth to wipe the surfaces
inside the storage bin and the outside of the
cabinet.
9. See data plate on the rear side of the unit
and check that local main voltage corresponds
with the voltage specified on it.
CAUTION. Incorrect voltage supplied to
the icemaker will void your parts
replacement program.
10. Remove the manufacturer’s registration
card from the inside of the User Manual and fill-
in all parts including: Model and Serial Number
taken from the data plate.
Forward the completed self-addressed
registration card to Frimont factory.
11. If necessary, on model EC 56, replace the
fourstandardlegswiththetalleronessuppliedin
the machine and adjust them to level the unit.
C. LOCATION AND LEVELLING
WARNING.This Ice Cuber is designed for
indoorinstallationonly.Extendedperiods
of operation at temperatures exceeding
the following limitations will constitute
misuseunderthetermsoftheSCOTSMAN
Manufacturer’sLimitedWarrantyresulting
in LOSS of warranty coverage.
1. Position the unit in the selected permanent
location.
Criteria for selection of location include:
a)Minimumroomtemperature10°C(50°F)
and maximum room temperature 40°C (100°F).
b) Water inlet temperatures: minimum 5°C
(40°F) and maximum 35°C (90°F).
c) Well ventilated location for air cooled
models.
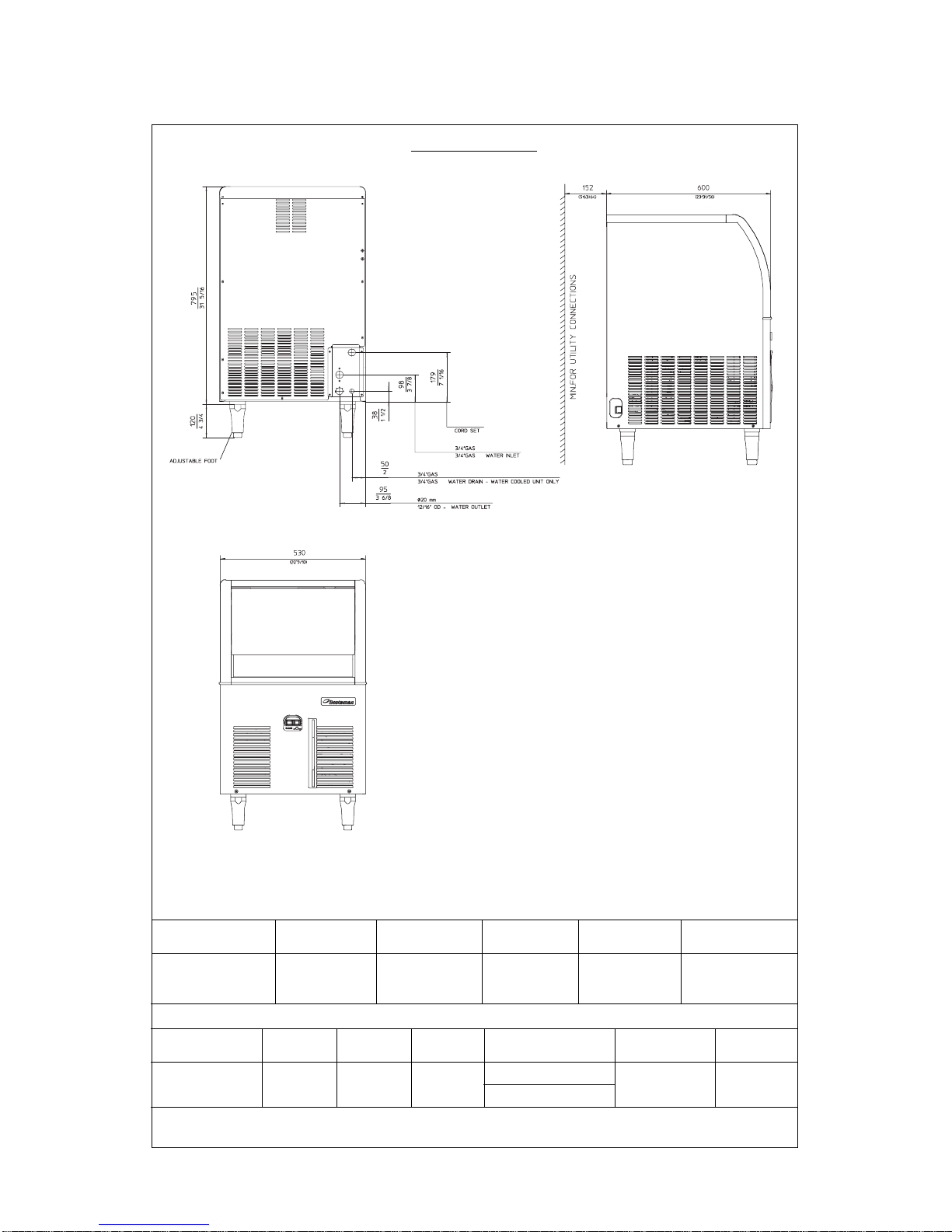
d) Service access: adequate space must
beleftforallserviceconnectionsthroughtherear
of the ice maker. A minimum clearance of 15 cm
(6")mustbeleftatthesidesoftheunitforrouting
cooling air drawn into and exhausted out of the
compartment to maintain proper condensing
operation of air cooled models.
2. Level the unit in both the left to right and
front to rear directions.
D. ELECTRICAL CONNECTIONS
See data plate for current requirements to
determine wire size to be used for electrical
connections.AllSCOTSMAN icemakersrequire
a solid earth wire.
A. INTRODUCTION
This manual provides the specifications and the
step-by-stepproceduresfortheinstallation,start-
up and operation, maintenance and cleaning for
the SCOTSMAN EC series icemakers.
These Cubers are quality designed, engineered
and manufactured.
Their ice making systems are thoroughly tested
providing the utmost in flexibility to fit the needs
of a particular user.
These icemakers have been engineered to our
own rigid safety and performance standards.
NOTE
.Toretainthesafetyandperformance
built into this icemaker, it is important that
installation and maintenance be conducted
in the manner outlined in this manual.
B. UNPACKING AND INSPECTION
1. CallyourauthorizedSCOTSMANDistributor
or Dealer for proper installation.
2.
Visually inspect the exterior of the packing
and skid. Any severe damage noted should be
reported to the delivering carrier and a concealed
damage claim form filled in subjet to inspection of
thecontentswiththecarrier’srepresentativepresent.
3. a)Cutandremovetheplasticstripsecuring
the carton box to the skid.
b)Cutopenthetopofthecartonandremove
the polystyre protection sheet.
c) Pull out the polystyre posts from the
corners and then remove the carton.
4. Remove the front panel of the unit and
inspectforanyconcealeddamage.Notifycarrier
ofyourclaimfortheconcealeddamageassteted
in step 2 above.
5. Check that refrigerant lines do not rub
againstor touch other lines or surfaces, and that
the fan blade moves freely.
6. Check that the compressor fits snugly onto
all its mounting pads.
7. Remove all internal support packing and
masking tape.
GENERAL INFORMATION AND INSTALLATION