Pos. Teile-Nr. Benennung Denomination Pos. Teile-Nr. Benennung Denomination
001Tafel/ Table: Seite/ Page: 1von/ of 2
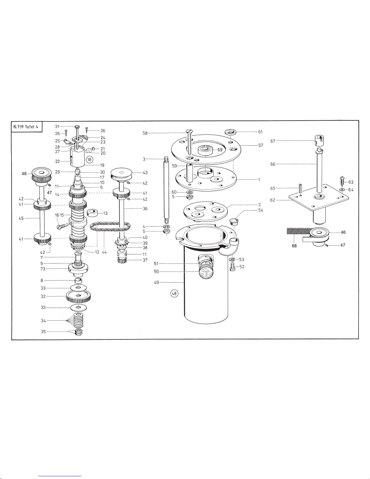
1MG50 006011 Seitenteil10001
2MG50 002521 Querverbindung10002
39201 114157 6kt.-Schraube10003
40742 005027 Scheibe10004
5MG43 000012 Federring10005
69231 110147 6kt.-Mutter10006
7MG50 002551 Ständer10007
8MG50 002554 Fuß10008
99201 014597 6kt.-Schraube10009
10 0742 005110 Federring10010
11 9231 110157 6kt.-Mutter10011
12 9201 014207 6kt.-Schraube10012
13 9330 900137 Scheibe10013
14 9332 500160 Federring10014
15 9330 000137 Scheibe10015
16 MG43 000062 Klemme10016
17 MG50 006041 Winkel10017
18 0718 002219 Lasche10018
19 9201 113717 6kt.-Schraube10019
20 0725 000520 B Federring10020
21 MG50 006071 Platte10021
22 MG50 006073 Achse10022
23 0746 000272 Scheibe10023
24 0746 000265 Lagerbock10024
25 9202 002887 Zyl.-Schraube10025
26 0744 001131 Federring10026
27 0742 040188 Spezialschraube10027
28 0742 040241 Spezialschraube10028
29 9231 110137 6kt.-Mutter10029
30 MG50 006088 Winkel10030
31 9202 003297 Zyl.-Schraube10031
32 0746 000263 A Zahnscheibe10032
33 MG50 006093 Abdeckblech10033
34 9202 002483 Zyl.-Schraube10034
35 9202 002873 Zyl.-Schraube10035
36 MG5O 006141 Ölwanne10036
37 9202 002063 Zyl.-Schraube10037
38 0713 000302 Spanplattenschraube *10038
40 0700 001736 Tischplatte (-1201)10039
40 0700 001746 Tischplatte (-1202)10040
41 0739 000099 Führungsplatte10041
41 0739 000616 Führungsplatte10042
42 9207 160657 Spanplattenschraube10043
43 0739 000138 Ring10044
44 0700 000055 A Gummiecke10045
45 MG41 004524 Spanplattenschraube10046
46 0523 000028 Stütze10047
59 0700 001747 Auflage10048
60 0739 000204 Gummimatte10049
61 0739 000203 Anschlag10050
62 0739 000207 Winkel10051
63 0739 000061 Führungsschiene10052
64 9202 002063 Zyl.-Schraube10053
65 9330 000087 Scheibe10054
66 0739 000081 Grundplatte10055
67 0739 000088 A Schutzkappe10056
68 0902 000670 Zyl.-Schraube10057
69 0739 000090 Winkel10058
70 1001 009130 Linsenschraube10059
71 0792 025354 Führungsrohr10060
72 0739 000097 Scheibe10061
73 9330 000127 Scheibe10062
74 0739 000102 Stellring kpl.10063 (mit Pos. 75)
75 0223 000669 Gewindestift10065
76 9203 003128 Zyl.-Schraube10066
77 9330 000068 Scheibe10067
78 0739 000085 Lasche10068
80 0791 001081 Garnständerrohr10069
81 9330 000127 Scheibe10070
82 0995 340617 6kt.-Mutter10071
83 0791 001091 Garnhaltearm kpl.10072 (mit Pos. 85 und 86)
84 0791 001096 Fadenführung kpl.10074 (mit Pos. 85 und 86)
85 9204 202038 Linsenschraube10076