
3
ASSEMBLY
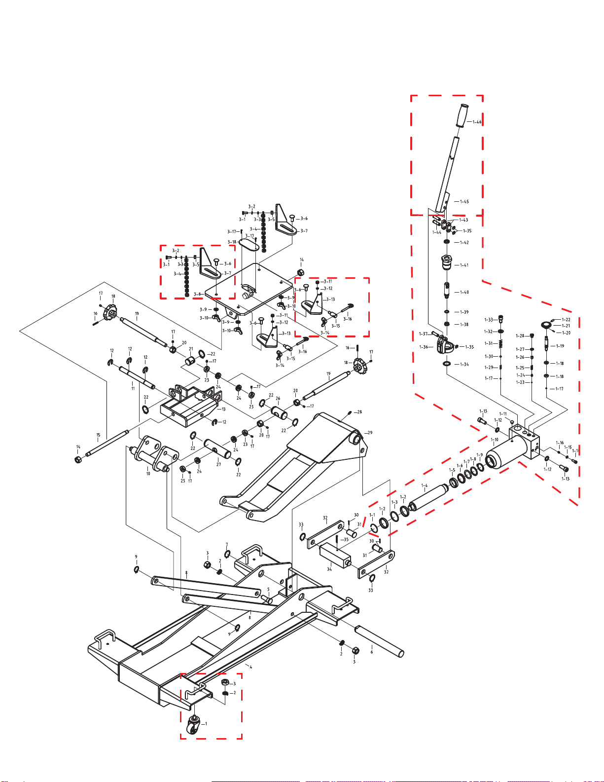
/LWWOH DVVHPEO\ is required. 5HIHU to thefigures in the
manual for details in understanding the DVVHPEO\DQG
the components of \RXU product.
t,QVWDOOEUDFNHWVSDUWDQGSDUWLQWRVDGGOH
SODWHSDUWZLWKWKHEROWVSDUWZDVKHUV
SDUWDQGZLQJQXWVSDUW
$WWDFKWKHFKDLQVSDUWWRWKHEUDFNHWVSDUW
6HFXUHWREUDFNHWVZLWKWKHEROWVSDUWZDVKHUV
SDUWORFNZDVKHUVSDUWDQGQXWVSDUW
t$VVHPEOHWKHFKDLQKRRNVSDUWKRRNVWRWKH
DGDSWHUEROWVSDUWZLWKWKHZLQJQXWVSDUW
t6HFXUHWKHDGDSWHUEROWVSDUWWRWKHWZRUHPDLQLQJ
EUDFNHWVSDUWXVLQJWKHZDVKHUVSDUWDQG
QXWVSDUW
OPERATION
Raise saddle:
1. /RFDte and close release valve E\ turning NnoE
FORFNZLVe firml\, then pump the pump handle until
the load is contacted.
Followvehicle manufacturer’srecommended proce-
dures for removing the load as outlined in vehicle
service manual or repair JXLGH3RVLWLRQWKHWUDQVPLVVLRQ
on the saddle plate, resting against the angle plates.
3. Secure load with provided chains. (QVXUHWKHORDG¶V
center of JUDYLW\ is centered on the saddle and load
is VWDEOe EHIRUe moving MDFN.
Lower saddle:
Caution! %H sure all tools and personnel are clear
EHIRUH loweringload.'\QDPLF VKRFN loads arecreated
E\ TXLFNO\ opening and closing the release valve as the
loadisEHLQJ lowered. Theresulting overload ma\
cause K\GUDXOLF V\Vtem failure.
1. Slowl\, JHQWO\ turn the release valve NQRE
FRXQWHUFORFNZLVH never more than 1/2 full turn
until the load is completHO\ lowered.
.Immediatel\transferthe load toan appropriate
repair IL[WXUH
Toavoid crushingandrelated
LQMXULHV
1(9(5 ZRUN on,underor
aroundaload supportedonl\
E\ a MDFN ,PPHGLDWHO\
transfer the load to an
appropriateZRUN station.
!WARNING
MAINTENANCE
Important8VH RQO\ agood gradeK\GUDXOLF MDFN oil.Avoid
PL[LQJ differentW\pes offluidandNEVER use EUDNefluid,
turELne oil, transmission fluid, motor oil or gl\Ferin.
Improper fluid can cause premature failure of the MDFN
andthe potentialforsudden andimmediate lossof load.
:H recommend0RELO '7( 13M orequivalent.
Adding oil
1. :ith saddle fXOO\ lowered, set MDFN in its upright,
levelposition. 5HPRYH oilfiller SOXJ screw.
.7KHRLOOHYHOVKRXOGEHZLWKLQ´RIWKHILOOHU
plug hole.
Changing oil
ForEHVW performanceand longestlife,replace the
complete fluid VXSSO\ at least once per \Har.
1. :ith saddle fXOO\ lowered, set MDFN in its upright,
levelposition.5HPRYH the oil fillerSOXJ screw.
./D\ the MDFN on its side and drain the fluid into a
VXLWDEOH container.
Note: Dispose of K\GUDXOLF fluid in accordance with
localregulations.
3. Set MDFN in its level upright position.
4. Fill with oil until MXVtEHORZ the rim of oil filler hole.
5. 5HLQVtall oil filler plugscrew.
Lubrication
A periodic coating of light OXEULFDting oil to pivot points,
D[OHV and hinges will help to prevent rust and assure
thatwheels,casters andpump DVVHPEOLHV move freel\.
Cleaning
3HULRGLFDOO\ FKHFN the ram for signs of rust or
corrosion. Clean as needed and wipe with an oil\
cloth.
Note: NeverusesandpaperorDErasive materialon
thesesurfaces!
Storage
:KHQ not in use, store the MDFN with pump piston and
saddle in lowest position.
IMPORTANT: 7KHXVHRIDOFRKROK\GUDXOLFEUDNHIOXLG
or detergent motor oil could damage the seals and result
LQMDFNIDLOXUH